NEU - 8,54 % Rendite | 1.208 m² Nutzfläche – vermietetes Gewerbeobjekt im Zentrum von Steyr!

Investment zum Kauf in 4400 Steyr - Kaufpreis: 480.000 € / Objektnummer: 3239
Ausstattung: Parkplatz Außenparkplatz
Außenansicht
Hoffläche
Geschäftsräume 1
Geschäftsräume 2
Geschäftsräume 3
Schulungsraum
Büroräume 1
Personalraum
Aufbereitungsräume
Aufbereitungsräume 2
Büroräume 2
Lagerfläche Kellergeschoss
Lagerfläche Kellergeschoss
Grundriss - Kellergeschoss
79C8C0C2-8019-4D03-B304-CDCDD4A7F796
Auflistung Nutzwerte laut Nutzwertgutachten

Preisinformationen

Kaufpreis:
480.000 €
Preisinfos:
Fixpreis
Provision:
3.00 %

Fakten

Objektnummer:
3239
Objekttyp:
Investment
Nutzfläche:
1.208,77 m²
Verfügbarkeit:
Verfügbar

Beschreibung

Informationen zum Mietverhältnis und zu den Mieteinnahmen

Befristung Mietverhältnis: unbefristet

monatlich Nettomiete (€ 4.301,81) abzüglich Rücklagen (€ 884,80): € 3.417,01

Netto-Jahresmietertrag abzüglich Rückalgen: € 41.004,12

Kaufpreis: € 480.000,00

Rendite ohne Nebenkosten: 8,54%

 

Mitten im Zentrum von Steyr gelangt ein seit über 20 Jahren an die Volkshilfe vermietetes Gewerbeobjekt zum Verkauf.

In einer Zeit, die von Veränderungen und Unsicherheiten geprägt ist, steht die Immobilie für Kontinuität, Verlässlichkeit und planbaren Bestandsertrag.

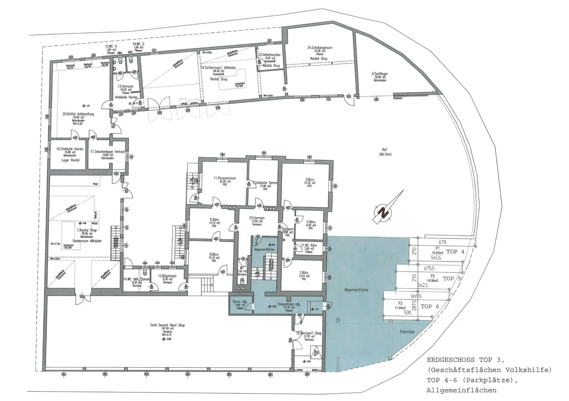
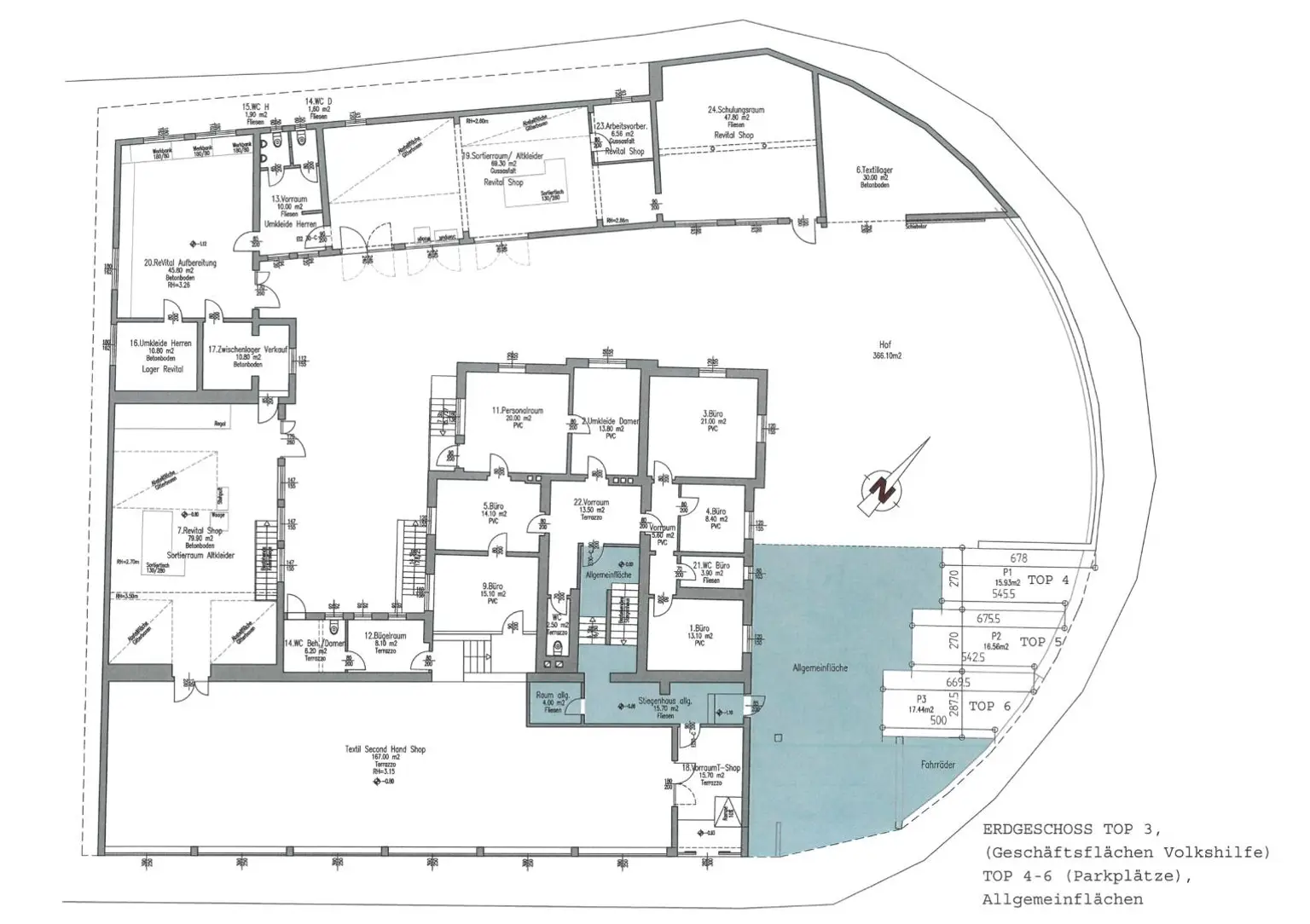
Die gesamte Nutzfläche von ca. 1.208,77 m² erstreckt sich über zwei Ebenen und ist wie folgt aufgeteilt:

 

* Nutzfläche im Erdgeschoss: ca. 642,46 m² (Verkaufs-/Geschäftsräume, Sortier-/Aufbereitungsräume, Schulungsräume, Büros, Personalräume, Lager- bzw. Zwischenlager, Umkleiden für Damen/Herren, Sanitärbereiche für Damen/Herren)
* Nutzfläche im Kellergeschoss: ca. 200,21 m² (Lager- und Stauraum)
* Hoffläche im Außenbereich: ca. 366,10 m² (für Lieferverkehr bzw. Kundenverkehr geeignet)

Die zentrale Lage in Steyr stellt einen wesentlichen Vorteil dar - kurze Wege, eine gute Erreichbarkeit sowie die etablierte Nutzung sorgen für eine hohe Nutzungs- und Nachfragesicherheit. Für den laufenden Betrieb ist die Parksituation ebenfalls berücksichtigt; zur vermieteten Einheit stehen insgesamt 5 KFZ-Stellplätze im Freien zur Verfügung.

In Summe bietet das Objekt ein umfassendes Flächenangebot, das die betrieblichen Anforderungen abdeckt und zugleich Spielraum für Lagerung und Tagesabläufe ermöglicht.

In unmittelbarer Umgebung befinden sich sämtliche Einrichtungen der Infrastruktur, darunter öffentliche Verkehrsmittel, Einkaufsmöglichkeiten sowie Gastronomie. Darüber hinaus sind ärztliche Versorgung und Schulen in der Nähe gegeben.

Die Räumlichkeiten sind ab sofort verfügbar.

Überzeugen Sie sich bei einer unverbindlichen Besichtigung von den Gegebenheiten vor Ort

Der Vermittler ist als Doppelmakler tätig.
Angaben gemäß gesetzlichem Erfordernis:
Heizwärmebedarf: 207.0 kWh/(m²a)
Beschreibung weiterlesen

Energieeffizienz

Energieausweisart:
Energiebedarfs-ausweis

Dokumente

Lageplan

4400 Steyr | Steyr (Stadt)

Lade...
Benjamin Kozlica

Benjamin Kozlica

RE/MAX Alpha in Steyr

Lade...

Fotomix

Außenansicht Hoffläche Geschäftsräume 1 Geschäftsräume 2 Geschäftsräume 3 Schulungsraum Büroräume 1 Personalraum Aufbereitungsräume Aufbereitungsräume 2 Büroräume 2 Lagerfläche Kellergeschoss Lagerfläche Kellergeschoss Grundriss - Kellergeschoss 79C8C0C2-8019-4D03-B304-CDCDD4A7F796 Auflistung Nutzwerte laut Nutzwertgutachten