NEU - 86 m2 Geschäftslokal unbefristet zu vermieten, direkt auf der Landstraße Hauptstraße!

Einzelhandel zur Miete in 1030 Wien / Objektnummer: 5567
Ausstattung: Rollstuhlgerecht Boden Teeküche

Preisinformationen

Gesamtmiete (exkl. USt.):
1.916,41 € / Monat
Betriebskosten netto:
290,41 € / Monat
Umsatzsteuer:
383,28 €
Kaution:
3 Bruttomonatsmieten
Vermittlungsprovision:
Ja
Provision:
3 Bruttomonatsmieten zzgl. 20% USt.

Fakten

Objektnummer:
5567
Objekttyp:
Einzelhandel
Nutzfläche:
86 m²
Gesamtfläche:
86 m²
Zimmer:
5
Toilette:
1
Baujahr:
1900
Altbau:
Ja
Zustand:
Sanierungsbedürftig
Verfügbarkeit:
Verfügbar

Beschreibung

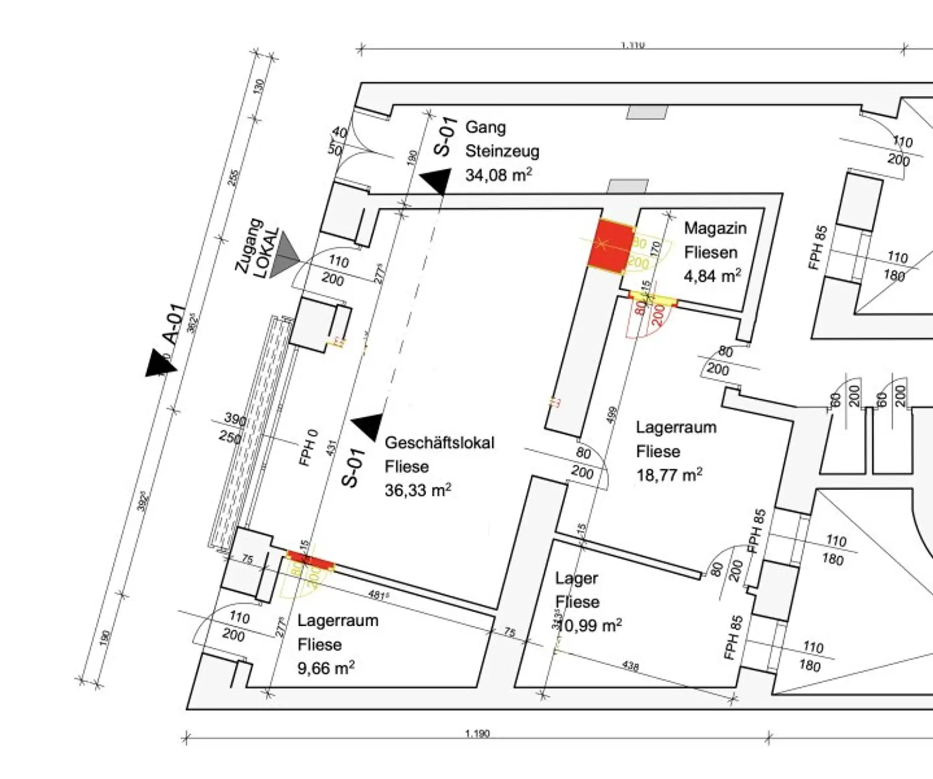
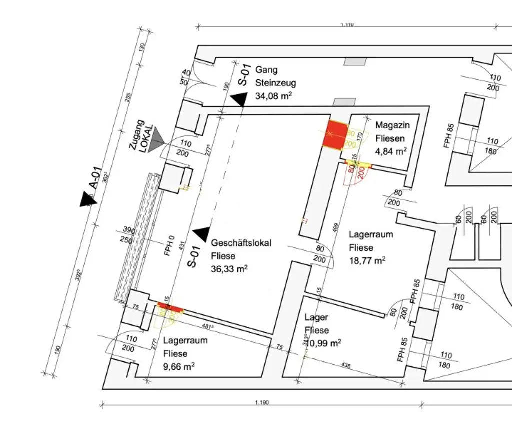
Vermietet wird ein 86 m2 großes Geschäftslokal im Erdgeschoß in sehr guter zentraler Lage im 3. Wiener Bezirk direkt auf der Landstraße Hauptstraße zwischen Juchgasse und Keinergasse. Das Objekt kann für sämtliche Branchen ausser Lebensmittel und Gastronomie benützt werden. 

Das Objekt teilt sich wie folgt auf:

- ein zirka 36 m2 großer, heller straßenseitiger Verkaufsraum
- zwei zirka jeweils 10 m2 große Lagerräume 
- Neben und Nassräume mit einem WC und Teeküche

Die Heizung ist nicht funktionstüchtig, es besteht Renovierungsbedarf.
Das Objekt wurde zuletzt als Handygeschäft genützt. 

Verfügbar ab sofort
Miete inkl. BK und UST: € 2.299,-
Unbefristeter Mietvertrag!
Kaution: 3 Bruttomonatsmieten  
Provision: 3 Bruttomonatsmieten + 20 % UST

Für Besichtigungstermine bzw. weitere Informationen kontaktieren Sie bitte Herrn Bigus unter 0699 / [tel:069912471592]12 47 15 92 oder per Email bigus@immobilienquartier.at 

Mieter gesucht?  www.immobilienquartier.at/vermieten

 

Infrastruktur / Entfernungen

Gesundheit
Arzt <500m
Apotheke <500m
Klinik <500m
Krankenhaus <500m

Kinder & Schulen
Schule <500m
Kindergarten <500m
Universität <1.000m
Höhere Schule <1.000m

Nahversorgung
Supermarkt <500m
Bäckerei <500m
Einkaufszentrum <500m

Sonstige
Geldautomat <500m
Bank <500m
Post <500m
Polizei <500m

Verkehr
Bus <500m
U-Bahn <500m
Straßenbahn <500m
Bahnhof <500m
Autobahnanschluss <1.500m

Angaben Entfernung Luftlinie / Quelle: OpenStreetMap
Beschreibung weiterlesen

Lage und Verkehrsanbindung

Landstraße Hauptstraße zwischen Juchgasse und Keinergasse

Energieeffizienz

HWB:
160,63 kWh/(m²*a)
HWB Klasse:
E
fGEE:
3,12
fGEE Klasse:
E
Energieausweisart:
Energiebedarfs-ausweis

Grundriss

Lageplan

1030 Wien | Wien 3., Landstraße

Lade...
Peter Bigus

Peter Bigus
Geschäftsführung

Immobilienquartier

Lade...

Fotomix

Bild 1 Bild 2 Bild 3 Bild 4 Bild 5 Bild 6 Bild 7 Bild 8 Bild 9 Bild 10 Bild 11 Bild 12