NEU - 9.OG ++ Büroeinheiten in modernem Bürotower ++ Concierge Service inkl.

Büro zur Miete in 1040 Wien - Gesamtmiete: 4.746,23 € / Objektnummer: 7644
Ausstattung: Fahrstuhl Teeküche Klimaanlage Zentralheizung
Außenansicht
Eingangsbereich
MUSTERFOTO
MUSTERFOTO
Portier-Service
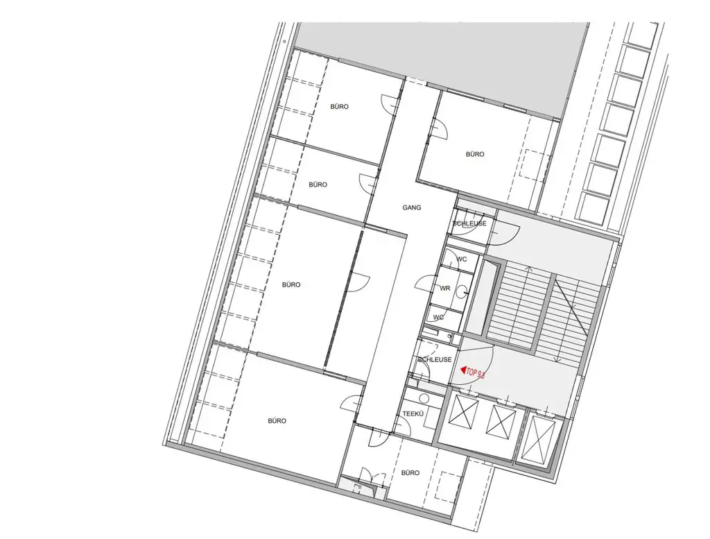
Plan9.3
IMMY Preisträger

Preisinformationen

Gesamtmiete:
4.746,23 € / Monat
Gesamtmiete (exkl. USt.):
3.955,19 € / Monat
Betriebskosten netto:
675,59 € / Monat
Umsatzsteuer:
791,04 €

Fakten

Objektnummer:
7644
Objekttyp:
Büro
Nutzfläche:
218,64 m²
Bürofläche:
218,64 m²
Zimmer:
6
Toilette:
2
Neubau:
Ja
Verfügbarkeit:
Verfügbar

Beschreibung

ZUR VERMIETUNG ++ OC 4-TOWER
Zur Vermietung gelangt diese sehr gut aufgeteilte Bürofläche im 4. Bezirk in der Operngasse. Das Büro befindet sich im 9. Obergeschoß, es sind 4 moderne Aufzüge vorhanden.
Alle Büroeinheiten sind bürogerecht ausgestattet und verkabelt. Ein Serverraum ist selbstverständlich vorhanden.

Das Haus verfügt über Concierge-Service. Eine hauseigene Garage steht im UG zur Verfügung.


RAUMAUFTEILUNG IN STICHWORTEN
• großer freundlicher Empfangsbereich
• 6 Büroeinheiten
• Teeküche
• WC Damen
• WC Herren

HIGHLIGHTS AUF EINEN BLICK
• Top-Lage
• absolut modern
• Concierge Service
• hell und freundlich
• klimatisiert
• flexible Raumgestaltung
• Doppelboden, EDV Verkabelung
• nur 5 Minuten bis zum 1. Bezirk!
• Garage im Haus (je nach Verfügbarkeit)

SEHR GUTE ÖFFENTLICHE VERKEHRSANBINDUNG
• U1, U2, U4 Karlsplatz
• Autobuslinie 59A
• Straßenbahnlinie 1, 62
• Badener Bahn

DIE MONATLICHE KOSTENAUFSTELLUNG WIE FOLGT
• HMZ netto: € 3279,60
• BK netto: € 675,59
• Heizungs- Kühlungsakonto: € 225,19
• zzgl. Steuer: 20% MwSt.
• Gesamtmiete/Monat inkl. Heizung und Kühlung € 4971,42
• zzgl. Strom je nach Verbrauch und Dienstleister

MEHR DETAILS UND VETRAGSKONDITIONEN AUF ANFRAGE!


KONTAKT
Robert Fried, robert.fried@hubner-immobilien.com, +43 664 88 296 010

Falls Sie Fragen haben oder einen Besichtigungstermin vereinbaren möchten, stehe ich Ihnen selbstverständlich gerne zur Verfügung. Ich freue mich auf Ihre Kontaktaufnahme!


__
Angaben gemäß gesetzlichem Erfordernis:
Miete 3279,6 zzgl 20% USt.
Betriebskosten 675,59 zzgl 20% USt.
Umsatzsteuer 791,04
---------------------------------
Gesamtbetrag 4746,23
---------------------------------
Heizwärmebedarf: 48.1 kWh/(m²a)
Klasse Heizwärmebedarf: B
Faktor Gesamtenergieeffizienz: 1.47
Klasse Faktor Gesamtenergieeffizienz: C
Beschreibung weiterlesen

Energieeffizienz

HWB:
48,1 kWh/(m²*a)
HWB Klasse:
B
fGEE:
1,47
fGEE Klasse:
C
Energieausweisart:
Energiebedarfs-ausweis
Robert Fried

Robert Fried

Hubner Immobilien GmbH

Lade...

Fotomix

Außenansicht Eingangsbereich MUSTERFOTO MUSTERFOTO Portier-Service Plan9.3 IMMY Preisträger