NEU - AB SOFORT VERFÜGBAR I BALKON I BADEWANNE I TOLLE KÜCHE I WG-TAUGLICH I MODERNER GRUNDRISS I PROJEK WOHNEN

Wohnung zur Miete in 8020 Graz - Gesamtmiete: 690,33 € / Objektnummer: 38316
Ausstattung: Boden Bad Kabel/Satelliten-TV Abstellraum Fernwärme Balkon WG geeignet

Preisinformationen

Gesamtmiete:
690,33 € / Monat
Betriebskosten netto:
163,38 € / Monat
Umsatzsteuer:
62,76 €
Preisinfos:
Mietpreis inkl. Betriebskosten Strom- sowie Heizkosten sind extra
Kaution:
2.100,00 €
Provision:
Gemäß Erstauftraggeberprinzip bezahlt der Abgeber die Provision.

Fakten

Objektnummer:
38316
Objekttyp:
Wohnung
Balkon:
1
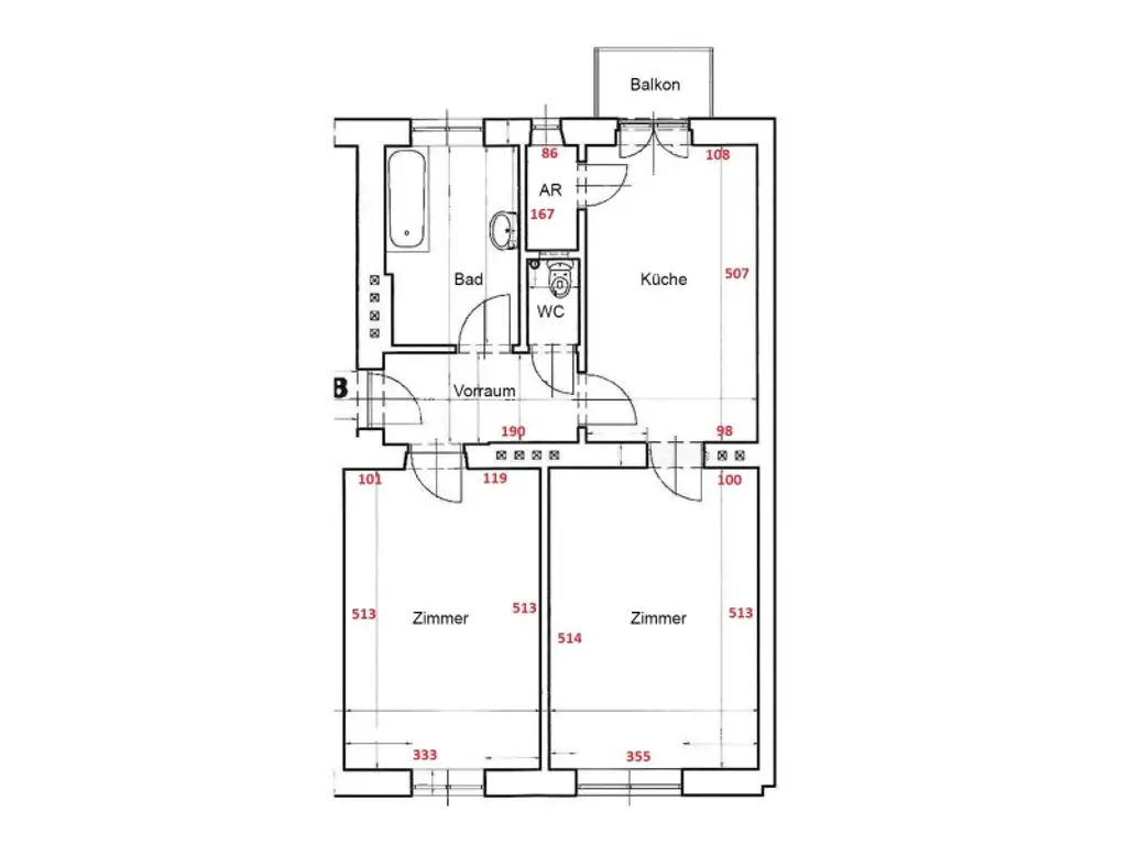
Wohnfläche:
65,35 m²
Nutzfläche:
65,35 m²
Zimmer:
2,5
Badezimmer:
1
Toilette:
1
Stockwerk:
3
Neubau:
Ja
Zustand:
Gepflegt
Verfügbarkeit:
Verfügbar

Beschreibung

CHARMANTES WOHNJUWEL IN GRAZ: HELLE 65 M² MIT BALKON IN RUHIGER INNENHOFLAGE – SOFORT EINZIEHEN & WOHLFÜHLEN

 

*
Voll ausgestattete Traumküche
Hochwertige Einbaugeräte wie Ceranfeld, Backofen, Kühlschrank mit extra Gefrierfach, Dunstabzug, Geschirrspüler und viel Stauraum. Durchdachte Beleuchtung mit Deckenspots sorgt für ein angenehmes Ambiente. Direkt angrenzend: der Balkon – ideal für Frühstück im Freien oder entspannte Abende im Innenhof-Flair.

*
Perfekte Raumaufteilung
Zwei gleich große, separat begehbare Zimmer bieten maximale Flexibilität – ideal für Singles, Paare, WGs oder kleine Familien.

*
Helles Wohnambiente
Großzügige Fensterflächen sorgen für Tageslicht in allen Räumen. Rollläden bieten zusätzlichen Komfort und Privatsphäre.

*
Top-ausgestattetes Badezimmer & separates WC
Badezimmer mit Badewanne, Waschbecken, Waschmaschinenanschluss und viel Platz. Das separate WC schafft zusätzlichen Komfort im Alltag.

*
Praktischer Abstellraum
Direkt in der Küche integriert – für alles, was Sie schnell und griffbereit verstauen möchten.

*
Haustiere willkommen
Ihre vierbeinigen Mitbewohner sind in dieser Wohnung ausdrücklich erlaubt.

*
Parkplatz im Innenhof separat anmietbar
Für zusätzlichen Komfort kann ein Stellplatz direkt im Innenhof extra angemietet werden – besonders praktisch in dieser Lage.

 

 

Willkommen in der Prankergasse 68 – Ihr neues Zuhause im Herzen von Graz

Diese rund 65 m² große Mietwohnung überzeugt durch ihr helles, freundliches Wohngefühl, eine durchdachte Raumaufteilung und moderne Ausstattung. Zwei separat begehbare Zimmer eignen sich ideal für unterschiedliche Wohnbedürfnisse – vom großzügigen Schlafzimmer bis zum Homeoffice oder WG-Zimmer.

Die modern gestaltete Küche mit direktem Zugang zum Balkon ist ein echtes Highlight. Ob für den schnellen Kaffee am Morgen oder ein entspanntes Abendessen im Freien – dieser Platz lädt zum Verweilen ein. Ergänzt wird die Ausstattung durch ein großzügiges Badezimmer mit Badewanne sowie ein separates WC – praktisch und komfortabel zugleich.

Ein praktischer Abstellraum in der Küche sowie die Option, einen Parkplatz im Innenhof anzumieten, runden das Angebot perfekt ab.

Die Lage könnte nicht besser sein: Mitten in Graz und doch wunderbar ruhig – ideal für alle, die die Stadt lieben, aber in den eigenen vier Wänden auf Ruhe und Erholung nicht verzichten möchten.

Ich freue mich auf Ihre Anfrage und darauf, Ihnen diese wunderschöne Wohnung bei einem persönlichen Besichtigungstermin präsentieren zu dürfen.

Der Immobilienmakler erklärt, dass er – entgegen dem in der Immobilienwirtschaft üblichen Geschäftsgebrauch des Doppelmaklers – einseitig nur für den Vermieter tätig ist.

Infrastruktur / Entfernungen

Gesundheit
Arzt <250m
Apotheke <525m
Klinik <800m
Krankenhaus <600m

Kinder & Schulen
Schule <575m
Kindergarten <375m
Universität <675m
Höhere Schule <825m

Nahversorgung
Supermarkt <300m
Bäckerei <425m
Einkaufszentrum <375m

Sonstige
Geldautomat <400m
Bank <400m
Post <450m
Polizei <500m

Verkehr
Bus <150m
Straßenbahn <350m
Autobahnanschluss <4.100m
Bahnhof <175m
Flughafen <9.150m

Angaben Entfernung Luftlinie / Quelle: OpenStreetMap
Beschreibung weiterlesen

Lage und Verkehrsanbindung

Die Prankergasse 68 befindet sich in einem aufstrebenden und dennoch angenehm ruhigen Teil von Graz–Gries, nur wenige Minuten vom Lendplatz und der Grazer Innenstadt entfernt. Die Umgebung punktet mit ihrer hervorragenden Infrastruktur: Nahversorger, Cafés, Apotheken und zahlreiche Einkaufsmöglichkeiten sind bequem zu Fuß erreichbar. Auch die Anbindung an den öffentlichen Verkehr ist optimal – Bus- und Straßenbahnlinien befinden sich in unmittelbarer Nähe und bringen Sie rasch in alle Teile der Stadt.

Für Natur- und Freizeitliebhaber liegt der Augarten nicht weit entfernt – perfekt für sportliche Aktivitäten oder entspannte Stunden im Grünen. Die Lage bietet damit eine ideale Kombination aus städtischem Leben und ruhiger Wohnatmosphäre.

Hauptbahnhof, Zentrum

Energieeffizienz

HWB:
137,2 kWh/(m²*a)
HWB Klasse:
E
Energieausweisart:
Energiebedarfs-ausweis
Gültig bis:
22.10.2032

Grundriss

Lageplan

8020 Graz | Graz (Stadt)

Lade...
Sabina Maitz

Sabina Maitz
Projekt Wohnen

Projekt Wohnen Gruppe GmbH

Lade...

Fotomix

Bild 1 Bild 2 Bild 3 Bild 4 Bild 5 Bild 6 Bild 7