NEU - Ablösefreie Geschäftsfläche in erstklassiger Hochfrequenzlage

Einzelhandel zur Miete in 1130 Wien / Objektnummer: 66935
Ausstattung: Barrierefrei Boden Gäste-WC Klimaanlage

Preisinformationen

Gesamtmiete (exkl. USt.):
2.806,60 € / Monat
Betriebskosten netto:
100,00 € / Monat
Umsatzsteuer:
561,32 €
Miete/m² netto:
65,00 €
Kaution:
13.471,00 €
Vermittlungsprovision:
Ja
Provision:
3 Bruttomonatsmieten zzgl. 20% USt.

Fakten

Objektnummer:
66935
Objekttyp:
Einzelhandel
Nutzfläche:
41,64 m²
Zimmer:
1,5
Neubau:
Ja
Letzte Sanierung:
2025
Verfügbarkeit:
Verfügbar

Beschreibung

Das angebotene Geschäftslokal befindet sich in einem etablierten Einkaufszentrum und wurde zuletzt als Textil- bzw. Modegeschäft genutzt. Die kompakte und gut nutzbare Fläche eignet sich ideal für Einzelhandel, Dienstleistung oder kleinere Konzepte mit Kundenfrequenz.

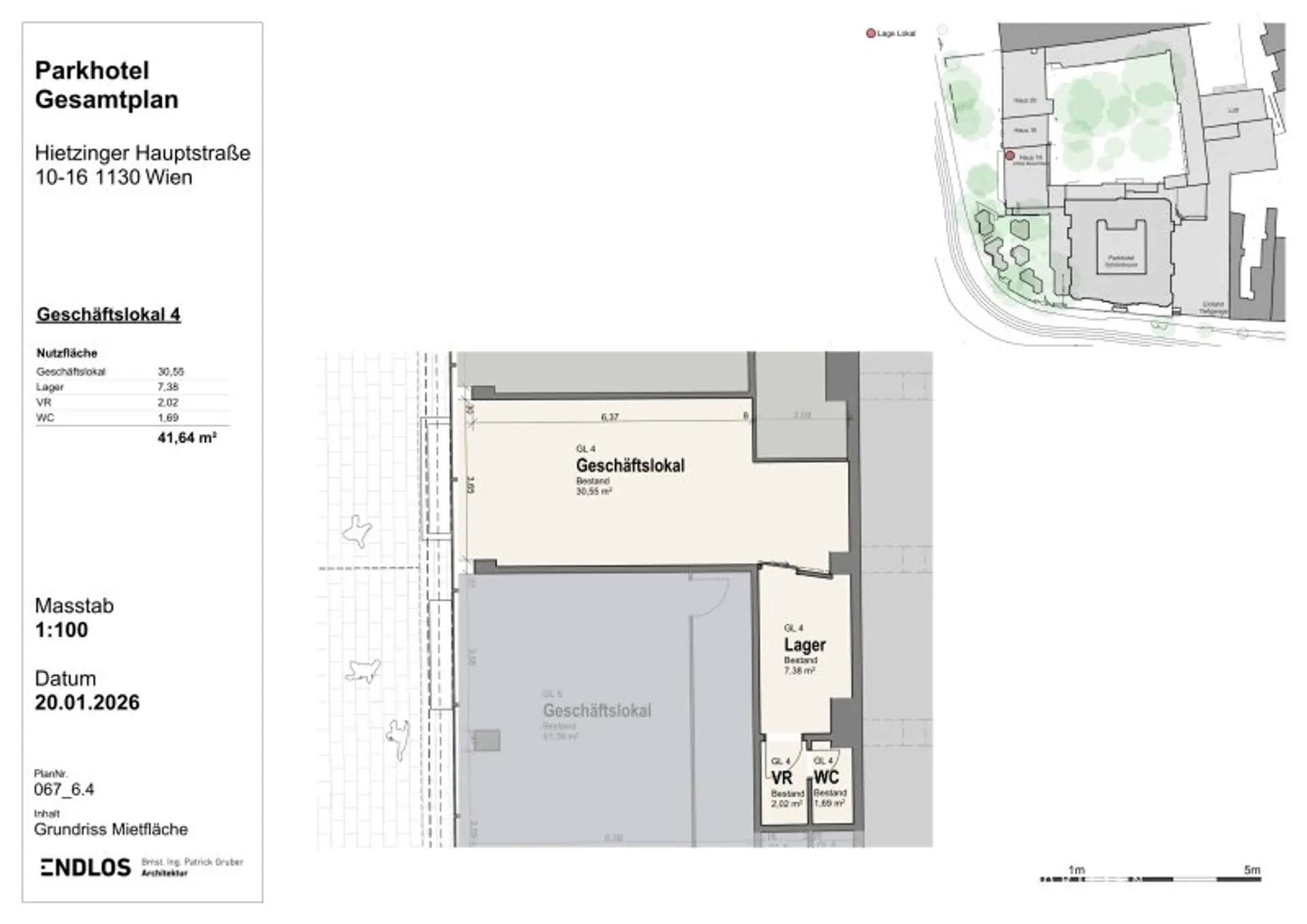
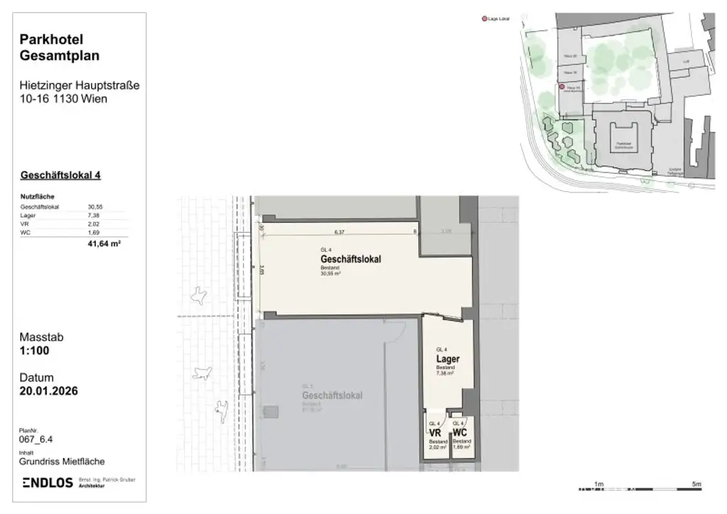
Die Gesamtnutzfläche beträgt 41,64 m² und ist effizient geschnitten. Die genaue Aufteilung ist dem beiliegenden Plan zu entnehmen. Vermietet wird ausschließlich die Innenfläche, eine Außenfläche ist nicht Bestandteil des Mietgegenstands.

Das Lokal verfügt über eine installierte Klimaanlage, einen Fliesenboden sowie ein eigenes WC. Die technische Ausstattung umfasst zudem einen 3-Phasen-Stromanschluss mit 35 Ampere pro Phase (gesamt 105 Ampere), wodurch auch leistungsintensivere Nutzungen möglich sind.

Die großzügige Fassadenverglasung mit dreifach isolierverglasten Scheiben sorgt für gute Sichtbarkeit und natürliche Belichtung. Beheizt wird die Einheit mittels Fernwärme.

Insgesamt bietet das Objekt eine funktionale Grundlage für unterschiedliche Nutzungskonzepte im Einzelhandel oder Dienstleistungsbereich.

Der Vermittler ist als Doppelmakler tätig.

Infrastruktur / Entfernungen

Gesundheit
Arzt <500m
Apotheke <500m
Klinik <500m
Krankenhaus <2.000m

Kinder & Schulen
Schule <500m
Kindergarten <1.000m
Universität <1.000m
Höhere Schule <3.000m

Nahversorgung
Supermarkt <500m
Bäckerei <500m
Einkaufszentrum <2.000m

Sonstige
Geldautomat <500m
Bank <500m
Post <500m
Polizei <500m

Verkehr
Bus <500m
U-Bahn <500m
Straßenbahn <500m
Bahnhof <500m
Autobahnanschluss <3.500m

Angaben Entfernung Luftlinie / Quelle: OpenStreetMap
Beschreibung weiterlesen

Lage und Verkehrsanbindung

Das Mietobjekt befindet sich in hervorragender Lage im 13. Wiener Bezirk Hietzing. Unmittelbar gegenüber liegt der Eingang zum Tiergarten Schönbrunn, einer der meistbesuchten Sehenswürdigkeiten Wiens. Diese Lage sorgt für eine hohe Passantenfrequenz und bietet großes Potenzial für ein Geschäftslokal.

Die Infrastruktur ist ausgezeichnet: In nur zwei Gehminuten erreicht man die U-Bahn-Station Hietzing (U4) sowie mehrere Straßenbahn- und Buslinien, die eine schnelle Verbindung in die Wiener Innenstadt und andere Bezirke ermöglichen. Zudem befinden sich in unmittelbarer Nähe das Einkaufszentrum Ekazent Hietzing mit vielfältigen Geschäften und Dienstleistungsangeboten sowie zwei Autogaragen, die eine bequeme Parkmöglichkeit für Kunden bietet.

Diese Kombination aus hoher Sichtbarkeit, starker Kundenfrequenz und optimaler Verkehrsanbindung macht das Objekt zu einem attraktiven Standort für verschiedenste Geschäftskonzepte.

U-Bahn Station Hietzing

Energieeffizienz

HWB:
120,12 kWh/(m²*a)
HWB Klasse:
C
fGEE:
1,8
fGEE Klasse:
C
Energieausweisart:
Energiebedarfs-ausweis
Gültig bis:
22.01.2026

Grundriss

Lageplan

1130 Wien | Wien 13., Hietzing

Lade...
Elijah Euler-Rolle

Elijah Euler-Rolle
Berater | Consultant

AKKADIA Immobilienvermittlung GmbH

Lade...

Fotomix

Bild 1 Bild 2 Bild 3 Bild 4 Bild 5 Bild 6 Bild 7