NEU - ABSOLUT GRÜNE, ABSOLUT RUHIGE, SEHR GÜNSTIGE ZWEIZIMMERWOHNUNG MIT SÜDBALKON

Wohnung zum Kauf in 1140 Wien - Kaufpreis: 289.000 € / Objektnummer: 1609
Ausstattung: Bad Möbliert Etagenheizung Balkon WG geeignet

Preisinformationen

Kaufpreis:
289.000 €
Betriebskosten netto:
200,00 € / Monat

Fakten

Objektnummer:
1609
Objekttyp:
Wohnung
Balkon:
1
Balkonfläche:
6 m²
Keller Fläche:
4 m²
Wohnfläche:
85 m²
Nutzfläche:
91 m²
Zimmer:
2
Badezimmer:
1
Toilette:
1
Stockwerk:
4
Neubau:
Ja
Letzte Sanierung:
2004
Zustand:
Gepflegt
Verfügbarkeit:
Verfügbar

Beschreibung

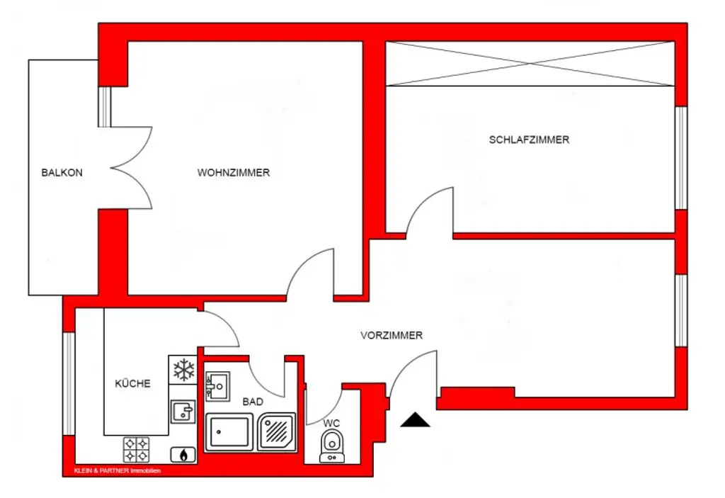
Diese, in einem Hinterhaus gelegene, Zweizimmerwohnung besticht durch ihre Lage. Das Haus hat keinen Lift.
Direkt an einer Hauptverkehrsader Wiens und gegenüber dem Wienfluss liegt der im Jahr 1964 gebauter Hauskomplex. Durch die exponierte Lage im hinteren Teil eines komplett ruhigen Grünareals gibt es absolut keine Lärmentwicklung.

Sportliche, aber auch junggebliebene ältere Personen werden die Stockwerke schnell überwinden, um in die atmosphärisch wirklich angenehme Wohnung zu gelangen.

Die Nord-Süd ausgerichtete Wohnung liegt im 4. Stock mit Balkon Richtung Süden bzw. Schönbrunn, die Fenster von 2 Räumen gehen in den nordlichen Teil des sehr idyllischen Gartens.
Ohne große Umbauarbeiten kann man aus dem sehr großzügigen Vorraum ein Zimmer abtrennen - dadurch hätten Sie drei vollwertige Räume zur Verfügung.

Das große Wohnzimmer ist durch die Südlage sehr hell und durch die großen Fensterflächen und die Balkontüre findet die Sonne den Weg bis ins letzte Eck des Raumes.

Das Bad mit Dusche sowie Sitzbadewanne und das WC sind in getrennten Räumen angeordnet und werden wohl durch eine Sanierung modern gestaltet werden. Ebenso wird es wahrscheinlich auch, der von allen anderen Räumen getrennten Küche ergehen. Die Küche hat ebenso ein großes Fenster Richtung Süden.

Natürlich gehört auch ein Kellerabteil zur Wohnung. Sie glauben, das toll beschriebene Objekt entstammt der Fantasiewelt des Maklers? Überzeugen Sie sich bei einer Besichtigung vom Gegenteil.

 

 

RECHTLICHER HINWEIS:
Im Hinblick auf die geltende Gesetzeslage weisen wir darauf hin, dass für unser Tätigwerden für jeden Interessenten (vollständige Anbietung, Besichtigungen und sonstige Dienstleistungen) der Abschluss eines Maklervertrages die unbedingte Grundlage darstellt.

INFOS & BESICHTIGUNGEN:
Für Informationen und Besichtigungen steht Ihnen Herr Mag. Michael Moser unter +43 69915152424 oder +43 1 877 2222 [tel:+4318772222] gerne zur Verfügung.

INFORMATION FÜR KONSUMENTEN:
1. Dieses Objekt wird von einem konzessionierten Immobilienmaklerunternehmen vermarktet. Im Falle der Anmietung oder des Ankaufs fällt eine Vermittlungsprovision an.
2. Der Makler ist kraft bestehenden Geschäftsgebrauchs für beide Vertragspartner des abzuschließenden Geschäfts tätig (Doppelmakler).
3. Wir weisen auf wirtschaftliches Naheverhältnis zwischen unserem Unternehmen und der Vermieterseite hin.

POST SCRIPTUM:
Wir sind auf Miet- und Eigentumsobjekte, sowie Grundstücke im 13. Bezirk spezialisiert, vermitteln allerdings selbstverständlich auch Wohnimmobilien im gesamten Großraum Wien!
Wenn Sie beim Verkauf Ihrer Immobilie auf Ihre RECHTSSICHERHEIT großen Wert legen und Ihr Makler hinsichtlich seiner fachlichen Kompetenz die Nr. 1 sein muss, setzen Sie auf unser Know-how sowie Kontakte zu den richtigen Käufern und sichern Sie sich Ihren Erfolg durch unsere Qualitätsarbeit, starke Spezialisierung und 30-jährige Erfahrung.

Infrastruktur / Entfernungen

Gesundheit
Arzt <500m
Apotheke <500m
Klinik <1.000m
Krankenhaus <2.000m

Kinder & Schulen
Schule <500m
Kindergarten <500m
Universität <500m
Höhere Schule <2.500m

Nahversorgung
Supermarkt <500m
Bäckerei <500m
Einkaufszentrum <1.500m

Sonstige
Geldautomat <500m
Bank <500m
Post <1.000m
Polizei <1.000m

Verkehr
Bus <500m
U-Bahn <500m
Straßenbahn <500m
Bahnhof <500m
Autobahnanschluss <3.500m

Angaben Entfernung Luftlinie / Quelle: OpenStreetMap
Beschreibung weiterlesen

Lage und Verkehrsanbindung

Unmittelbar gegenüber Schloss Schönbrunn, U-4 Stationen Schönbrunn oder Hietzing (Kennedybrücke)
Straßenbahn 10, 60 - Bus 51A und 56A

Schloss Schönbrunn

Energieeffizienz

HWB:
33,9 kWh/(m²*a)
HWB Klasse:
B
Energieausweisart:
Energiebedarfs-ausweis

Grundriss

Lageplan

1140 Wien | Wien 14., Penzing

Lade...
Michael Moser

Michael Moser
Immobilienmakler

KLEIN&PARTNER Immobilen GmbH

Lade...

Fotomix

Bild 1 Bild 2 Bild 3 Bild 4 Bild 5 Bild 6 Bild 7 Bild 8 Bild 9 Bild 10 Bild 11 Bild 12 Bild 13 Bild 14 Bild 15 Bild 16