NEU - Airbnb Wohnung mit enormen Rendite Potenzial

Freizeitimmobilie zum Kauf in 1010 Wien - Kaufpreis: 1.600.000 € / Objektnummer: 60478
Ausstattung: Wohnküche / offene Küche Bad

Preisinformationen

Kaufpreis:
1.600.000 €
Vermittlungsprovision:
Ja
Provision:
3% des Kaufpreises zzgl. 20% USt.

Fakten

Objektnummer:
60478
Objekttyp:
Freizeitimmobilie
Wohnfläche:
155 m²
Zimmer:
6
Badezimmer:
3
Toilette:
3
Altbau:
Ja
Zustand:
Gepflegt
Verfügbarkeit:
Verfügbar

Beschreibung

Das angebotene Objekt befindet sich in einer der begehrtesten Innenstadtlagen Wiens, nur wenige Schritte von Kärntner Straße, Staatsoper und Ringstraße entfernt. Nach Angaben des Eigentümers liegt eine behördliche Genehmigung vor, auf deren Grundlage seit 2023 eine Kurzzeitvermietung betrieben wurde. Die Vorlage des entsprechenden Bescheids sowie dessen Geltungsumfang und allfällige Übertragbarkeit auf Rechtsnachfolger sind vom Erwerber vor Vertragsabschluss zu prüfen.

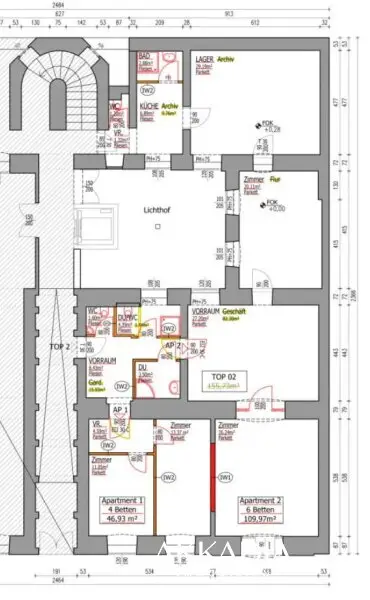
Zusätzlich besteht die Möglichkeit, das Objekt in zwei eigenständige Wohneinheiten zu teilen. Dadurch können unterschiedliche Zielgruppen gezielt angesprochen und die Gesamterträge potenziell gesteigert werden; die technische und rechtliche Umsetzbarkeit (baurechtlich/WEG/Hausordnung) ist gesondert zu prüfen und nachzuweisen.

In Summe verbindet dieses Renditeobjekt eine erstklassige Innenstadtlage mit einer – vorbehaltlich behördlicher und zivilrechtlicher Prüfung – rechtlich zulässigen touristischen Nutzung sowie attraktiven Ertragsperspektiven. Für Investoren ergibt sich damit die Chance auf stabile, im Marktvergleich hohe Bruttorenditen im Premium-Segment; konkrete Kennzahlen sind anhand vorliegender Unterlagen (Historie, Auslastung, Raten, Kosten) zu verifizieren.

Alle Angaben erfolgen freibleibend und unverbindlich; Irrtum, Änderungen und Zwischenverkauf vorbehalten.

Wir weisen darauf hin, dass zwischen dem Vermittler und dem zu vermittelnden Dritten ein familiäres oder wirtschaftliches Naheverhältnis besteht.

Der Vermittler ist als Doppelmakler tätig.

Infrastruktur / Entfernungen

Gesundheit
Arzt 500m
Apotheke 500m
Klinik 500m
Krankenhaus 1.500m

Kinder & Schulen
Schule 500m
Kindergarten 500m
Universität 500m
Höhere Schule 1.000m

Nahversorgung
Supermarkt 500m
Bäckerei 500m
Einkaufszentrum 500m

Sonstige
Geldautomat 500m
Bank 500m
Post 500m
Polizei 500m

Verkehr
Bus 500m
U-Bahn 500m
Straßenbahn 500m
Bahnhof 500m
Autobahnanschluss 3.500m

Angaben Entfernung Luftlinie / Quelle: OpenStreetMap
Beschreibung weiterlesen

Lage und Verkehrsanbindung

Die Lage bietet eine einzigartige Kombination aus urbanem Komfort und kultureller Vielfalt. Nur wenige Schritte entfernt befindet sich einer der wichtigsten Verkehrsknotenpunkte der Stadt: der Karlsplatz. Hier treffen gleich drei U-Bahnlinien (U1, U2 und U4) aufeinander, die schnelle Verbindungen in alle Himmelsrichtungen ermöglichen. Ergänzt wird das Angebot durch ein dichtes Straßenbahnnetz mit den Linien 1, 2, D und 71 sowie mehreren Buslinien wie 2A, 59A und 48A. Damit ist eine optimale Erreichbarkeit des gesamten Stadtgebiets sowie der Bahnhöfe und Außenbezirke gewährleistet.

Auch für Besucher zeigt sich die Lage von ihrer besten Seite: Die Kärntner Straße mit ihren exklusiven Geschäften und Boutiquen ist in wenigen Minuten erreichbar und lädt zum Flanieren ein. Ebenso nahe liegen die prachtvolle Ringstraße, die Staatsoper, das Musikvereinshaus und zahlreiche Museen. Der Naschmarkt mit seiner kulinarischen Vielfalt, die Karlskirche und weitere historische Bauten befinden sich praktisch vor der Haustüre.

So verbindet die Umgebung modernes Stadtleben mit touristischen Höhepunkten: Bewohner genießen kurze Wege zu allen wichtigen Einrichtungen des Alltags, während Touristen die Nähe zu den bekanntesten Sehenswürdigkeiten der Stadt und die exzellente Verkehrsanbindung schätzen. Eine Lage, die Urbanität, Kultur und Lebensqualität in idealer Weise vereint.

Grundriss

Lageplan

1010 Wien | Wien 1., Innere Stadt

Lade...
Josef Ahmed

Josef Ahmed
Berater | Consultant

AKKADIA Immobilienvermittlung GmbH

Virtuelle Tour

Anrufen
Lade...

Fotomix

Bild 1 Bild 2 Bild 3 Bild 4 Bild 5 Bild 6 Bild 7 Bild 8 Bild 9 Bild 10