NEU - All-inclusive Miete! Gemütliche 1-Zimmer-Wohnung in der Tokiostraße 12!

Wohnung zur Miete in 1220 Wien - Gesamtmiete: 723,23 € / Objektnummer: 1764687
Ausstattung: Boden Fahrstuhl Wohnküche / offene Küche Bad Rollladen Tiefgarage Parkplatz Fahrradraum Abstellraum Fernwärme Zentralheizung Fußbodenheizung

Preisinformationen

Gesamtmiete:
723,23 € / Monat
Umsatzsteuer:
65,75 €
Kaution:
3 Bruttomonatsmieten
Provision:
Gemäß Erstauftraggeberprinzip bezahlt der Abgeber die Provision.

Fakten

Objektnummer:
1764687
Objekttyp:
Wohnung
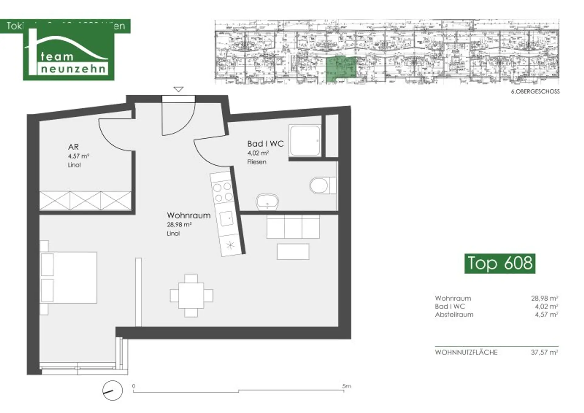
Wohnfläche:
37,57 m²
Nutzfläche:
37,57 m²
Gesamtfläche:
37,57 m²
Zimmer:
1
Badezimmer:
1
Toilette:
1
Stockwerk:
6
Neubau:
Ja
Zustand:
Neuwertig
Verfügbarkeit:
Verfügbar
Verfügbar ab:
ab sofort

Beschreibung

Smart wohnen in Bestlage – moderne Apartments in der Tokiostraße 12 im 22. Bezirk.

In angenehm ruhiger Lage und doch mitten im pulsierenden Stadtleben präsentiert sich dieses moderne Wohnhaus als ideale Adresse für alle, die das Beste aus beiden Welten schätzen. Die Tokiostraße 12 verbindet entspanntes Wohnen in einer Seitengasse mit der unmittelbaren Nähe zu vielfältigen Einkaufsmöglichkeiten, Gastronomie und perfekter öffentlicher Anbindung.

 

Die Apartments mit Wohnflächen von ca. 24 bis 50 m² überzeugen durch eine clevere Raumaufteilung und eine moderne Ausstattung, die den vorhandenen Platz optimal nutzt. Helle Räume, funktionale Details und ein angenehmes Wohnambiente machen diese Einheiten besonders attraktiv.

Jede Wohnung verfügt über eine hochwertige Einbauküche mit Kühlschrank, Kochfeld und ausreichend Stauraum. Ein integrierter Abstellbereich mit praktischem Kleiderschrank sorgt für zusätzliche Ordnung und kann ideal als Garderobe genutzt werden. Ein bereits möblierter Essplatz ermöglicht einen unkomplizierten Einzug – perfekt für alle, die sofort starten möchten.

Große Fensterflächen schaffen eine freundliche, lichtdurchflutete Atmosphäre, während die effizienten Grundrisse den Wohnraum optimal nutzbar machen.

Auch die gemeinschaftlichen Bereiche sind auf Komfort ausgelegt: Eine Waschküche sowie ein Fahrradraum stehen allen Bewohnern zur Verfügung und erleichtern den Alltag zusätzlich.

Ein besonderer Vorteil: Die All-inclusive Miete umfasst bereits Strom, Heizung, Warmwasser, Betriebskosten und Umsatzsteuer – maximale Transparenz und Planungssicherheit. Zudem fällt keine Provision an.

 

Highlights auf einen Blick:

* U1 Kagran in ca. 3 Gehminuten – 10 Minuten zum Stephansplatz
* Straßenbahnlinie 25 in ca. 3–5 Gehminuten
* Donau Zentrum in ca. 5 Gehminuten erreichbar
* All-inclusive Miete (inkl. Strom, Heizung, Warmwasser, BK & USt.)
* Keine Provision
* Ideal für Studierende, Singles & Berufseinsteiger
* Ruhige Seitengasse mit urbanem Umfeld
* Gemeinschaftliche Waschküche & Fahrradraum

 

Ausstattungsstandard:

* Hochwertige Einbauküche inkl. Geräte
* Praktischer Abstellbereich mit integriertem Kleiderschrank
* Möblierter Essplatz
* Laminat- oder Vinylboden in Wohnräumen
* Moderne Sanitärausstattung mit weißen Fliesen
* Innenliegende Jalousien
* Personenaufzug (barrierearm)
* Fahrrad- und Kinderwagenraum

*
Gemeinschaftliche Waschküche

Wohnung Top 608:

Diese gemütliche 1-Zimmer-Wohnung überzeugt durch eine effiziente Raumaufteilung und eignet sich ideal für Singles oder Paare.

Der großzügig aufgeteilte Wohnraum bietet ausreichend Platz zum Wohnen, Schlafen und Arbeiten in einem offenen, hellen Ambiente. Ergänzt wird die Wohnung durch ein funktionales Bad mit Dusche und WC.

Der geräumige Abstellraum bzw. Garderobe bietet überraschend viel Stauraum und erhöht den Wohnkomfort spürbar. 

 

Wir weisen höflichst darauf hin, dass es sich bei den Fotos anbei um Musterfotos handelt. Die Wohnung wird gleich oder gleichwertig übergeben.

Einige Bilder des Inserats wurden zum Zweck der besseren Visualisierung digital mit KI möbliert. Die Wohnung wird unmöbliert übergeben.

 

Kostenübersicht:

monatliche Miete: 723,22 Euro (inkl. Strom, Heizung, Warmwasser, Betriebskosten & Umsatzsteuer)

Kaution: 3 Bruttomonatsmieten

PROVISIONSFREI

 

Infrastruktur:

Die Lage spricht für sich: Die U1-Station Kagran erreichen Sie in etwa 3 Gehminuten und gelangen von dort in nur rund 10 Minuten direkt zum Stephansplatz. Auch die Straßenbahnlinie 25 ist fußläufig erreichbar (ca. 3–5 Gehminuten). Das nahegelegene Donau Zentrum befindet sich ebenfalls nur etwa 5 Gehminuten entfernt und bietet eine Vielzahl an Einkaufsmöglichkeiten, Restaurants und Freizeitangeboten.

 

Energieausweis:

Der Heizwärmebedarf beträgt 40,60 kWh/m²a, welcher der Klasse B entspricht.

Der fGEE beträgt 1,05 und entspricht somit sogar der Klasse C.

 

Für Fragen bzw. Besichtigungen steht Ihnen Frau Sylwia Zagula sehr gerne unter 0676 852 243 502 oder via E-Mail unter zagula@teamneunzehn.at zur Verfügung.

Wir weisen darauf hin, dass zwischen dem Vermittler und dem zu vermittelnden Dritten ein familiäres oder wirtschaftliches Naheverhältnis besteht.

Der Immobilienmakler erklärt, dass er – entgegen dem in der Immobilienwirtschaft üblichen Geschäftsgebrauch des Doppelmaklers – einseitig nur für den Vermieter tätig ist.

"Leben braucht Raum" * T19-RE Real Estate GmbH & Co KG * www.teamneunzehn.at [https://www.teamneunzehn.at]

Doppelmakler

Wir werden als Immobilienmakler kraft bestehenden Geschäftsgebrauchs als Doppelmakler tätig und haben sohin beide Seiten des Vertrages (Verkäufer-Käufer, Vermieter-Mieter) zu unterstützen.

Wirtschaftliches Naheverhältnis

Es wird bekannt gegeben, dass folgendes wirtschaftliches Naheverhältnis zwischen der teamneunzehn-Gruppe und dem Verkäufer/der vermietenden Partei besteht: ständige und dauerhafte Beauftragung mit der Vermittlung des bestehenden Immobilienportfolios

Haftungserklärung zum Inserat

Irrtum und Änderungen vorbehalten! Sofern es sich bei Bildern um Visualisierungen handelt, können Abänderungen zur tatsächlichen Ausführung resultieren. Wir weisen ausdrücklich darauf hin, dass das auf Fotos oder Visualisierungen ersichtliche Mobiliar bzw. Inventar nicht Bestandteil des inserierten Preises ist.

 

 

Infrastruktur / Entfernungen

Gesundheit
Arzt <250m
Apotheke <250m
Klinik <2.500m
Krankenhaus <2.650m

Kinder & Schulen
Schule <350m
Kindergarten <100m
Universität <625m
Höhere Schule <900m

Nahversorgung
Supermarkt <225m
Bäckerei <675m
Einkaufszentrum <825m

Sonstige
Geldautomat <800m
Bank <800m
Post <1.050m
Polizei <775m

Verkehr
Bus <175m
U-Bahn <600m
Straßenbahn <175m
Bahnhof <700m
Autobahnanschluss <2.300m

Angaben Entfernung Luftlinie / Quelle: OpenStreetMap
Beschreibung weiterlesen

Lage und Verkehrsanbindung

Kirschblütenpark, Alte Donau, Donauzentrum

Alte Donau, Donauzentrum, Kirschblütenpark

Energieeffizienz

HWB:
40,6 kWh/(m²*a)
HWB Klasse:
B
fGEE:
1,05
fGEE Klasse:
C
Energieausweisart:
Energiebedarfs-ausweis

Grundriss

Lageplan

1220 Wien | Wien 22., Donaustadt

Lade...
Sylwia Zagula

Sylwia Zagula
Immobilienvermittlung

teamneunzehn-Gruppe

Lade...

Fotomix

Bild 1 Bild 2 Bild 3 Bild 4 Bild 5 Bild 6 Bild 7 Bild 8 Bild 9 Bild 10 Bild 11 Bild 12 Bild 13 Bild 14 Bild 15 Bild 16 Bild 17 Bild 18