NEU - Altbauflair trifft moderne Ausstattung! 2 Zimmerwohnung inkl. Küche!

Wohnung zur Miete in 4020 Linz - Gesamtmiete: 891,11 € / Objektnummer: 8205
Ausstattung: Zentralheizung
Wohnzimmer
Küche
Küche
Wohnzimmer
Schlafzimmer
Schlafzimmer
Bad
Vorraum
Vorraum
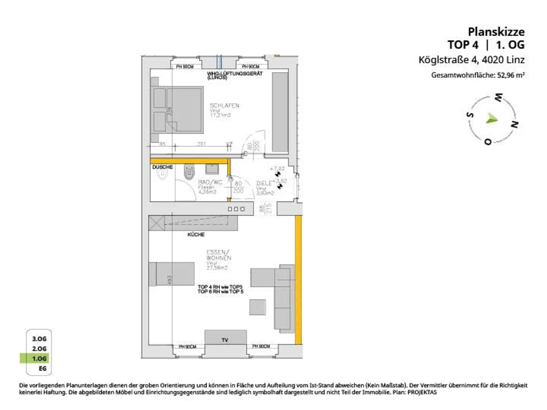
Planskizze Top 4

Preisinformationen

Gesamtmiete:
891,11 € / Monat
Betriebskosten netto:
124,10 € / Monat
Umsatzsteuer:
81,01 €
Kaution:
3.600,00 €

Fakten

Objektnummer:
8205
Objekttyp:
Wohnung
Wohnfläche:
52,96 m²
Zimmer:
2
Schlafzimmer:
1
Badezimmer:
1
Toilette:
1
Stockwerk:
1
Baujahr:
ca. 1900
Zustand:
Gepflegt
Verfügbarkeit:
Verfügbar

Beschreibung

Perfekt aufgeteilte 2 Zimmerwohnung mit hochwertiger Küche im Stadtzentrum! Weitere Möbel gegen Ablöse!

Ab voraussichtlich Mai ist in einem wunderschönen Stadthaus im 1. OG (ohne Lift) diese tolle Wohnung zu vermieten. Nur wenige Gehminuten vom Linzer Med Campus entfernt, bietet die Lage alle Vorteile einer Innenstadtwohnung: Geschäfte, Ärzte, Nahversorger und öffentliche Verkehrsmittel sind nur wenige Schritte entfernt!

Neben der tollen Lage verfügt die Wohnung auch über eine Altbau typische Raumhöhe und den damit verbundenen Flair. Auf Grund einer umfassenden Sanierung jedoch auch über eine zeitgemäße Ausstattung: Hochwertige Einbauküche ( Bosch Geräte), schöne Holzböden in den Wohnräumen, moderne Badgestaltung, uvm.

Raumaufteilung Top 4:
- Vorraum/Diele
- Bad mit Dusche und WC
- Wohnzimmer mit Küche (neu möbliert - ablösefrei)
- Schlafzimmer

Ein Kellerabteil ist ebenfalls inklusive! Im Stiegenhaus befindet sich für jede Wohnung ein kleiner Abstellraum mit Waschmaschinenanschluss.

Am Haus können PKW-Abstellplätze für € 75/monatlich angemietet werden.

Die Kosten für Strom und Heizung werden direkt (nach Verbrauch) vom Versorgungsunternehmen verrechnet.

Interesse? Bitte zögern Sie nicht, uns bei etwaigen Rückfragen oder zur Vereinbarung eines unverbindlichen Besichtigungstermins zu kontaktieren. Roman Dirisamer, MBA steht Ihnen unter 0664 88786860 oder dirisamer@projektas.at gerne zur Verfügung!
PS: Zahlreiche weitere Immobilien finden Sie auf unserer Homepage unter www.projektas.at
Hinweis: Wir verarbeiten personenbezogene Daten zu geschäftlichen Zwecken. Nähere Informationen finden Sie unter www.projektas.at
Angaben gemäß gesetzlichem Erfordernis:
Miete 686 zzgl 10% USt.
Betriebskosten 124,1 zzgl 10% USt.
Umsatzsteuer 81,01
---------------------------------
Gesamtbetrag 891,11
---------------------------------
Heizwärmebedarf: 63.0 kWh/(m²a)
Klasse Heizwärmebedarf: C
Faktor Gesamtenergieeffizienz: 0.95
Beschreibung weiterlesen

Energieeffizienz

HWB:
63 kWh/(m²*a)
HWB Klasse:
C
fGEE:
0,95
Energieausweisart:
Energiebedarfs-ausweis

Dokumente

Lageplan

4020 Linz | Linz (Stadt)

Lade...
Roman Dirisamer, MBA

Roman Dirisamer, MBA

PROJEKTAS - Feistritzer Hinz GmbH & Co OG

Lade...

Fotomix

Wohnzimmer Küche Küche Wohnzimmer Schlafzimmer Schlafzimmer Bad Vorraum Vorraum Planskizze Top 4