NEU - Altbaujuwel mit rund 136 m² - 3 Zimmern in zentraler Lage - Nähe U1 Südtiroler Platz! WG geeignet!

Wohnung zur Miete in 1040 Wien - Gesamtmiete: 2.181,30 € / Objektnummer: 3236
Ausstattung: Boden Fahrstuhl Bad Abstellraum Etagenheizung WG geeignet

Preisinformationen

Gesamtmiete:
2.181,30 € / Monat
Betriebskosten netto:
204,99 € / Monat
Umsatzsteuer:
198,30 €
Kaution:
3 Bruttomonatsmieten
Provision:
Gemäß Erstauftraggeberprinzip bezahlt der Abgeber die Provision.

Fakten

Objektnummer:
3236
Objekttyp:
Wohnung
Wohnfläche:
135,79 m²
Nutzfläche:
135,79 m²
Gesamtfläche:
135,79 m²
Zimmer:
3
Badezimmer:
1
Toilette:
1
Stockwerk:
2
Baujahr:
1911
Altbau:
Ja
Zustand:
Gepflegt
Verfügbarkeit:
Verfügbar

Beschreibung

FAST FACTS WOHNUNG | ALTBAU | MIETE | 1040 | 2. Stock mit Lift | Wohnfläche rund 135,79 m² | 3 Zimmer (zentral begehbar) | Toilette separat | Badezimmer mit Badewanne | Küche mit Essbereich | WG geeignet | Nähe U1 Südtiroler Platz |

Hier trifft Altbaucharme auf zentrale Lage und beste Infrastruktur!

Diese Wohnung befindet sich im 2. Stock mit Lift (+ Mezzanin) in einer gepflegten Liegenschaft aus dem Jahr 1911 und überzeugt mit großzügiger Raumaufteilung, 3 zentral begehbaren Zimmern und einer ausgezeichneten Anbindung an die öffentlichen Verkehrsmittel. 

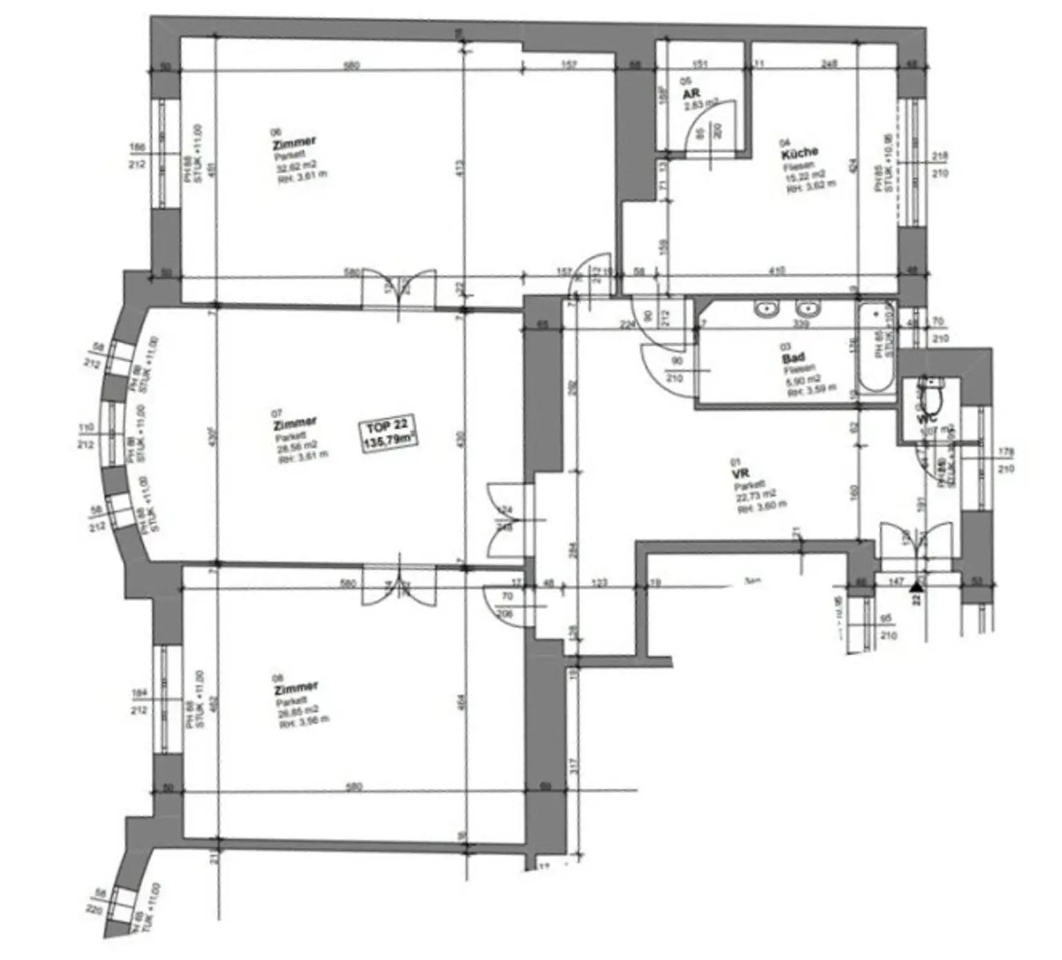
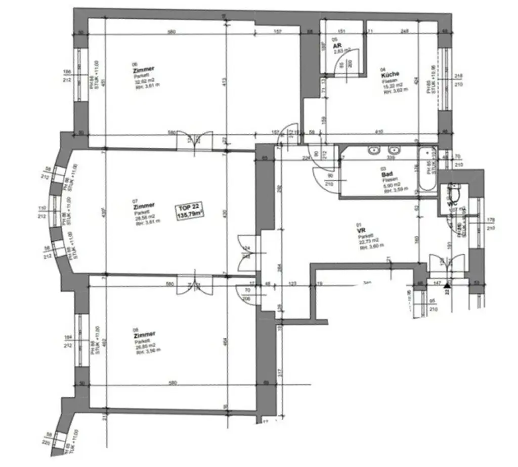
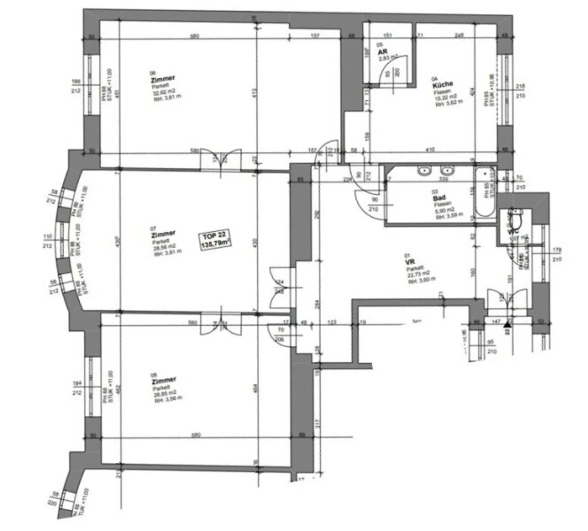
Auf einer Wohnfläche von insgesamt rund 135,79 m² erwartet Sie viel Platz für die persönliche Einrichtung und Gestaltung. Parkett im Fischgrätmuster, sowie eine Raumhöhe von ca. 3,60 Meter beeindrucken bereits beim Betreten der Wohnung.

Vom Vorraum aus erreichen Sie sämtliche Zimmer der Wohnung. Direkt im Eingangsbereich befindet sich die separate Toilette mit Fenster in den Innenhof und auch das Badezimmer ist eine wahre Ruheoase - Badewanne mit Duschtrennwand, Waschmaschinen-Anschluss und Waschbecken lassen hier keine Wünsche offen. 

Die Küche bietet auf insgesamt rund 15,22 m² einen Essbereich und die Ausrichtung in den Innenhof sorgt hier für angenehme Ruhe und lädt zum ausgedehnten Kochen ein. Die Einbauküche verfügt über einen Gasherd, Backofen, Dunstabzug, Geschirrspüler, sowie Kühlschrank und separaten Gefrierschrank. Ein praktischer Abstellraum ergänzt das Raumangebot. 

Ebenso vom Vorraum aus zu betreten sind die 3 Zimmer mit einer Fläche von jeweils rund 32,62 m², sowie 28,56 m² und 26,85 m². Das smarte Layout bietet den idealen Grundriss für Familien, Pärchen mit Platzbedarf oder Wohngemeinschaften. 

Auch die Lage überzeugt! Die ersten Einkaufsmöglichkeiten befinden sich in unmittelbarer Umgebung und der Hauptbahnhof Wien ergänzt das Angebot. Sämtliche Geschäfte des alltäglichen Lebens sind nur einen kurzen Spaziergang entfernt und die direkte Anbindung durch die U1 Südtiroler Platz sorgt für effektive Wege durch ganz Wien. 

Aufteilung:
- Vorraum
- Toilette separat
- Badezimmer mit Badewanne und Waschmaschinen-Anschluss
- Küche mit Essbereich
- Abstellraum
- 3 Zimmer

Ausstattung:
- Parkett
- Fliesen
- Raumthermostat
- Gasetagenheizung 
- Gegensprechanlage
- Waschmaschinen Anschluss
- Einbauküche mit Vollausstattung 
- Fahrradabstellbereich im Innenhof

Für einen Besichtigungstermin oder Fragen stehe ich Ihnen gern zur Verfügung.

Wir möchten darauf hinweisen, dass zwischen ViennaEstate Makler GmbH und dem Auftraggeber ein wirtschaftliches Naheverhältnis besteht.

Der Immobilienmakler erklärt, dass er – entgegen dem in der Immobilienwirtschaft üblichen Geschäftsgebrauch des Doppelmaklers – einseitig nur für den Vermieter tätig ist.

Infrastruktur / Entfernungen

Gesundheit
Arzt <500m
Apotheke <500m
Klinik <1.000m
Krankenhaus <1.000m

Kinder & Schulen
Schule <500m
Kindergarten <500m
Universität <1.000m
Höhere Schule <1.000m

Nahversorgung
Supermarkt <500m
Bäckerei <500m
Einkaufszentrum <1.000m

Sonstige
Geldautomat <500m
Bank <500m
Post <500m
Polizei <1.000m

Verkehr
Bus <500m
U-Bahn <500m
Straßenbahn <500m
Bahnhof <500m
Autobahnanschluss <2.500m

Angaben Entfernung Luftlinie / Quelle: OpenStreetMap
Beschreibung weiterlesen

Lage und Verkehrsanbindung

Der 4. Bezirk, Wieden, zählt zu den beliebtesten innerstädtischen Wohnlagen Wiens und verbindet historisches Flair mit urbanem Lebensstil. Die zentrale Lage direkt an der Inneren Stadt ermöglicht eine hervorragende Anbindung an das öffentliche Verkehrsnetz sowie kurze Wege zu Kulturstätten, Universitäten und Arbeitsplätzen. Wieden ist bekannt für seine architektonisch beeindruckenden Gründerzeithäuser, charmanten Gassen und ein vielfältiges Angebot an Restaurants, Cafés und kleinen Boutiquen. Der Bezirk bietet eine lebendige, aber dennoch ruhige Atmosphäre und überzeugt mit bester Infrastruktur.

Öffentliche Verkehrsmittel:
- U-Bahn Linie U1 Südtiroler Platz
- Straßenbahnlinie 0, 1, 18, 62, Badner Bahn
- Buslinie 13A, 69A, N66
- Diverse Zugverbindungen (Hauptbahnhof Wien)

U1 Südtiroler Platz

Energieeffizienz

HWB:
143,8 kWh/(m²*a)
HWB Klasse:
E
fGEE:
3,17
fGEE Klasse:
E
Energieausweisart:
Energiebedarfs-ausweis
Gültig bis:
25.03.2031

Grundriss

Lageplan

1040 Wien | Wien 4., Wieden

Lade...
Markus Damej

Markus Damej

ViennaEstate Makler GmbH

Lade...

Fotomix

Bild 1 Bild 2 Bild 3 Bild 4 Bild 5 Bild 6 Bild 7 Bild 8 Bild 9 Bild 10 Bild 11 Bild 12 Bild 13