Altbauperle an der U1 | ERSTBEZUG nach Generalsanierung | Südseitig

Wohnung zum Kauf in 1100 Wien - Kaufpreis: 395.000 € / Objektnummer: 141/84236
Ausstattung: Barrierefrei Fahrstuhl Fernwärme Terrasse
Blick
Großes Schlafzimmer
Großes Schlafzimmer
Wohnküche 2
Badezimmer
Kleines Schlafzimmer
Küche
Wohnküche
Wohnküche 1
WC
Lageplan
Hausansicht
Hausansicht 2
Lageplan
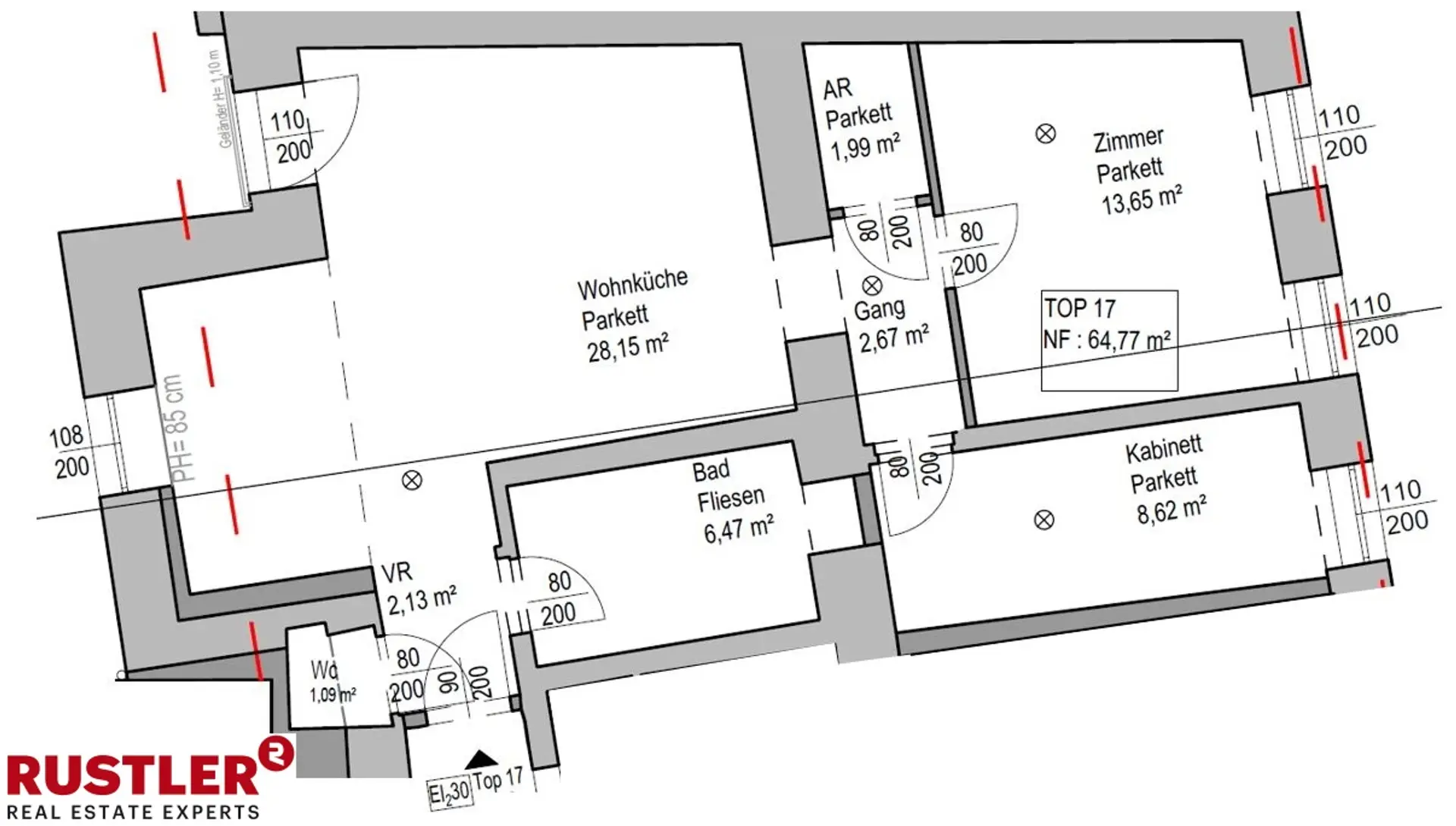
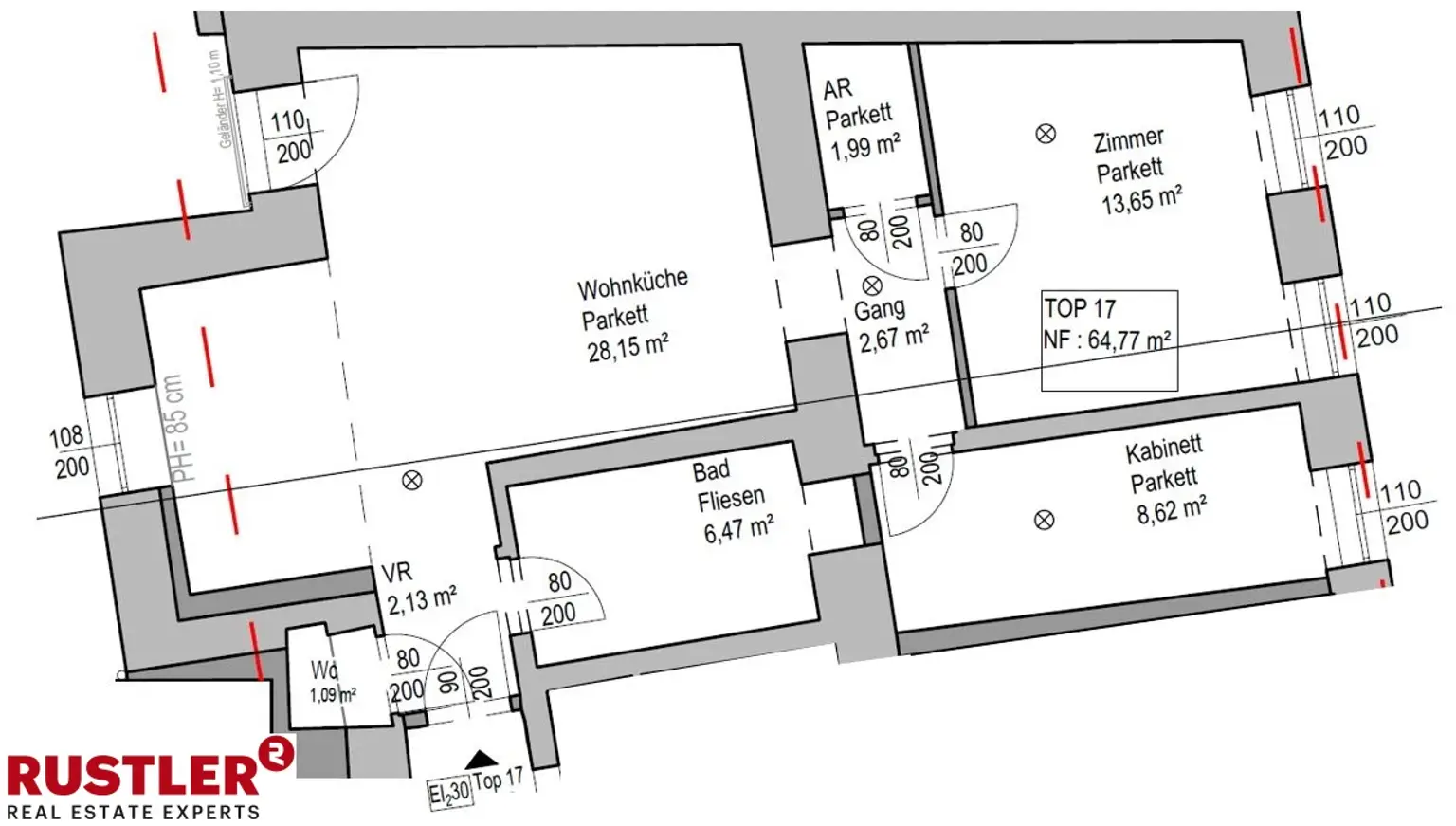
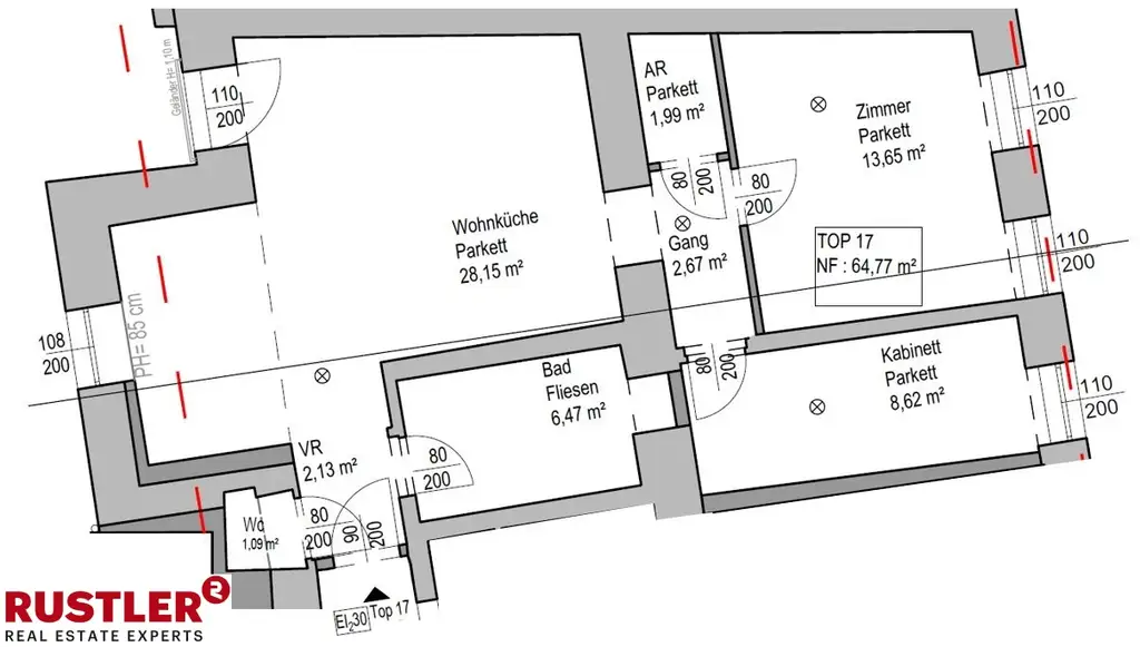
Grundriss Top 17

Preisinformationen

Kaufpreis:
395.000 €
Kaufpreis/m²
6.098,50 €
Vermittlungsprovision:
Ja
Provision:
3%

Fakten

Objektnummer:
141/84236
Objekttyp:
Wohnung
Terrasse:
1
Wohnfläche:
64,77 m²
Zimmer:
3
Badezimmer:
1
Toilette:
2
Altbau:
Ja
Verfügbarkeit:
Verfügbar

Beschreibung

Objektbeschreibung In einer ruhigen Seitengasse, und doch mitten im Leben, erwartet Sie ein liebevoll saniertes Gründerzeitwohnhaus mit Geschichte und Charakter. Die Liegenschaft in der Senefeldergasse wurde umfassend saniert und überzeugt durch stilvolle Details und moderner Infrastruktur. Im neu ausgebauten Dachgeschoss befindet sich das absolute Highlight - 4 Maisonettewohnungen mit einladenden Terrassenflächen, sowie eine kompakte moderne 3-Zimmerwohnung. Das Gebäude wurde von Grund auf saniert - verfügt nun über neu geschaffene Kellerabteile, Aufzug, ein einladendes Stiegenhaus sowie einer wunderschönen Hausfassade. Dabei wurde großer Wert darauf gelegt, den authentischen Altbaucharme zu bewahren und mit zeitgemäßer Wohnqualität zu verbinden. Die Wohnung Top 17 verfügt über rd. 65m² und teilt sich wie folgt auf: - Vorraum - Wohnküche - 2 Schlafzimmer - Abstellraum - Gang - Badezimmer - WC Zum Verkauf stehen 13 sanierte Altbauwohnungen in den Regelgeschossen, sowie 5 neu geschaffenen Dachgeschosswohnungen. Exklusive Wohneinheiten mit Größen von ca. 40m² bis 105m² und 2 bis 4 Zimmern - jede einzelne mit einem klaren Fokus auf Qualität, Design und Wohngefühl. Ausstattung Alle Wohnungen befinden sich im Erstbezug. Die Ausstattung lässt keine Wünsche offen: - Wärmeversorgung durch Fernwärme - komfortables Heizen durch Fußbodenheizung - elektrischer Wandheizkörper in den Badezimmern - exklusive Parkettböden in allen Wohn- und Schlafräumen - großformatige Fliesen in den Sanitärbereichen - Badewannen oder bodenbündige Duschen mit - qualitativ hochwertigen Armaturen - massive Wohnungseingangstüren mit Einbruchsschutz - hochwertige Fenster und Fenstertüren - Kabel-TV sowie Internet-Anschlüsse - Fahrradabstellraum - Großzügige Grundrisse mit viel Licht und wohlfühlender Raumhöhe Lage Die Senefeldergasse ist eine beruhigte Seitengasse inmitten des traditionellen Favoritenviertels. Die Umgebung bietet eine ausgezeichnete Mischung aus urbanem Lebensgefühl und Naherholung: In Gehweite befinden sich zahlreiche Einkaufsmöglichkeiten, gemütliche Cafés, Restaurants, Schulen und Kindergärten. Die nahegelegene Favoritenstraße bietet eine Vielzahl an Geschäften und eine direkte Anbindung an das öffentliche Verkehrsnetz - die U1-Station "Reumannplatz" sowie mehrere Straßenbahn- und Buslinien sind rasch fußläufig erreichbar. In wenigen Minuten gelangt man so sowohl in die Wiener Innenstadt als auch zum Erholungsgebiet Wienerberg und Oberlaa.
Beschreibung weiterlesen

Energieeffizienz

HWB:
54,35 kWh/(m²*a)
HWB Klasse:
C
fGEE:
0,9
fGEE Klasse:
B

Grundriss

Timo Kohlweiss

Timo Kohlweiss

Rustler Immobilientreuhand

Lade...

Fotomix

Blick Großes Schlafzimmer Großes Schlafzimmer Wohnküche 2 Badezimmer Kleines Schlafzimmer Küche Wohnküche Wohnküche 1 WC Lageplan Hausansicht Hausansicht 2 Lageplan