Alternative zu Wien/Wien Hauptbahnhof/ Stockerau in nur 40 Minuten..., Erstbezug dazu leistbares Wohnen

Wohnung zur Miete in 2000 Stockerau - Gesamtmiete: 1.002,08 € / Objektnummer: 6953
Ausstattung: Barrierefrei Rollstuhlgerecht Sporteinrichtungen Klimaanlage Zentralheizung Balkon
Küchenzeile
Wohnraum und Küche
Terrasse
Projekt Stockerau
Innenhof
Blick zum Schlafzimmer
Schlafzimmer
Vorraum
Wannenbad
3.28

Preisinformationen

Gesamtmiete:
1.002,08 € / Monat
Betriebskosten netto:
132,10 € / Monat
Umsatzsteuer:
91,10 €
Kaution:
3.007,00 €

Fakten

Objektnummer:
6953
Objekttyp:
Wohnung
Balkon:
1
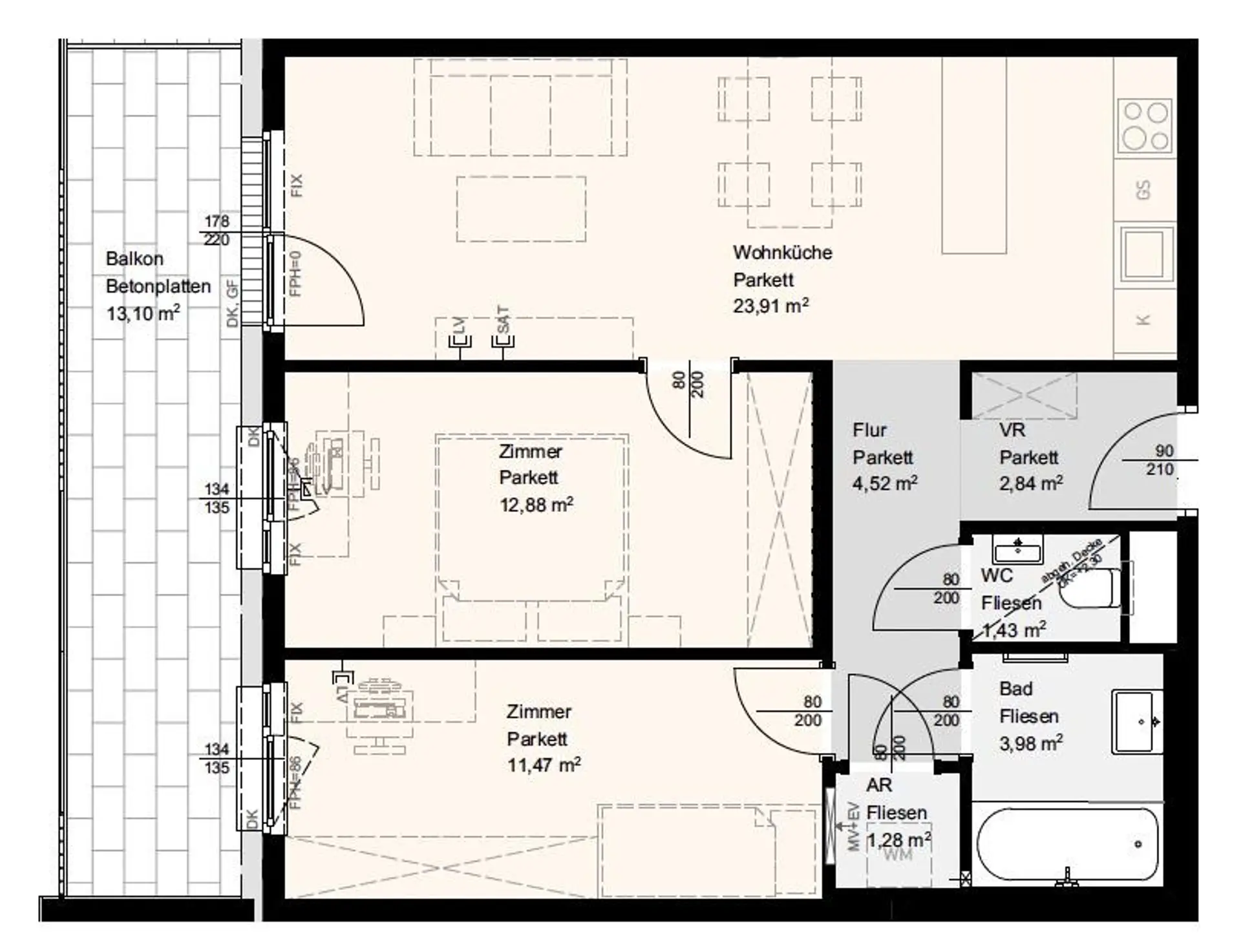
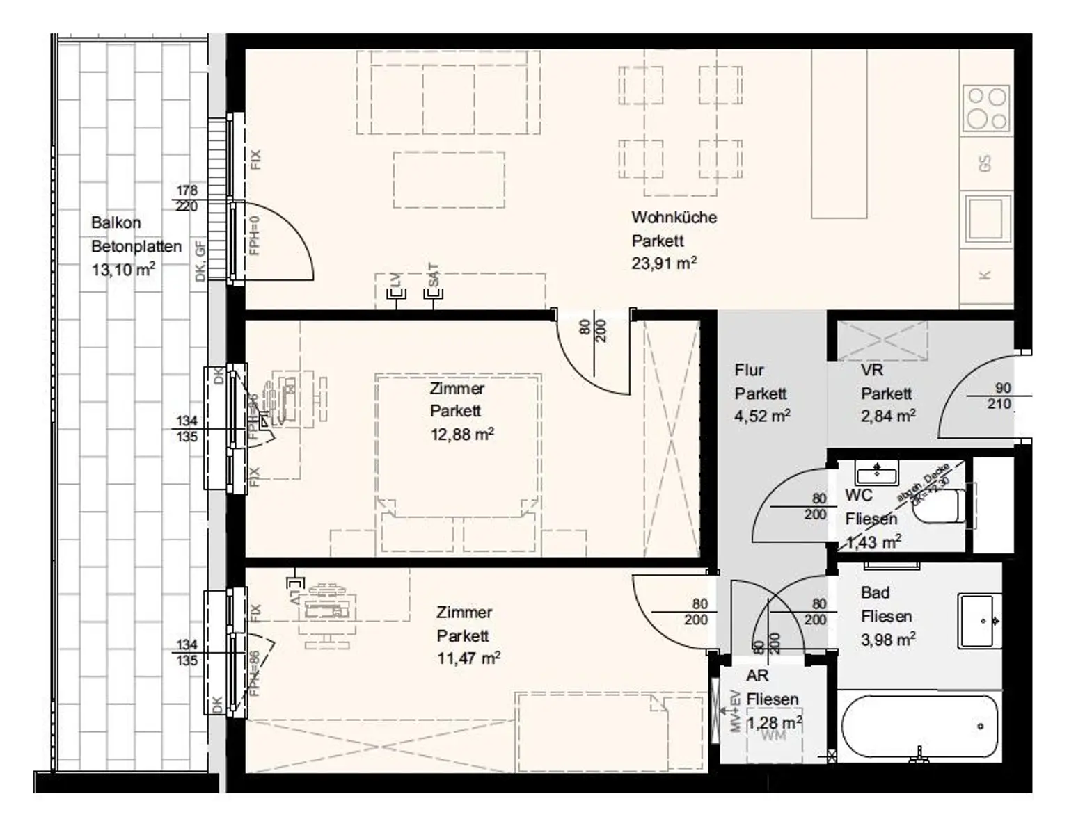
Wohnfläche:
62,31 m²
Zimmer:
3
Badezimmer:
1
Toilette:
1
Stockwerk:
3
Baujahr:
2024
Neubau:
Ja
Zustand:
Erstbezug
Verfügbarkeit:
Verfügbar

Beschreibung

Sie suchen für sich und/oder Ihre PartnerIn bzw. Ihre Familie eine besonders ansprechende und brandneue Mietwohnung in einer brandneuen Wohnanlage?
Ein „bissl „außerhalb, aber doch sehr nahe an Wien sollte es sein, umgeben von viel Grün, ruhig gelegen, geräumig, aber gemütlich, eventuell mit Garten oder Terrasse, denn Sie möchten gerne Ihre Ruhe genießen können und in herrlicher Umgebung mit einem Glaserl Wein auf das schöne Leben anstoßen?!

Wir haben diese Wohnung für Sie gefunden!


BESONDERE HIGHLIGHTS UND
AUSSTATTUNGSMERKMALE

• Einige Wohnungen frei !
• Nah an Wien und Umgebung (40 Minuten mit dem Zug zum Hbf. Wien)
• Fast ein Erstbezug
• Nah an den Öffis und der Autobahn
• Naturschutzgebiet in 7 Minuten zu Fuß erreichbar, zum Spazierengehen, Joggen, Radfahren, Erholen, Wandern, Schwimmen, ...
• Deckenkühlung (passive Kühlung im Sommer durch die Betondecke) und Heizung (thermische Heizdecke, per Fernwärme)
• 3-Scheiben-Isolierverglasung
• Küche samt moderner Ausstattung von Lutz: Kühl- und Gefrierkombination, Geschirrspüler, Einbauherd, Umluft, ...
• v Parkett in Eiche
• elektrische Außenrollläden oder Raffstores
• Farb-Video Gegensprechanlage
• Einlagerungsräume
• Teilweise PV-Anlagen für die Haustechnik
• Feinsteinzeug für Bäder, WC´s und Stiegenhäuser
• Waschmaschinenanschluss
• Hauseigene SAT-Anlagen
• Große Auswahlmöglichkeit an Objekten mit
Terrasse, Garten, Loggia oder Balkon
• Garagen und E- Tankstellen
• Kinderwagen und Fahrradabstellräume
• Jugend und Kinderspielplatz

Die Schaubilder dienen zur Illustration und können von planlichen und natürlichen Gegebenheiten abweichen. Änderungen vorbehalten.

RAUMAUFTEILUNG

• Geräumiger Vorraum mit Parkett
• 2 Schlafzimmer
• Wohnraum mit Küchenzeile
• Wannenbad
• WC separat
• Abstellraum
• Balkon
• ALLE Räume mit Zugang ins Freie!

ÖFFENTLICHE VERKEHRSANBINDUNG
GRÄTZL UND UMGEBUNG

• Naturschutzgebiet vor der Haustüre (Stockerauer Au) in 7 Minuten zu Fuß erreichbar
• Nähe der Donauuferautobahn
• gute Infrastruktur, Nahversorger, Shops, Kultur ( Belvedereschlössl, Automobilmuseum), Schulen, Banken, Kino, Landesklinikum Stockerau,
E-Tankstellen
S3, S4 der Wiener Schnellbahnlinien,
mit Park @ Ride Anlagen sowie eine nextbike-Verleihstation.

ERSTZAHLUNG
• 3 BMM Kaution
• erste Monatsmiete im Voraus

WEITERE MONATLICHE KOSTEN
• Wasser, Heizung... werden von der ISTA nach tatsächlichem Verbrauch abgerechnet
• Strom - wird direkt nach Verbrauch abgerechnet (Wien Energie bzw. Netznutzung Wiener Netze)
• ggf. TV/Internet, Haushaltsversicherung, GIS, o.Ä.

VERTRAGSBEDINGUNGEN
• Befristung: 10 Jahre
• Kündigungsverzicht: 12 Monate (mieterseitig)
• Kündigungsfrist: 3 Monate
• gefordertes Mindestnettoeinkommen (Haushalt): Die Miete sollte maximal 40% des Nettoeinkommens betragen, sollte zumindest die 50% Quote erfüllt sein, kann eine höhere Kaution hinterlegt werden

Nähere Infos unter: www.daskoloman.at

Falls Sie Fragen haben oder einen Beratungsterminwünschen, stehe ich Ihnen selbstverständlich gerne zur Verfügung.

KONTAKT
Frau Anette Mazanec
Tel: +43 664 44 888 79
Email: anette.mazanec@hubner-immobilien.com
Angaben gemäß gesetzlichem Erfordernis:
Miete 778,88 zzgl 10% USt.
Betriebskosten 132,1 zzgl 10% USt.
Umsatzsteuer 91,1
---------------------------------
Gesamtbetrag 1002,08
Beschreibung weiterlesen

Dokumente

Anette Mazanec

Anette Mazanec

Hubner Immobilien GmbH

Anrufen
Lade...

Fotomix

Küchenzeile Wohnraum und Küche Terrasse Projekt Stockerau Innenhof Blick zum Schlafzimmer Schlafzimmer Vorraum Wannenbad 3.28