Am Langen Felde 52, 1220 Wien

Wohnung zur Miete in 1220 Wien - Gesamtmiete: 919,00 € / Objektnummer: 1240/233749
Ausstattung: Barrierefrei Balkon

Preisinformationen

Gesamtmiete:
919,00 € / Monat
Betriebskosten netto:
106,13 € / Monat
Umsatzsteuer:
83,54 €
Kaution:
2.760,00 €
Provision:
Gemäß Erstauftraggeberprinzip bezahlt der Abgeber die Provision.

Fakten

Objektnummer:
1240/233749
Objekttyp:
Wohnung
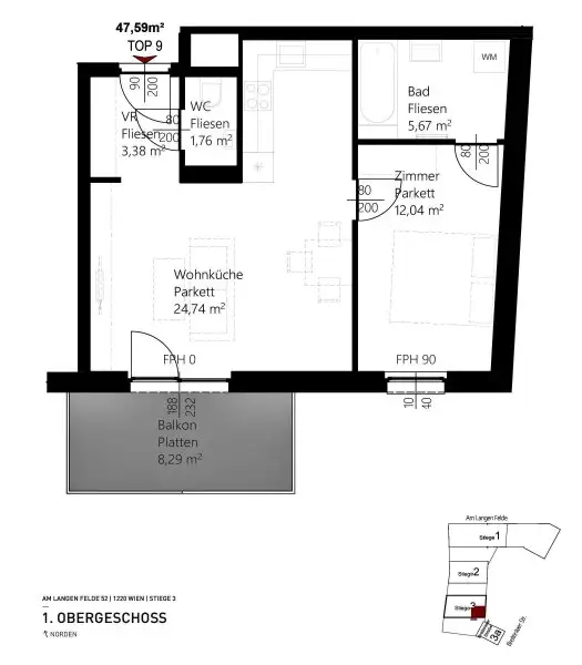
Balkon:
1
Balkonfläche:
8,29 m²
Wohnfläche:
47,59 m²
Nutzfläche:
47,59 m²
Zimmer:
2
Stockwerk:
1
Zustand:
Neuwertig
Verfügbarkeit:
Verfügbar
Verfügbar ab:
01.06.2026

Beschreibung

WOHNBAUPROJEKT AM LANGEN FELDE 52 MIT 88 1- BIS 3-ZIMMER-WOHNUNGEN

 

Zur Anmietung stehen 1- bis 3-Zimmer-Wohnungen mit privaten Außenflächen Garten, Balkon, Terrasse und Loggia. Die insgesamt 88 Wohnungen zeichnen sich durch sehr viele unterschiedliche, durchdachte Grundrisse aus, so dass sowohl Singles als auch größere Familien geeigneten Raum zum Leben finden können. Die Wohnungsgrundrisse sind von kompakt bis großzügig geplant. 

Hier können Sie einen Rundgang durch die Musterwohnung unternehmen. [https://ths.li/APu1Pw]

Jede Wohnung wird bezugsfertig mit einer hochwertigen Komplettküche mit Zanussi-Geräten inkl. Geschirrspüler und Mikrowelle übergeben. Die Küchen sind für jede Wohnung vorgegeben (bereits bestellt) und ersichtlich in der Visualisierung. Die Wohnungen in den obersten Geschoßen (immer letztes Geschoß) sind für eine optionale Kühlmöglichkeit vorbereitet, Rohinstallation vorhanden. Die Innen- und Außenteile samt Einreichung können durch den Mieter über eine Fachfirma fertig ausgebaut werden. Bitte beachten Sie die eingezeichneten Dachschrägen in den oberen Geschoßen auf den beigefügten Wohnungsplänen.

Jeder Wohnung ist im Kellergeschoß ein Kellerabteil zugeordnet. Das Stiegenhaus sowie alle Erschließungsflächen von den Haushaupteingängen bis zu den Dachgeschossen sind barrierefrei und natürlich belichtet. Kinderwagenraum und Müllraum befinden sich in unmittelbarer Nähe zum Hauptzugang, somit direkt an den Alltagswegen der Bewohner. 

In der Umgebung befindet sich eine große Anzahl an Geschäften des täglichen Bedarfs - z.B. das Einkaufszentrum K1 und auch Einkaufszentrum am Rennbahnweg -, Kindergarten, Schulen und zahlreiche Arztordinationen. Für eine öffentliche Anbindung sorgt die Straßenbahnlinie 26 nur wenige Meter entfernt, ebenso wie die Autobuslinien 22A und 24A. Beide stellen die direkte Verbindung zur U1 Station Kagraner Platz dar, welche man alternativ auch in 8 Gehminuten erreicht. 

Der Park an der Westseite des Projektgebiets HRACHOWINA NORD wird als Aktivitätszone für Alt- und Neu-Kagraner gestaltet und macht Spuren der alten Flusslandschaft lesbar 

Im Kellergeschoß befindet sich eine Tiefgarage mit insgesamt 45 PKW-Stellplätzen.

Bonitätsvorgabe: Die Gesamtmiete darf 40% Ihres Netto-Einkommens nicht übersteigen. Grundvoraussetzung sind ein aktives Arbeitsverhältnis (nachweislich mit Gehaltszetteln), Einkommensbescheide aus dem Vorjahr oder Nachweis zum Pensionsbezug.

Alle verfügbaren Mietwohnungen und Gewerbeflächen der Haring Group finden Sie auf unserer Immobilienseite unter www.haring-group.at  [http://www.haring-group.at/aktuelle-projekte/miete/]

Wir bitten bei Zusendung einer Anfrage um Angabe Ihrer Telefonnummer zur schnelleren Kontaktaufnahme durch unser Büro.

Wir weisen darauf hin, dass zwischen dem Vermittler und dem zu vermittelnden Dritten ein familiäres oder wirtschaftliches Naheverhältnis besteht.

Der Immobilienmakler erklärt, dass er – entgegen dem in der Immobilienwirtschaft üblichen Geschäftsgebrauch des Doppelmaklers – einseitig nur für den Vermieter tätig ist.

Infrastruktur / Entfernungen

Gesundheit
Arzt <400m
Apotheke <125m
Klinik <1.900m
Krankenhaus <3.375m

Kinder & Schulen
Schule <350m
Kindergarten <425m
Universität <1.775m
Höhere Schule <850m

Nahversorgung
Supermarkt <125m
Bäckerei <625m
Einkaufszentrum <800m

Sonstige
Geldautomat <650m
Bank <650m
Post <700m
Polizei <1.250m

Verkehr
Bus <100m
U-Bahn <775m
Straßenbahn <250m
Bahnhof <775m
Autobahnanschluss <950m

Angaben Entfernung Luftlinie / Quelle: OpenStreetMap
Beschreibung weiterlesen

Energieeffizienz

HWB:
24,9 kWh/(m²*a)
fGEE:
0,8
Energieausweisart:
Energiebedarfs-ausweis

Grundriss

Lageplan

1220 Wien | Wien 22., Donaustadt

Lade...
Haring Immobilien Treuhand GmbH

Haring Immobilien Treuhand GmbH

Haring Group Bauträger GmbH

Lade...

Fotomix

Bild 1 Bild 2 Bild 3 Bild 4 Bild 5 Bild 6 Bild 7 Bild 8 Bild 9 Bild 10 Bild 11 Bild 12 Bild 13 Bild 14 Bild 15 Bild 16 Bild 17 Bild 18 Bild 19 Bild 20 Bild 21 Bild 22 Bild 23 Bild 24 Bild 25 Bild 26 Bild 27 Bild 28 Bild 29 Bild 30 Bild 31 Bild 32