NEU - AMSTETTEN II/3+4, geförderte Mietwohnung mit Kaufoption, DG TOP 12/5, 1000/00010160/00001125

Wohnung zur Miete in 3300 Amstetten - Gesamtmiete: 972,36 €
Ausstattung: Außenparkplatz Terrasse

Preisinformationen

Gesamtmiete:
972,36 € / Monat
Vermittlungsprovision:
Ja

Fakten

Objekttyp:
Wohnung
Terrasse:
1
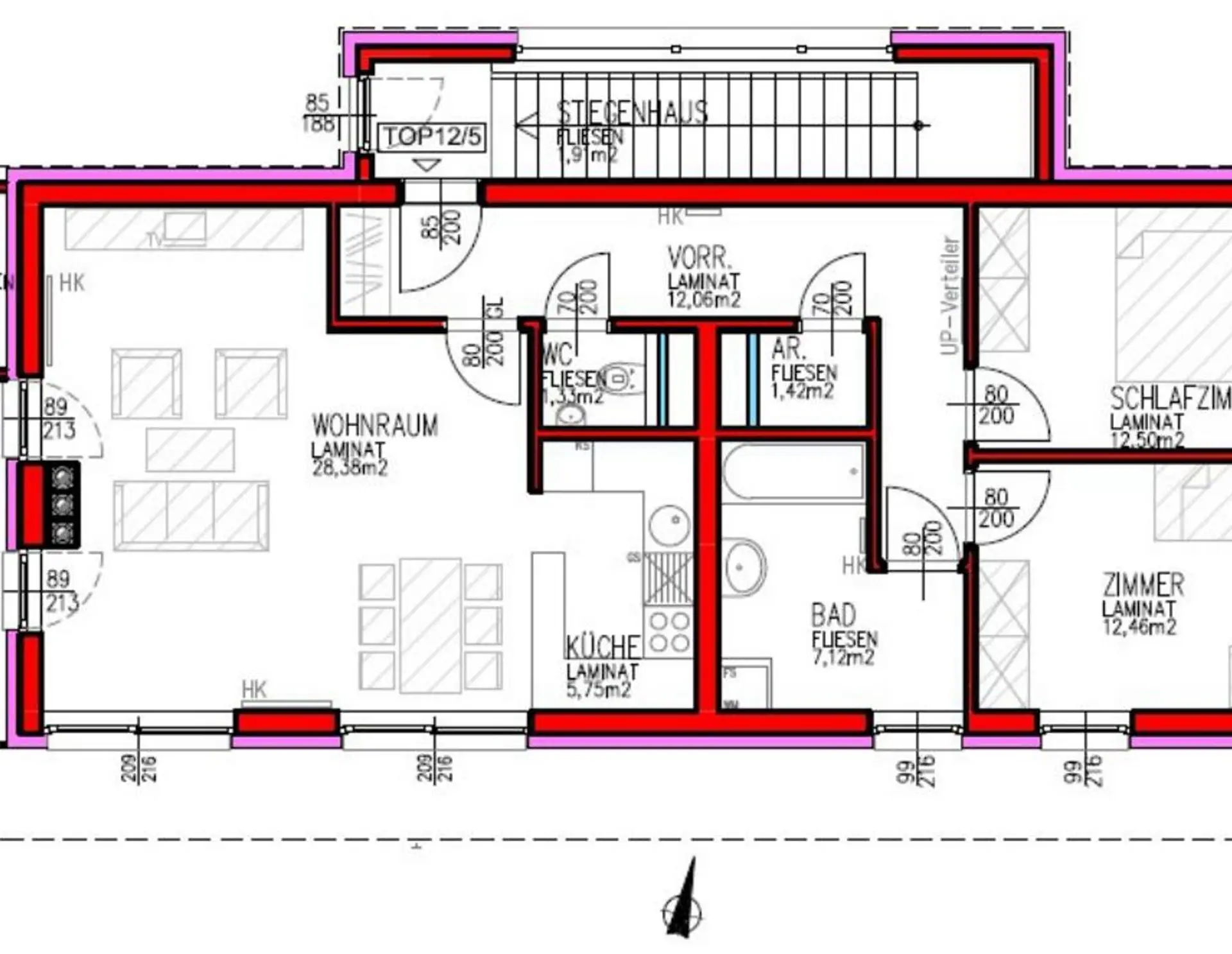
Nutzfläche:
81 m²
Zimmer:
3
Neubau:
Ja
Verfügbarkeit:
Verfügbar

Beschreibung

Im östlichen Stadtteil von Amstetten, in ruhiger Lage befinden sich 24 familienfreundliche geförderte Wohnungen von 70 bis 92m². Optimale Infrastruktur wie Behörden, Banken, Gastronomie- und Einkaufsmöglichkeiten finden…
Beschreibung weiterlesen

Alpenland, Gemeinnützige Bau-, Wohn- und Siedlungsgenossenschaft

Lade...

Fotomix

Bild 1 Bild 2 Bild 3 Bild 4