NEU - Anleger aufgepasst: Geschäftslokal mit über 5 % Rendite in 1220 Wien!

Einzelhandel zum Kauf in 1220 Wien - Kaufpreis: 52.000 € / Objektnummer: 141/84647
IMG_2208
IMG_2212
IMG_2214
IMG_2215
IMG_2217
IMG_2218
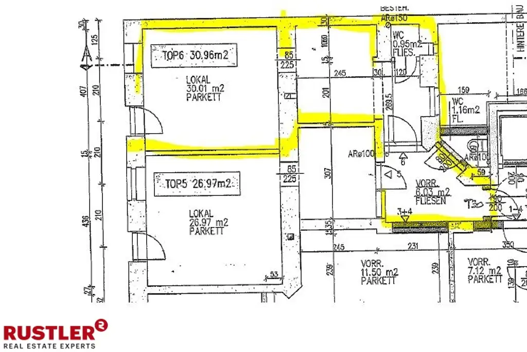
Grundrissplan 6

Preisinformationen

Kaufpreis:
52.000 €
Kaufpreis/m²
1.485,71 €
Vermittlungsprovision:
Ja
Provision:
3%

Fakten

Objektnummer:
141/84647
Objekttyp:
Einzelhandel
Nutzfläche:
35 m²
Baujahr:
1900
Verfügbarkeit:
Verfügbar

Beschreibung

Zum Verkauf gelangt ein kompaktes, unbefristet vermietetes Geschäftslokal im 22. Wiener Gemeindebezirk. Das Objekt bietet eine ideale Gelegenheit für Anleger, die ein kleines, risikoarmes Investment mit sofortigen Mieteinnahmen suchen. Objektdetails Adresse: Moissigasse 8, 1220 Wien Objektart: Geschäftslokal Nutzfläche: ca. 35 m² Kaufpreis: € 52.000,- Mietverhältnis: Unbefristeter Mietvertrag Aktuelle Nutzung: Beisl / Café Zustand: gepflegt, gut nutzbare Raumstruktur Monatliche Einnahmen & Kosten Hauptmietzins: € 222,63 Betriebskosten: € 56,88 Betriebskosten Wasser: € 12,67 Betriebskosten Heizung: € 29,55 Umsatzsteuer: € 64,35 Bruttomiete gesamt: € 386,08 / Monat Renditeberechnung (nur Hauptmietzins) -) Jahres-Hauptmietzins: € 222,63 × 12 = € 2.671,56 -) Brutto-Rendite: € 2.671,56 / € 52.000 = ca. 5,14 % Damit bietet das Objekt eine attraktive Einstiegsrendite bei einem sehr niedrigen Kaufpreis – ideal für Anleger, die eine kleine, aber stabile Immobilienanlage suchen. Beschreibung Das rund 35 m² große Lokal befindet sich im Erdgeschoss eines gepflegten Gebäudes und ist aktuell als kleines Beisl bzw. Café in Betrieb. Der unbefristete Mietvertrag sorgt für eine langfristige, planbare Einnahmesituation. Die kompakte Größe, die einfache Struktur und die solide Vermietung machen das Objekt zu einer äußerst unkomplizierten Anlageimmobilie. Lage Die Moissigasse liegt im beliebten Bezirk Donaustadt, einem dynamisch wachsenden Wohngebiet mit guter Infrastruktur und Nahversorgung. Die Lage bietet eine stabile Frequenz sowie eine gute Erreichbarkeit sowohl öffentlich als auch mit dem Auto.
Beschreibung weiterlesen

Energieeffizienz

HWB:
165,16 kWh/(m²*a)
HWB Klasse:
E
fGEE:
5,4
fGEE Klasse:
G

Grundriss

Paula Polaniecki

Paula Polaniecki

Rustler Immobilientreuhand

Anrufen
Lade...

Fotomix

IMG_2208 IMG_2212 IMG_2214 IMG_2215 IMG_2217 IMG_2218