NEU - Anlegerwohnung im Neubauprojekt (Angerweg 2 - Top 12)

Wohnung zum Kauf in 4694 Ohlsdorf - Kaufpreis: 398.406 € / Objektnummer: 1068/4968
Ausstattung: Fahrstuhl Balkon
Visualisierung Aussenansicht
Visualisierung Innenansicht
Visualisierung Innenansicht
Visualisierung Badezimmer Top 12
Visualisierung Badezimmer Top 12
Visualisierung Badezimmer Top 12
Visualisierung Aussenansicht
Visualisierung Aussenansicht
zentrale Lage!
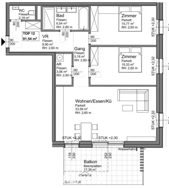
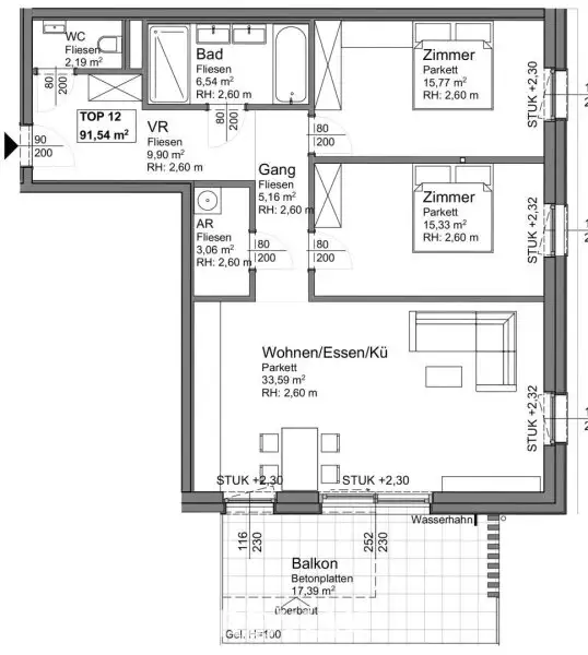
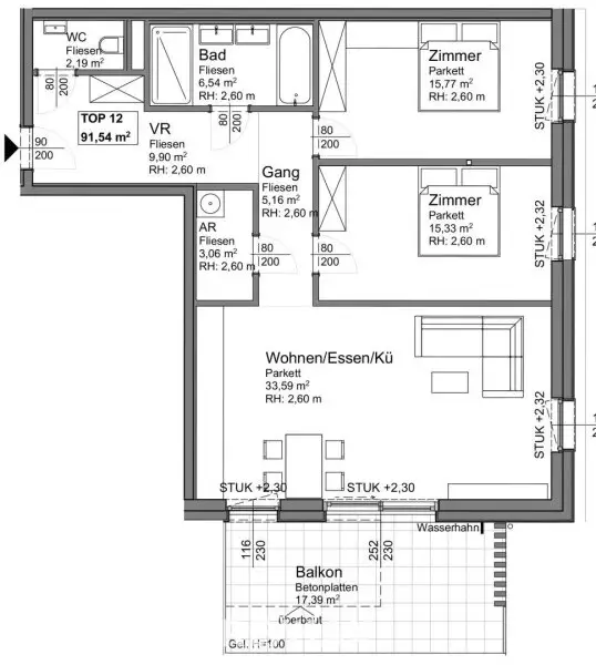
Grundrissplan Top 12
Grundriss Badezimmer Top 12

Preisinformationen

Kaufpreis:
398.406 €

Fakten

Objektnummer:
1068/4968
Objekttyp:
Wohnung
Balkon:
1
Balkonfläche:
17,39 m²
Keller Fläche:
3,45 m²
Wohnfläche:
91,54 m²
Zimmer:
3
Badezimmer:
1
Toilette:
1
Stockwerk:
1
Baujahr:
2025
Zustand:
Erstbezug
Verfügbarkeit:
Verfügbar

Beschreibung

Zentral. Zeitgemäß. Zuhause. – 13 Neubauwohnungen in Ohlsdorf, Angerweg 2

Top 12 bietet eine großzügige 3-Zimmer-Wohnung mit einem geräumigen Wohnbereich und einem schönen Balkon, der zusätzlichen Platz im Freien schafft. Die großzügigen Schlafzimmer bieten viel Komfort, während das Badezimmer sowohl mit einer Dusche als auch einer Badewanne ausgestattet ist – perfekt für Entspannung und Wohlfühlen. Diese Wohnung kombiniert viel Raum mit hochwertiger Ausstattung und idealer Wohnatmosphäre.

Kaufpreis netto: € 398.405,92
zuzüglich 20 % Ust = € 478.087,10
Kaufpreis für Eigennutzer: € 454.960,00

Attraktive Anlegerwohnungen in Ohlsdorf – Ihr Investment mit kostenloser Erstvermietung
Sichern Sie sich eine von 13 Anlegerwohnungen in bester Lage von Ohlsdorf am Angerweg! Diese hochwertigen Wohneinheiten mit Wohnflächen von 42 m² bis 110 m² bieten nicht nur erstklassige Ausstattung, sondern auch eine perfekte Investitionsmöglichkeit.

Ihr Investment-Vorteil:

🔹 Kostenlose Erstvermietung auf Wunsch – sorgenfreier Start für Anleger
🔹 Nettopreise zzgl. 20 % USt. – ideal für umsatzsteuerpflichtige Käufer
🔹 Hohe Wohn- und Vermietungsqualität – durchdachte Raumaufteilung und moderne Ausstattung

Attraktive Features für Mieter & Kapitalanleger:

✔ Großzügige Terrassen oder Eigengärten für höchsten Wohnkomfort
✔ Energieeffiziente Luftwärmepumpe & Fußbodenheizung für geringe Betriebskosten
✔ Barrierefreier Zugang mit Lift für nachhaltige Vermietbarkeit
✔ Tiefgaragenplätze für stressfreies Parken
✔ Schöne Parkettböden & stilvolle Fliesen – wertige Materialien für langfristige Qualität
✔ Individuelle Planung noch möglich – gestalten Sie nach Ihren Anforderungen

Perfekte Lage für stabile Mieteinnahmen:

📍 Zentrale & ruhige Wohnsiedlung – wenige Gehminuten ins Ortszentrum
🛍 Top-Infrastruktur – Nahversorger, Einkaufsmöglichkeiten & Schulen in direkter Umgebung
🌿 Freizeitparadies – Nähe zu Traunsee, Traunstein & zahlreichen Erholungsgebieten
🚗 Beste Verkehrsanbindung – schnelle Erreichbarkeit durch Autobahnnähe

🔑 Jetzt provisionsfrei direkt vom Bauträger investieren!

Nutzen Sie diese Gelegenheit für ein sicheres & wertbeständiges Immobilieninvestment. Kontaktieren Sie uns für weitere Informationen oder einen Beratungstermin.

Besuchen Sie unsere Projektseite und erfahren Sie mehr: www.angerweg-zwei.at

Infrastruktur / Entfernungen

Gesundheit
Arzt <500m
Apotheke <2.500m
Krankenhaus <5.500m
Klinik <3.000m

Kinder & Schulen
Schule <500m
Kindergarten <500m

Nahversorgung
Supermarkt <500m
Bäckerei <500m
Einkaufszentrum <4.500m

Sonstige
Bank <500m
Geldautomat <500m
Post <500m
Polizei <3.000m

Verkehr
Bus <500m
Straßenbahn <4.500m
Bahnhof <4.000m
Autobahnanschluss <4.000m
Flughafen <5.500m

Angaben Entfernung Luftlinie / Quelle: OpenStreetMap
Beschreibung weiterlesen

Lage und Verkehrsanbindung

Angerweg

Energieeffizienz

HWB:
40 kWh/(m²*a)
Energieausweisart:
Energiebedarfs-ausweis

Grundrisse

Lageplan

4694 Ohlsdorf | Gmunden

Lade...
Christian Sammer

Christian Sammer
staatl. geprüfter Immobilientreuhänder - Makler

RE/MAX Traunsee

Lade...

Fotomix

Visualisierung Aussenansicht Visualisierung Innenansicht Visualisierung Innenansicht Visualisierung Badezimmer Top 12 Visualisierung Badezimmer Top 12 Visualisierung Badezimmer Top 12 Visualisierung Aussenansicht Visualisierung Aussenansicht zentrale Lage!