NEU - Arbeiten & Wohnen vereint – Modernes Bürohaus mit Umwidmungspotenzial in Top-Lage!

Haus zum Kauf in 3423 St. Andrä-Wördern - Kaufpreis: 899.000 € / Objektnummer: 5585/186
Ausstattung: Boden Bad Gäste-WC Carport Parkplatz Außenparkplatz Abstellraum Fußbodenheizung Terrasse

Preisinformationen

Kaufpreis:
899.000 €
Kaufpreis/m²
3.137,10 €
Betriebskosten netto:
220,18 € / Monat
Heizkosten netto:
56,95 €
Parkplatz Kosten brutto:
27,66 €
Vermittlungsprovision:
Ja
Provision:
32.364,00 € inkl. 20% USt.

Fakten

Objektnummer:
5585/186
Objekttyp:
Haus
Terrasse:
1
Nutzfläche:
286,57 m²
Bürofläche:
150,84 m²
Zimmer:
10
Toilette:
2
Baujahr:
2020
Neubau:
Ja
Zustand:
Neuwertig
Verfügbarkeit:
Verfügbar

Beschreibung

MODERNES GESCHÄFTSHAUS MIT WOHNPOTENZIAL – NEUBAU 2021 IN GEFRAGTER LAGE!

Willkommen in Ihrem künftigen Geschäfts- oder Wohnsitz – in der aufstrebenden Gemeinde Sankt Andrä-Wördern, optimal angebunden und mit hervorragender Infrastruktur! Dieses außergewöhnliche Objekt vereint modernes Arbeiten mit der Möglichkeit zur Umwidmung für kombiniertes Wohnen und Arbeiten – Flexibilität auf höchstem Niveau! 

Mit einer großzügigen Nutzfläche von ca. 286,57 m² auf drei Ebenen und durchdachter Raumaufteilung bietet dieses Domizil vielfältige Nutzungsmöglichkeiten – ob als Firmensitz, für Freiberufler, gemischte Nutzung oder als wertbeständige Investition! Das gesamte Haus ist mit elektrischen Beschattungssystemen (Zip-Außenbeschattungen, Rollläden, straßenseitig Raffstore) ausgestattet, dies sorgt für angenehmes Raumklima und Privatsphäre.

ERDGESCHOSS – FUNKTIONAL & PRAKTISCH!

Das Erdgeschoss mit ca. 65,1 m² Nutzfläche bietet Stauraum-Räumlichkeiten, ein Badezimmer sowie eine Waschküche. Der barrierefreie Zugang und die Anbindung an den modernen Lastenaufzug garantieren komfortables und behindertengerechtes Arbeiten.

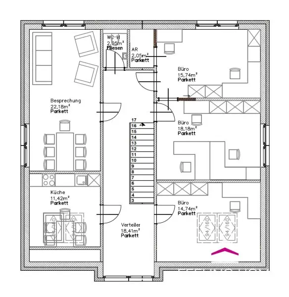
1. OBERGESCHOSS – GROSSZÜGIGKEIT TRIFFT KOMFORT!

Im ersten Obergeschoss erwartet Sie ein durchdachtes Raumkonzept mit mehreren lichtdurchfluteten Büroräumen. Eine große Küche auch als Besprechungsraum ideal, ein praktischer Abstellraum sowie ein WC vervollständigen diese Etage.

Die angenehme Raumhöhe und die energieeffiziente Fußbodenheizung sorgen für ein perfektes Arbeitsklima das ganze Jahr über. Der barrierefreie Zugang per Lastenaufzug macht dieses Geschoss besonders attraktiv.

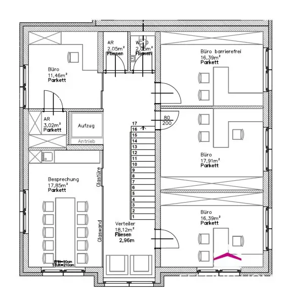
MODERNES DACHGESCHOSS MIT VIELSEITIGEM POTENZIAL! 

Das stilvolle Dachgeschoss besticht durch seine hochwertige Ausstattung. Große, 3-fach verglaste Velux-Dachfenster mit elektrischer Fernbedienung und Regensensor schaffen ein besonderes Wohlfühlambiente und sorgen das ganze Jahr über für angenehme Lichtverhältnisse.

Gemeinsam mit dem ersten Obergeschoss bietet die Fläche großzügige 221,47 m² und damit vielfältige Nutzungsmöglichkeiten. Neben einer Küche, einem WC und mehreren flexibel gestaltbaren Büroräumen überzeugt das Dachgeschoss vor allem durch sein attraktives Potenzial zum Umbau in eine moderne Wohnung – ideal für alle, die Arbeiten und Wohnen elegant miteinander verbinden möchten.

Die Vorbereitung für eine Klimaanlage ist bereits vorhanden – perfekt für höchsten Komfort, auch an heißen Sommertagen!

 

AUSSTATTUNG & HIGHLIGHTS

* 3 Stockwerke ohne Keller mit Lastenaufzug bis zur 1. OG (behindertengerecht)
* 6 PKW-Stellplätze, davon 4 Carport-Stellplätze mit Wallbox-Anschluss (1x Charger, 1x Vorbereitung)
* Photovoltaikanlage 9-10 kW mit Stromspeicher (Südausrichtung)
* Vollausgestattetes Badezimmer mit integriertem WC 
* Wärmepumpe mit Fußbodenheizung – energieeffizient & nachhaltig
* Velux-Fenster mit Fernbedienung & Regensensor im DG
* Schallschutzglas für ruhiges Arbeiten oder Wohnen trotz Straßenlage
* Größtenteils elektrische Beschattung (Zip-Außenbeschattung, Rollläden, Raffstore)
* LAN-Anschluss in jedem Büroraum
* LED-Band im Handlauf des Stiegenhauses
* Alarmsicherung für maximale Sicherheit
* Klimaanlagen-Vorbereitung im Dachgeschoss

HARD FACTS

* Baujahr 2020 – Fertigstellung 2021
* Ziegel-Massivbauweise
* Luftwärmepumpe, hochwertige Wärmedämmung
* 3-fach verglaste Kunststofffenster mit Schallschutzglas
* Robuster Vinylboden, im Schauraum Parkettboden
* Beschattung: Größtenteils elektrisch steuerbar (Zip, Rollläden, Raffstore)
* Waschküche im Erdgeschoss

WIDMUNG & POTENZIAL

Derzeit: Bürowidmung im Bauland-Kerngebiet
Potenzial: Umwidmung in Wohnnutzung oder gemischte Nutzung (Wohnen & Arbeiten) möglich – seitens der Eigentümer bereits geprüft!

Diese Flexibilität eröffnet vielfältige Nutzungsszenarien: vom reinen Geschäftssitz über Co-Working-Spaces bis hin zu modernen Wohneinheiten oder der perfekten Kombination aus beidem!

INFRASTRUKTUR

Ideale Lage: Alle Nahversorger in unmittelbarer Nähe, ein Billa-Markt wird in Kürze eröffnet. Das Ortszentrum ist in nur 5 Gehminuten erreichbar. Die Gemeinde Sankt Andrä-Wördern bietet alle erforderlichen Einrichtungen: Ärzte, Apotheke, Schule, Kindergarten sowie diverse Einkaufsmöglichkeiten.

Restaurants, Cafés und Freizeitmöglichkeiten an der nahen Donau runden das Angebot ab. Die Region zeichnet sich durch hohe Wohn- und Lebensqualität aus.

ÖFFENTLICHE ANBINDUNG

* St. Andrä-Wördern Bahnhof S40 – optimale Pendleranbindung
* Bus-Anbindung 411 nur 314 m entfernt
* Busanbindung an Tullnerfeld Bahnhof
* Gute Straßenanbindung durch Straßenlage

PARKPLÄTZE & E-MOBILITÄT

* 6 PKW-Stellplätze insgesamt
* 4 Carport-Stellplätze
* Wallbox-Anschluss installiert (1x Charger aktiv)
* 1x Vorbereitung für weiteren E-Ladeanschluss
* Zukunftssicher für Elektromobilität!

ENERGIEEFFIZIENZ & NACHHALTIGKEIT

Dieses Objekt wurde mit Fokus auf Energieeffizienz und Nachhaltigkeit errichtet:

* Hochwertige Wärmedämmung
* Wärmepumpe für umweltfreundliches Heizen
* Fußbodenheizung auf allen Ebenen
* Photovoltaikanlage 9-10 kW mit Stromspeicher (Südausrichtung)
* 3-fach verglaste Fenster für optimale Isolierung
* Geringe Betriebskosten durch moderne Technik

SONSTIGES

Diese Immobilie steht für modernes Arbeiten mit Zukunftsperspektive – hochwertige Ausstattung, energieeffiziente Bauweise und die einzigartige Möglichkeit zur Umwidmung machen dieses Objekt zu einer außergewöhnlichen Investition! Ob als Firmensitz, Praxisräumlichkeiten, Co-Working-Space oder als kombinierte Wohn- und Arbeitsstätte – die Möglichkeiten sind vielfältig! Vereinbaren Sie noch heute Ihren Besichtigungstermin und überzeugen Sie sich selbst von diesem einzigartigen Objekt!

Das Haus kann wahlweise um EUR 899.000,- (ohne ausgewiesene Mehrwertsteuer) oder um netto EUR 849.000,- zzgl. 20 % USt. (brutto EUR 1.018.800,-) erworben werden.

KAUF-NEBENKOSTEN-ÜBERSICHT
Maklerhonorar: 3% zzgl. 20% USt.
Grundbuchseintragungsgebühr: 1,1%
Grunderwerbssteuer: 3,5%
Kaufvertragserrichtung 1-3% plus USt. plus Barauslagen

Besichtigungen können jederzeit nach telefonischer oder schriftlicher Voranmeldung vereinbart werden! FEELING HOME freuet sich auf Ihre Kontaktaufnahme!

Nutzen Sie die Gelegenheit und profitieren Sie zudem von der Gebührenbefreiung seit 1.04.2024 (1,1% Grundbuch-Eintragungsgebühr, 1,2% Eintragungsgebühr der Pfandurkunde bis EUR 500.000,- KP) beim Kauf vom Eigenheim! Sie sparen diese Gebühren im Zeitraum vom 01. Juli 2024 bis 30. Juni 2026 und profitieren schon jetzt davon! Im neuen Haus melden Sie für die nächsten fünf Jahre Ihren Hauptwohnsitz an.

Bitte haben Sie Verständnis, dass wir aufgrund der Nachweispflicht gegenüber dem Eigentümer nur Anfragen mit vollständiger Anschrift und Telefonnummer beantworten können. 

Die Daten stammen direkt vom Eigentümer. Eine Haftung für deren Richtig- oder Vollständigkeit kann nicht übernommen werden. Änderungen und Irrtümer vorbehalten.

Haben Sie eine Immobilie zu vermieten oder zu verkaufen? Vereinbaren Sie noch heute Ihren kostenlosen Beratungstermin unter 0660 34 69 538 oder unter christiani@feeling-home.at.

»Zusätzlich bieten Ihnen meine Geschäftspartner eine kompetente Finanzierungsbegleitung zu aktuellen Bestkonditionen an. Fragen Sie mich sehr gern danach!«

Der Vermittler ist als Doppelmakler tätig.

Infrastruktur / Entfernungen

Gesundheit
Arzt <250m
Apotheke <500m
Krankenhaus <7.250m
Klinik <5.500m

Kinder & Schulen
Schule <500m
Kindergarten <250m
Universität <4.250m

Nahversorgung
Supermarkt <250m
Bäckerei <750m

Sonstige
Bank <250m
Geldautomat <250m
Post <500m
Polizei <500m

Verkehr
Bus <250m
Autobahnanschluss <6.500m
Bahnhof <1.500m
Flughafen <6.500m

Angaben Entfernung Luftlinie / Quelle: OpenStreetMap
Beschreibung weiterlesen

Lage und Verkehrsanbindung

Dieses moderne Geschäftsgebäude überzeugt durch seine hervorragende Infrastrukturanbindung und die ideale Kombination aus Erreichbarkeit, Sichtbarkeit und Lebensqualität. Die zentrale Straßenlage sorgt für eine ausgezeichnete Präsenz und eine einfache Anfahrt für Kunden und Geschäftspartner.
Die Bahnanbindung direkt im Ort gewährleistet eine bequeme und schnelle Verbindung nach Wien und in die umliegenden Regionen – perfekt für Pendler und Geschäftstermine. Gleichzeitig bietet Sankt Andrä-Wördern mit seinem charmanten Ortskern, der Nähe zur Donau und der umfassenden Nahversorgung ein attraktives Umfeld, das Arbeiten und Lebensqualität auf besondere Weise vereint.

Donaualtarm Greifenstein

Energieeffizienz

HWB:
34,1 kWh/(m²*a)
HWB Klasse:
B
fGEE:
0,66
fGEE Klasse:
A+
Energieausweisart:
Energiebedarfs-ausweis
Gültig bis:
09.09.2030

Grundrisse

Lageplan

3423 St. Andrä-Wördern | Tulln

Lade...
Helene Christiani

Helene Christiani
Geschäftsführerin

FEELING HOME IMMOBILIEN

Virtuelle Tour

Lade...

Fotomix

Bild 1 Bild 2 Bild 3 Bild 4 Bild 5 Bild 6 Bild 7 Bild 8 Bild 9 Bild 10 Bild 11 Bild 12 Bild 13 Bild 14 Bild 15 Bild 16 Bild 17 Bild 18 Bild 19 Bild 20 Bild 21 Bild 22 Bild 23 Bild 24 Bild 25 Bild 26 Bild 27