NEU - ARCHITEKTENHAUS: Wunderschöne Maisonettewohnung mit Westbalkon in traumhafter Lage ab Juni zu mieten!

Wohnung zur Miete in 6068 Mils - Gesamtmiete: 1.500,00 € / Objektnummer: 4274
Überdachter West-Balkon mit ca. 17m² Fläche
Ausblick Balkon
Küche + Essbereich
Küche mit Granitplatte
Küche + Essbereich
Essbereich
Stiegenaufgang mit Abstellraum
Heller Stiegenaufgang
Heller Stiegenaufgang
Zimmer 1 mit ca. 30m² plus 5,60m² niedriger als 1,5m
Zimmer 1 mit Einbauschrank
Zimmer 1 mit ca. 30m²
Zimmer 1 mit Regal
Zimmer 1 mit ca. 30m²
Zimmer 2 mit ca. 8m² plus ca. 3,8m² niedriger als 1,5m
Zimmer 2 mit ca. 8m² plus ca. 3,8m² niedriger als 1,5m
Badezimmer mit Badewanne, Fenster, Dusche, Bédé und WC
Dusche
Badewanne
Badezimmer mit ca. 16m²
Badezimmer mit Stauraum
Eingangsbereich mit Einbauschränken
Separater Zugang zur Wohnung
Außenansicht
Außenansicht mit 1 Autoabstellplatz
Außenansicht
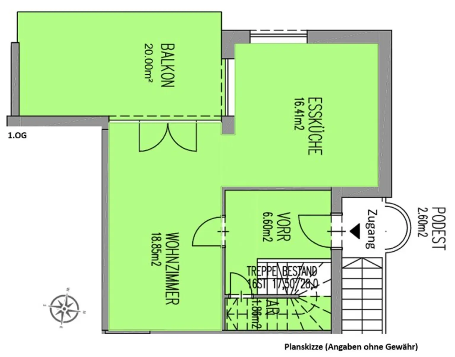
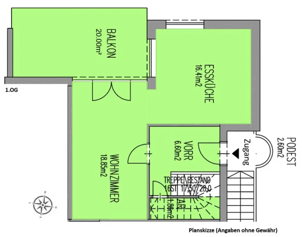
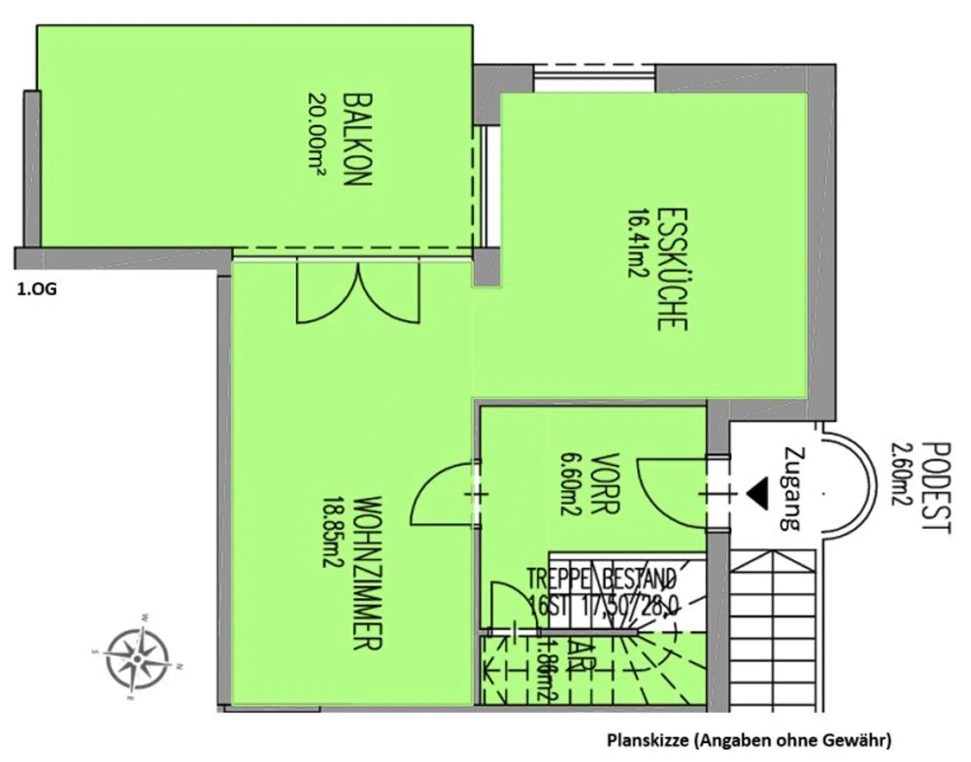
Planskizze 1.OG
Planskizze 2.OG (DG)

Preisinformationen

Gesamtmiete:
1.500,00 € / Monat
Kaution:
3 Bruttomonatsmieten
Provision:
Gemäß Erstauftraggeberprinzip bezahlt der Abgeber die Provision.

Fakten

Objektnummer:
4274
Objekttyp:
Wohnung
Balkon:
1
Wohnfläche:
100 m²
Zimmer:
3
Badezimmer:
1
Toilette:
1
Baujahr:
1992
Zustand:
Modernisiert
Verfügbarkeit:
Verfügbar

Beschreibung

_AB JUNI 2026: Traumhafte 3-Zimmerwohnung mit überdachtem Westbalkon in Mils zu mieten! _

_Haustiere herzlich willkommen!_

Es bietet sich aktuell die einmalige Gelegenheit in bester Sonnenlage von Mils bei Hall in Tirol eine helle, ca. 100 m² große Maisonette-Wohnung inkl. 1 Autoabstellplatzfläche im Freien zu mieten. Die Wohnung mit herrlicher Aussicht ins Grüne befindet sich in einem Architektenhaus mit nur insgesamt 3 Wohneinheiten. 

Lagebeschreibung: _Mils liegt im Inntal, am Fuße des Karwendelgebirges, nur 15-20 Autominuten östlich der Landeshauptstadt Innsbruck bei Hall in Tirol. Mils ist durch seine sonnige Lage enorm als Siedlungs- und Wohngebiet beliebt und für die BewohnerInnen_ _ein wahrer Erholungsort: Wander- und Spazierwege sowie variantenreiche Radstrecken im Sommer und im Winter eine präparierte Loipe sowie eine Nachtrodelbahn im _nahegelegenen Gnadenwald _erwarten alle Sportbegeisterten._

_In direkter Umgebung der Liegenschaft befindet sich eine Einkaufsmöglichkeit beim Bauern (4 Fußminuten), eine Bildungseinrichtung (11 Fußminuten), ein Kindergarten (11 Fußminuten), eine ärztliche Nahversorgung ( 7 Fußminuten) sowie öffentliche Verkehrsmittel (7 Fußminuten).  _

 

Wichtigste Informationen im Überblick:

- Baujahr 1992

- südlich- / westliche Ausrichtung

- Architektenhaus mit insgesamt nur 3 Wohneinheiten

- 3 Zimmer + Essbereich + 2 Abstellräume 

- Wohnfläche: ca. 100 m²

- Böden: Echtholzparkett, Fliesen, Marmorboden

- Einbauküche mit Granit-Arbeitsplatte

- westlich ausgerichteter, überdachter Balkon: ca. 20 m²

- Badezimmer mit Fenster, Badewanne, Dusche, Doppelwaschbecken, Bidet, WC und Marmorfliesen 

- Zentrale Fußbodenheizung (Gas)

- Betriebskosten inkl. Heizung: ca. EUR 310,- / Monat in Miete inkludiert

- Energieausweis: HWB: 93,9 kWh/m²a

- 1 Autoabstellplatz 

- BEZIEHBAR AB JUNI 2026

- HAUSTIERE willkommen

GESAMTMIETE inkl. BK-Kosten: ca. EUR 1500,- / Monat

 

_ALLE ANFRAGEN NUR SCHRIFTLICH BITTE MIT ANGABE DES AKTUELLEN ARBEITGEBERS._

 

Nebenkosten:

3-Jahresmietvertrag mit der Option zur Verlängerung

Kaution 3 Bruttomonatsmieten

Mietvertragserrichtungskosten

 

Für weitere Informationen oder einen Besichtigungstermin steht Ihnen unser Team gerne zur Verfügung.

 

Kontaktdaten:

SAGENTUS Immobilien

eisenkoelbl@sagentus.at

www.sagentus.at [http://www.sagentus.at/]

 

Dieses Angebot bieten wir Ihnen im Auftrag der Eigentümerseite unverbindlich und freibleibend an. Allfällige Änderungen, Irrtümer, Satz- und Druckfehler vorbehalten. Alle Angaben sind sorgfältig recherchiert und beruhen auf Angaben und Informationen Dritter. Hierfür wird keine Haftung übernommen. Wir weisen im Zusammenhang mit dem gegenständlichen Angebot auf ein bestehendes wirtschaftliches Naheverhältnis zwischen Abgeber und Vermittlungsunternehmen hin. _Das Vermittlungsunternehmen ist auch mit der Vermittlung von anderen Objekten des Abgebers beauftragt worden._

Wir weisen darauf hin, dass zwischen dem Vermittler und dem zu vermittelnden Dritten ein familiäres oder wirtschaftliches Naheverhältnis besteht.

Der Immobilienmakler erklärt, dass er – entgegen dem in der Immobilienwirtschaft üblichen Geschäftsgebrauch des Doppelmaklers – einseitig nur für den Vermieter tätig ist.

Infrastruktur / Entfernungen

Gesundheit
Arzt <500m
Apotheke <1.000m
Klinik <2.500m
Krankenhaus <2.000m

Kinder & Schulen
Schule <500m
Kindergarten <500m
Höhere Schule <8.000m
Universität <2.000m

Nahversorgung
Supermarkt <1.500m
Bäckerei <1.500m
Einkaufszentrum <6.500m

Sonstige
Bank <1.000m
Geldautomat <1.000m
Post <500m
Polizei <2.500m

Verkehr
Bus <500m
Straßenbahn <6.000m
Autobahnanschluss <2.000m
Bahnhof <2.500m

Angaben Entfernung Luftlinie / Quelle: OpenStreetMap
Beschreibung weiterlesen

Lage und Verkehrsanbindung

Mils bei Hall in Tirol

Energieeffizienz

HWB:
93,9 kWh/(m²*a)
Energieausweisart:
Energiebedarfs-ausweis

Grundrisse

Lageplan

6068 Mils | Innsbruck-Land

Lade...
Stephanie Eisenkölbl

Stephanie Eisenkölbl
Geschäftsführung

SAGENTUS Immobilien GmbH

Lade...

Fotomix

Bild 1 Überdachter West-Balkon mit ca. 17m² Fläche Ausblick Balkon Bild 4 Bild 5 Küche + Essbereich Küche mit Granitplatte Küche + Essbereich Essbereich Stiegenaufgang mit Abstellraum Heller Stiegenaufgang Heller Stiegenaufgang Zimmer 1 mit ca. 30m² plus 5,60m² niedriger als 1,5m Zimmer 1 mit Einbauschrank Zimmer 1 mit ca. 30m² Zimmer 1 mit Regal Zimmer 1 mit ca. 30m² Zimmer 2 mit ca. 8m² plus ca. 3,8m² niedriger als 1,5m Zimmer 2 mit ca. 8m² plus ca. 3,8m² niedriger als 1,5m Badezimmer mit Badewanne, Fenster, Dusche, Bédé und WC Dusche Badewanne Badezimmer mit ca. 16m² Badezimmer mit Stauraum Eingangsbereich mit Einbauschränken Separater Zugang zur Wohnung Außenansicht Außenansicht mit 1 Autoabstellplatz Außenansicht