NEU - Architektonisches Meisterwerk im Grünen – Wohnen mit Stil und Weitblick in Hinterbrühl

Haus zum Kauf in 2371 Hinterbrühl / Objektnummer: 1939/163071
Ausstattung: Boden Bad Gäste-WC Parkplatz Außenparkplatz Fußbodenheizung Terrasse
Außen 1
Ausblick 1
Innen
Außen 3
Außen 2
Top 4_EG
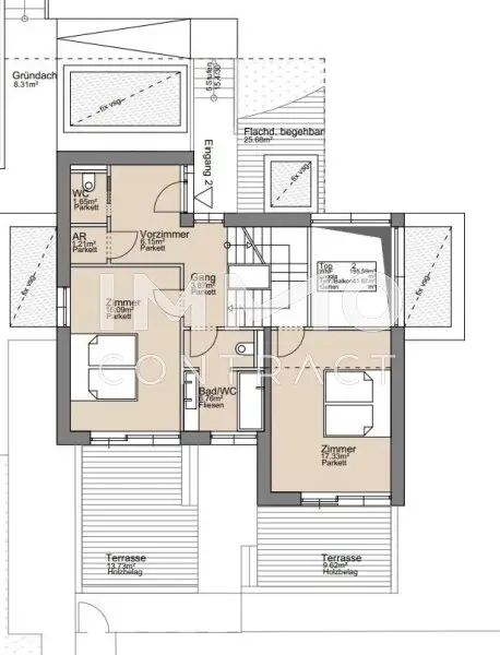
Top 4_OG1
Top 4_OG2
Grundstück 1
Ausblick 2
Straße 1
Straße 2

Preisinformationen

Vermittlungsprovision:
Ja

Fakten

Objektnummer:
1939/163071
Objekttyp:
Haus
Terrasse:
4
Wohnfläche:
195,59 m²
Grundstücksfläche:
440 m²
Zimmer:
4
Badezimmer:
3
Toilette:
2
Baujahr:
2025
Zustand:
Erstbezug
Verfügbarkeit:
Verfügbar

Beschreibung

Wo Design auf Natur trifft - Wohnen für höchste Ansprüche

In begehrter Ruhelage von Hinterbrühl, auf einem sonnigen Grundstück in Hanglage am Ende einer Privatstraße entstehen vier architektonisch anspruchsvolle Einfamilienhäuser in moderner Massivbauweise – jedes mit großzügigem Eigengarten, Südterrassen und privatem Wohngefühl auf höchstem Niveau.
Die Einheiten zeichnen sich durch eine zeitgemäße Architektur aus, bei der Funktionalität und Ästhetik ideal verschmelzen. Durch das "Split-Level-System" werden die Ebenen halbgeschossig zueinander versetzt. Die weitläufigen, lichtdurchfluteten Wohnbereiche schaffen ein einmaliges Raumgefühl – unterstützt durch große Fenster, durchgängige Sichtachsen und natürliches Licht von allen Seiten.
Die Ebenen des Hauses folgen einem harmonischen Wohnkonzept, das Rückzug und Offenheit perfekt vereint: Das Herzstück des Hauses – der lichtdurchflutete ca. 102 m2 große Wohn- und Essbereich mit offener Küche – öffnet sich direkt in den Garten und schafft fließende Übergänge zwischen Innen und Außen.
Der private Schlafbereich auf eigener Ebene bietet Ruhe und Geborgenheit. Im obersten Geschoss erwartet Sie ein exklusiver Masterbedroom mit en-suite Bad, 2 Terrassen und beeindruckender Weitsicht.

Die nach Süden ausgerichteten Terrassen bieten herrlichem Blick ins Tal und über den Wienerwald. Die großzügigen Fensterflächen auf der Südseite werden durch ein modernes Vordach sowie stilvolle Klappläden aus Holz vor direkter Sonneneinstrahlung geschützt.
Die pflegeleichten, sonnigen Gärten bieten viel Platz für Familie und Erholung.

Mit dem Einsatz einer modernen Sole-Erdwärmepumpe, energiesparender Fußbodenheizung und passiver Kühlung im Sommer setzt dieses Projekt neue Maßstäbe in puncto Energieeffizienz und Umweltbewusstsein. Die verwendeten Materialien sind langlebig, pflegeleicht und ästhetisch auf qualitativem Top-Niveau.

Top #4
Dieses Haus befindet sich in der oberen Hälfte des Grundstücks und zeichnet sich durch die besondere Ruhelage am Grundstücksrand und die sich daraus ergebende Süd-Ost-Ausrichtung aus und punktet ebenso mit der Nähe zu den Pkw-Abstellplätzen.

Gerne sende ich Ihnen auf Anfrage ausführliche Informationen zu den Häusern, der Ausstattung und exakten Lage.

Frau Simone VASICEK 0676 / 841 420 605

Infrastruktur / Entfernungen

Gesundheit
Arzt <500m
Klinik <3.500m
Apotheke <1.000m
Krankenhaus <1.000m

Kinder & Schulen
Schule <500m
Kindergarten <1.000m
Höhere Schule <4.000m
Universität <9.500m

Nahversorgung
Supermarkt <1.000m
Bäckerei <500m
Einkaufszentrum <4.000m

Sonstige
Bank <500m
Geldautomat <500m
Post <500m
Polizei <500m

Verkehr
Bus <500m
U-Bahn <7.000m
Bahnhof <4.000m
Straßenbahn <5.500m
Autobahnanschluss <2.000m

Angaben Entfernung Luftlinie / Quelle: OpenStreetMap
Beschreibung weiterlesen

Lage und Verkehrsanbindung

Ihr neues Zuhause liegt in einem besonders begehrten Wohnviertel von Hinterbrühl, das für seine Ruhe, Naturverbundenheit und gleichzeitig hervorragende Anbindung bekannt ist.

Energieeffizienz

HWB:
35,6 kWh/(m²*a)
HWB Klasse:
B
fGEE:
0,61
fGEE Klasse:
A+
Energieausweisart:
Energiebedarfs-ausweis

Lageplan

2371 Hinterbrühl | Mödling

Lade...
Simone Vasicek

Simone Vasicek
Regionalmanagerin NÖ Süd & Burgenland

IMMOcontract Immobilien Vermittlung GmbH

Lade...

Fotomix

Außen 1 Ausblick 1 Innen Außen 3 Außen 2 Top 4_EG Top 4_OG1 Top 4_OG2 Grundstück 1 Ausblick 2 Straße 1 Straße 2