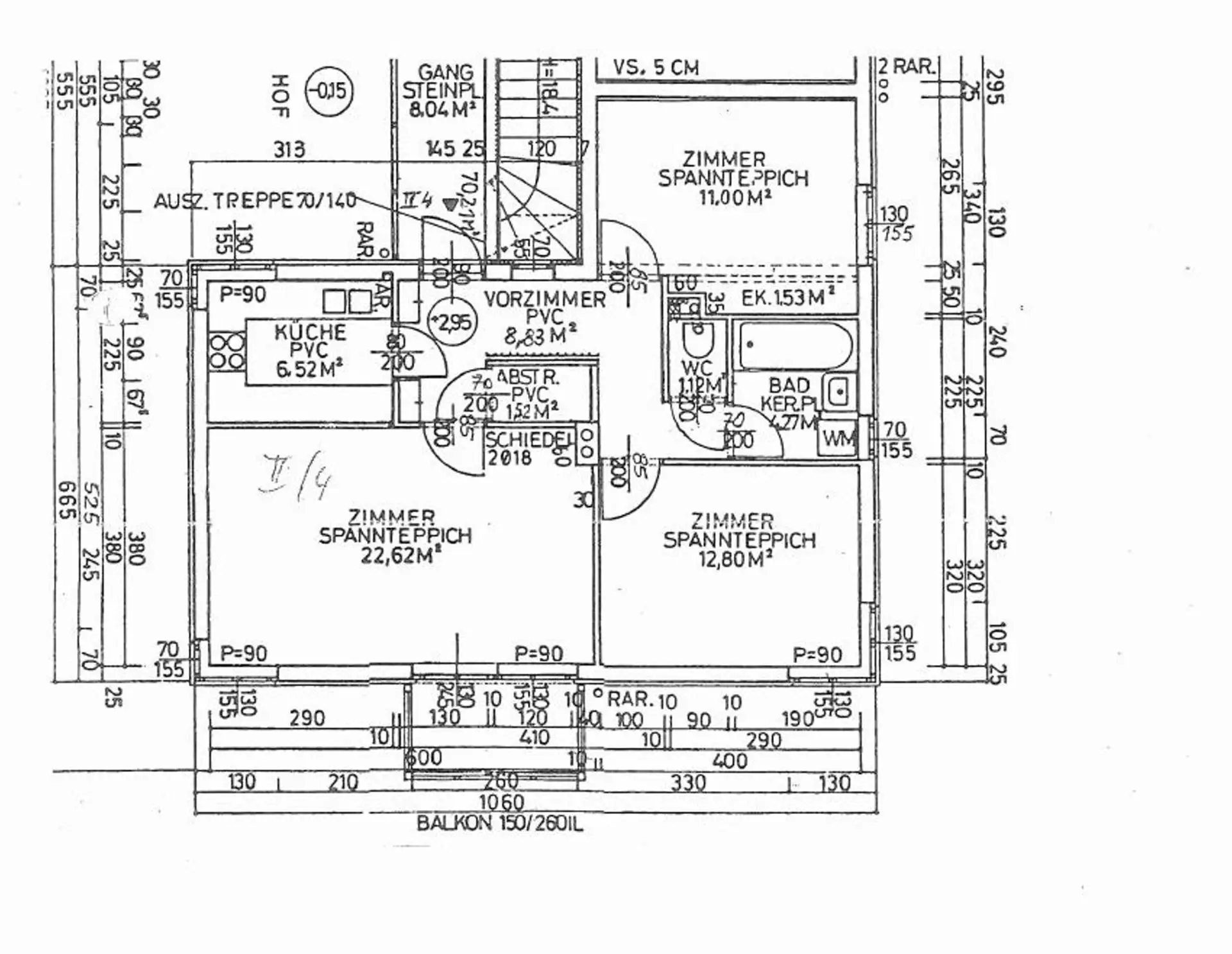
NEU - ARDAGGER I/1+2, geförderte Mietwohnung mit Kaufoption, Haus 2-OG TOP 4, 1000/00007440/00001204

Wohnung zur Miete in 3321 Ardagger - Gesamtmiete: 512,49 €
Ausstattung: Außenparkplatz Balkon

Preisinformationen

Gesamtmiete:
512,49 € / Monat
Vermittlungsprovision:
Ja

Fakten

Objekttyp:
Wohnung
Balkon:
1
Nutzfläche:
70 m²
Zimmer:
3
Neubau:
Ja
Verfügbarkeit:
Verfügbar

Beschreibung

Ardagger ist eine Marktgemeinde im Bezirk Amstetten, welche mit dem Auto in 7 Minuten von Amstetten aus zu erreichen ist und über 3000 Einwohner hat. Dieses Wohngebiet besteht aus vier Hofhäusern, wobei je zwei Häuser e…
Beschreibung weiterlesen

Alpenland, Gemeinnützige Bau-, Wohn- und Siedlungsgenossenschaft

Lade...

Fotomix

Bild 1 Bild 2 Bild 3 Bild 4