NEU - Atelier nähe Schottentor - sehr repräsentative Lage und Gebäude

Immobilie zur Miete in 1010 Wien / Objektnummer: 2517
Ausstattung: Boden Bad Etagenheizung

Preisinformationen

Gesamtmiete (exkl. USt.):
1.708,26 € / Monat
Betriebskosten netto:
208,26 € / Monat
Umsatzsteuer:
341,65 €
Kaution:
6.200,00 €
Vermittlungsprovision:
Ja
Provision:
6.149,74 € inkl. 20% USt.

Fakten

Objektnummer:
2517
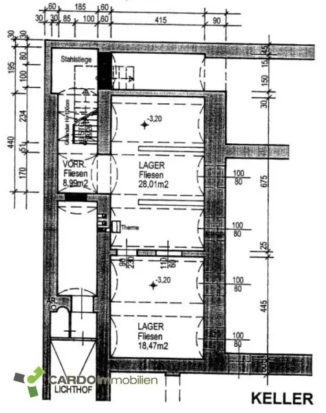
Keller Fläche:
56 m²
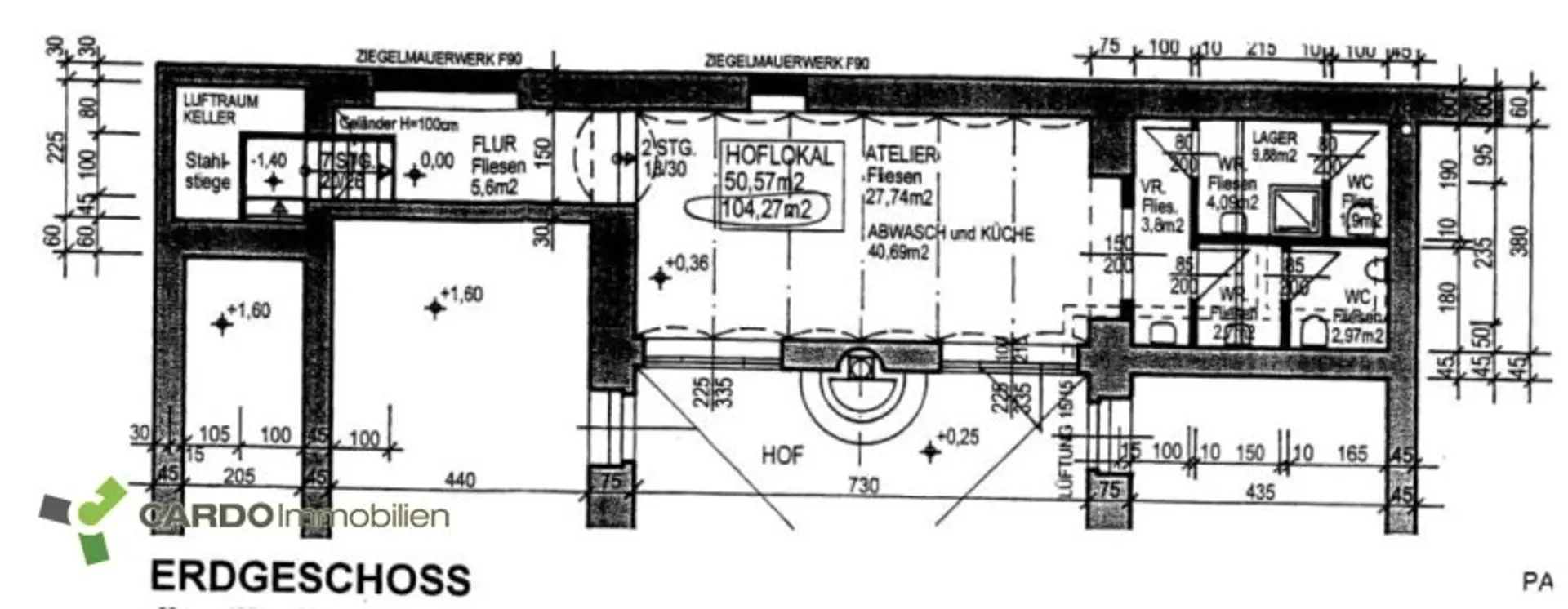
Nutzfläche:
104,27 m²
Zimmer:
3
Badezimmer:
1
Toilette:
2
Baujahr:
1890
Altbau:
Ja
Zustand:
Gepflegt
Verfügbarkeit:
Verfügbar

Beschreibung

Das Atelier befindet sich in einem repräsentativen Stilaltbau in zentraler Lage unweit des Rathauses. Die U2-Station Schottentor ist nur wenige Schritte entfernt.

Das Objekt erstreckt sich über Erdgeschoss und Kellergeschoss und ist direkt über den Innenhof zugänglich.

Raumaufteilung:
Das Atelier bzw. Lager ist auf zwei Ebenen angelegt. Der Zugang erfolgt über das Erdgeschoss, wo sich ein großzügiger Raum, eine Küche, ein Badezimmer mit Dusche und WC sowie ein Waschraum mit zusätzlichem WC und Pissoir befinden.

Über eine Treppe gelangt man in das Kellergeschoss, in dem sich zwei Lagerräume befinden.

Die Raumhöhe dort beträgt über  5 Meter.

Die Räumlichkeiten präsentieren sich in sehr gepflegtem Zustand und werden über eine Gasetagenheizung beheizt.

Das Atelier kann ab sofort auf unbefristete Zeit angemietet werden. 

Infrastruktur / Entfernungen

Gesundheit
Arzt <500m
Apotheke <500m
Klinik <500m
Krankenhaus <1.500m

Kinder & Schulen
Schule <500m
Kindergarten <1.000m
Universität <500m
Höhere Schule <500m

Nahversorgung
Supermarkt <500m
Bäckerei <500m
Einkaufszentrum <1.500m

Sonstige
Geldautomat <500m
Bank <500m
Post <500m
Polizei <500m

Verkehr
Bus <500m
U-Bahn <500m
Straßenbahn <500m
Bahnhof <500m
Autobahnanschluss <3.000m

Angaben Entfernung Luftlinie / Quelle: OpenStreetMap
Beschreibung weiterlesen

Lage und Verkehrsanbindung

Schottentor / Rathaus

Energieeffizienz

HWB:
167 kWh/(m²*a)
HWB Klasse:
C
fGEE:
2,82
fGEE Klasse:
C
Energieausweisart:
Energiebedarfs-ausweis

Grundrisse

Lageplan

1010 Wien | Wien 1., Innere Stadt

Lade...
Gernot Schmelz

Gernot Schmelz

Cardo Immobilienvermittlung GmbH

Lade...

Fotomix

Bild 1 Bild 2 Bild 3 Bild 4 Bild 5 Bild 6 Bild 7 Bild 8 Bild 9 Bild 10 Bild 11 Bild 12 Bild 13 Bild 14