NEU - Atriumreihenhaus mit Wow-Effekt – ein Zuhause zum Ankommen & Wohlfühlen

Wohnung zum Kauf in 1230 Wien - Kaufpreis: 698.000 € / Objektnummer: 1575/1053
Ausstattung: Boden Bad Fernwärme Terrasse
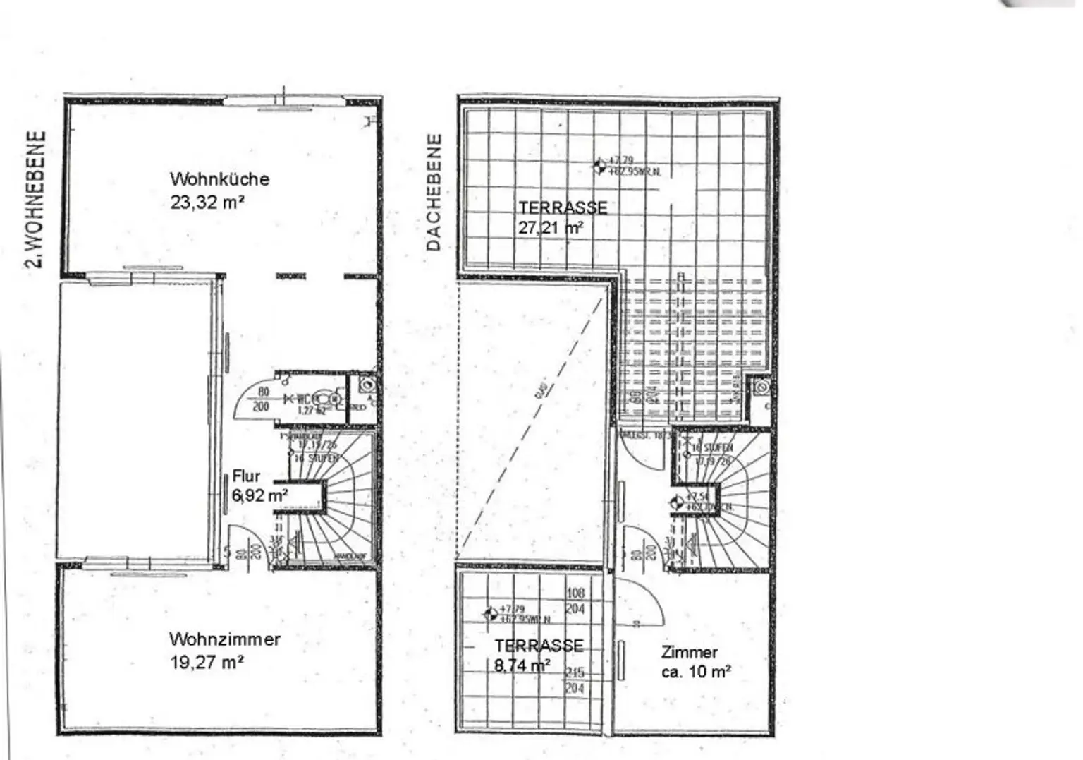
Wohnküche mit ca. 23,32 m²
Dachterrasse mit ca. 27,21 m2
Anlage
zweite Dachterrasse mit ca. 8,74 m²
Wohnküche mit ca. 23,32 m²
Atrium
Flur und Atrium im 2.OG
Wohnzimmer mit ca. 19,27 m²
Schlafzimmer 1.OG mit ca. 19,27 m²
Schlafzimmer 1.OG mit ca. 19,63 m²
Flur und Atrium im 1.OG
Badezimmer mit Wanne und Toilette
Eingangsbereich und Vorplatz
Vorraum mit ca. 8,29 m²
Anlage mit Markierung
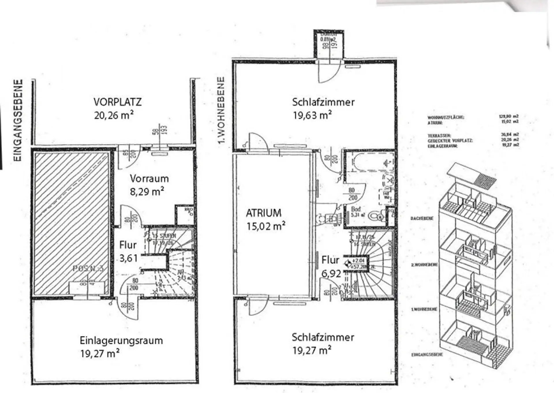
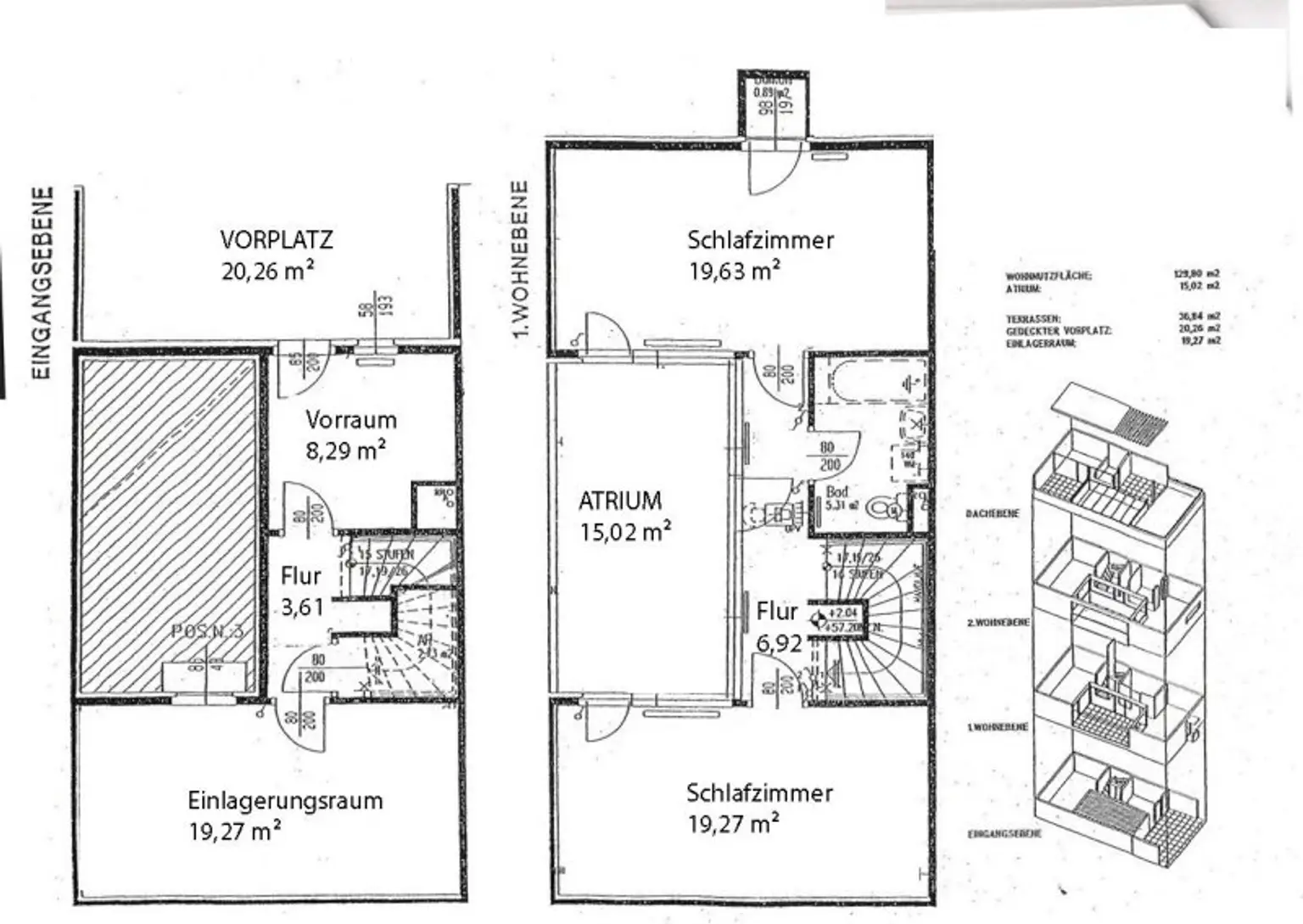
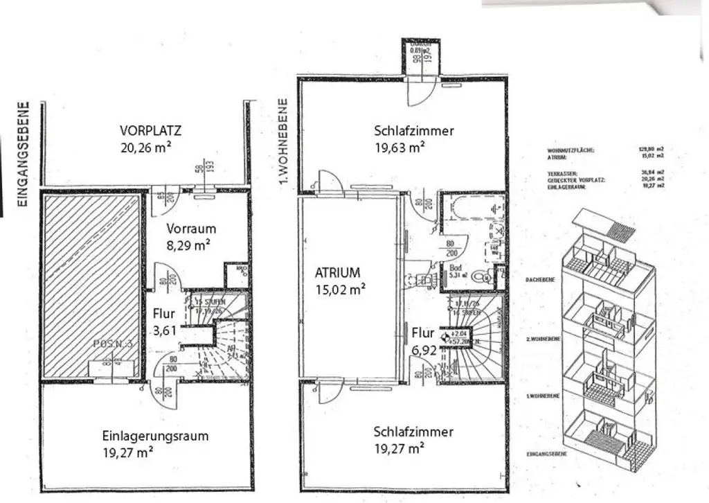
EG und 1.OG
2.OG und Dachebene

Preisinformationen

Kaufpreis:
698.000 €
Betriebskosten netto:
153,25 € / Monat
Garage Kosten brutto:
6,30 €
Vermittlungsprovision:
Ja
Provision:
3% des Kaufpreises zzgl. 20% USt.

Fakten

Objektnummer:
1575/1053
Objekttyp:
Wohnung
Terrasse:
2
Wohnfläche:
129,8 m²
Zimmer:
5
Badezimmer:
1
Toilette:
2
Baujahr:
1999
Neubau:
Ja
Zustand:
Gepflegt
Verfügbarkeit:
Verfügbar

Beschreibung

Ein Zuhause für Menschen, die das Besondere suchen !

Zum Verkauf steht dieses außergewöhnliche Atriumreihenhaus mit rund 130 m² Wohnfläche und zwei Terrassen. Das Reihenhaus ist Teil einer exklusiven Wohnanlage mit 42 Einheiten, die 1999 vom renommierten Architekten Walter Stelzhammer konzipiert und von BUWOG errichtet wurde und sich in einer ruhigen Privatstraße befindet.

Das durchdachte Architekturkonzept richtet sich ideal an Familien oder Paare mit einem hohen Anspruch an Design, Licht und großzügige Außenflächen.

Das absolute Highlight dieser Immobilie ist das verglaste Atrium im Zentrum des Hauses. Es sorgt für eine beeindruckende Lichtstimmung und eröffnet vielfältige Nutzungsmöglichkeiten – ob als grüner Garten, stilvolle Terrasse oder private Ruheoase. Das Atrium ist überdacht, teilweise zu öffnen und zusätzlich mit einer Markise für den Sommer ausgestattet.

Das Haus wurde von den Eigentümern laufend instand gehalten und modernisiert und präsentiert sich in einem sehr gepflegten Zustand. In puncto Ausstattung bleiben hier keine Wünsche offen:

* Hochwertiger Eichenparkettboden
* Maßgefertigte Einbauschränke in Nischen auf jeder Etage bieten praktischen Stauraum
* 2021 Einbau einer hochwertigen DAN-Küche mit Markengeräten von Bauknecht
* Terrassenmodernisierung 2018: Verlegung von Holz-Terrassendielen, neue Pflanzentröge und eine Markise auf der kleinen Terrasse für optimalen Sonnenschutz
* Zusätzliche Beschattungsmöglichkeit über das Atriumdach
* Außenfenster mit Rollläden, Innenfenster mit Jalousien
* Alle Fenster mit Insektenschutzgittern ausgestattet
* Sicherheitstür (Widerstandsklasse RC2)
* Vorbereitung für eine E-Ladestation am Vorplatz vorhanden

Raumaufteilung auf einen Blick

Erdgeschoss

* Überdachter Vorplatz mit Parkmöglichkeit direkt vor der Wohnungstür
* Großzügiger Vorraum
* Zusätzlicher Abstellraum mit ca. 2 m²
* Ca. 19 m² Einlagerungs- bzw. Kellerraum mit viel Platz für Stauraum, Hobby oder Vorräte

1. Wohnebene

* Zwei großzügige Schlafzimmer mit jeweils ca. 19 m²
* Badezimmer in unmittelbarer Nähe zu den Schlafräumen

2. Wohnebene

* Helle Wohnküche mit viel Platz 
* Separates Wohnzimmer
* Gäste-Toilette

Dachebene

* Drittes Schlafzimmer mit flexibler Nutzung, ideal auch als Galerie oder Homeoffice
* Zwei Terrassen 

Umgebung & Anbindung

Die Immobilie besticht durch ihre attraktive und familienfreundliche Lage. Zahlreiche Einkaufsmöglichkeiten für den täglichen Bedarf – darunter BILLA Plus, Hofer, DM, Eurospar, Bipa, Libro, Apotheken und Bäckereien – sind entlang der Breitenfurter Straße und Gatterederstraße bequem fußläufig erreichbar.

Eine sehr gute öffentliche Anbindung ist durch mehrere Buslinien (u. a. 60A, 62A, 64A, 66A, 58A) gegeben. Die U6-Station Alt Erlaa ist in rund 8 Minuten erreichbar, die U4-Station Hietzing in etwa 15 Minuten. Zusätzlich bietet die nahegelegene S-Bahn-Station Atzgersdorf-Mauer eine schnelle Verbindung zum Hauptbahnhof (ca. 12 Minuten). Damit ist eine rasche Anbindung an die Innenstadt und umliegende Bezirke gewährleistet.

Die Umgebung bietet ein vielfältiges Bildungsangebot mit mehreren Volks- und Mittelschulen, dem Gymnasium Anton-Krieger-Gasse sowie dem Bildungscampus Atzgersdorf mit Ganztagsschule und Kindergarten. Weitere Kindergärten befinden sich in der Steinerstraße, Canavesegasse und am Kirchenplatz.

Auch das Freizeitangebot ist hervorragend: Der Stadtpark Atzgersdorf und der Liesingbachweg sind in rund 10 Gehminuten erreichbar. Der Liesingbachweg lädt zu Spaziergängen und Radtouren Richtung Rodaun, Liesing oder Oberlaa ein und ist bestens an das Wiener Radwegenetz angebunden.

Nur etwa 10 Minuten entfernt befindet sich zudem die 2024 eröffnete Fabrik 1230 – ein modernes Grätzlzentrum mit Ärzten, Fitnesscenter, Kletterwand und Veranstaltungshalle, das zahlreiche Freizeit- und Kulturmöglichkeiten bietet.

Ein besonderes Freizeitplus bietet das nahegelegene Höpflerbad, das in den Sommermonaten für Erholung und Abkühlung sorgt.

Lassen Sie sich bei einer persönlichen Besichtigung von diesem einzigartigen Zuhause begeistern. Wir freuen uns auf Ihre Anfrage!

 

Wir weisen darauf hin, dass zwischen dem Vermittler und dem zu vermittelnden Dritten ein familiäres oder wirtschaftliches Naheverhältnis besteht.

Der Vermittler ist als Doppelmakler tätig.

Infrastruktur / Entfernungen

Gesundheit
Arzt <1.000m
Apotheke <500m
Klinik <500m
Krankenhaus <2.000m

Kinder & Schulen
Schule <500m
Kindergarten <500m
Universität <5.000m
Höhere Schule <4.500m

Nahversorgung
Supermarkt <500m
Bäckerei <500m
Einkaufszentrum <2.000m

Sonstige
Geldautomat <500m
Bank <500m
Post <2.000m
Polizei <1.500m

Verkehr
Bus <500m
U-Bahn <2.000m
Straßenbahn <2.000m
Bahnhof <1.000m
Autobahnanschluss <2.500m

Angaben Entfernung Luftlinie / Quelle: OpenStreetMap
Beschreibung weiterlesen

Lage und Verkehrsanbindung

Atzgersdorf

Energieeffizienz

HWB:
70,8 kWh/(m²*a)
HWB Klasse:
C
fGEE:
1,22
fGEE Klasse:
C
Energieausweisart:
Energiebedarfs-ausweis
Gültig bis:
17.03.2031

Grundrisse

Lageplan

1230 Wien | Wien 23., Liesing

Lade...
Pia Schelling

Pia Schelling
Geschäftsführerin

Pia Estate GmbH

Lade...

Fotomix

Wohnküche mit ca. 23,32 m² Dachterrasse mit ca. 27,21 m2 Anlage zweite Dachterrasse mit ca. 8,74 m² Wohnküche mit ca. 23,32 m² Atrium Flur und Atrium im 2.OG Wohnzimmer mit ca. 19,27 m² Schlafzimmer 1.OG mit ca. 19,27 m² Schlafzimmer 1.OG mit ca. 19,63 m² Flur und Atrium im 1.OG Badezimmer mit Wanne und Toilette Eingangsbereich und Vorplatz Vorraum mit ca. 8,29 m² Anlage mit Markierung