NEU - Attraktive 2 Zimmerwohnung mit Balkon in Floridsdorfer Ruhelage

Wohnung zur Miete in 1210 Wien - Gesamtmiete: 949,96 € / Objektnummer: 95893
Ausstattung: Boden Fahrstuhl Wohnküche / offene Küche Bad Fahrradraum Fernwärme Fußbodenheizung Terrasse

Preisinformationen

Gesamtmiete:
949,96 € / Monat
Betriebskosten netto:
131,80 € / Monat
Umsatzsteuer:
86,36 €
Kaution:
2.849,88 €
Provision:
Gemäß Erstauftraggeberprinzip bezahlt der Abgeber die Provision.

Fakten

Objektnummer:
95893
Objekttyp:
Wohnung
Terrasse:
1
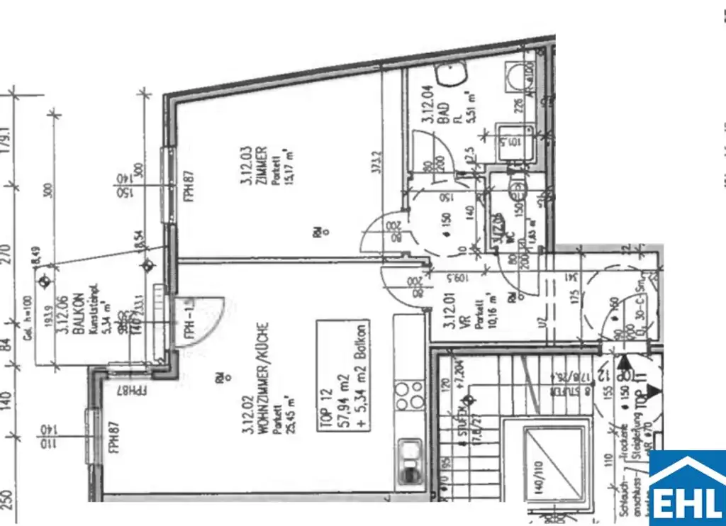
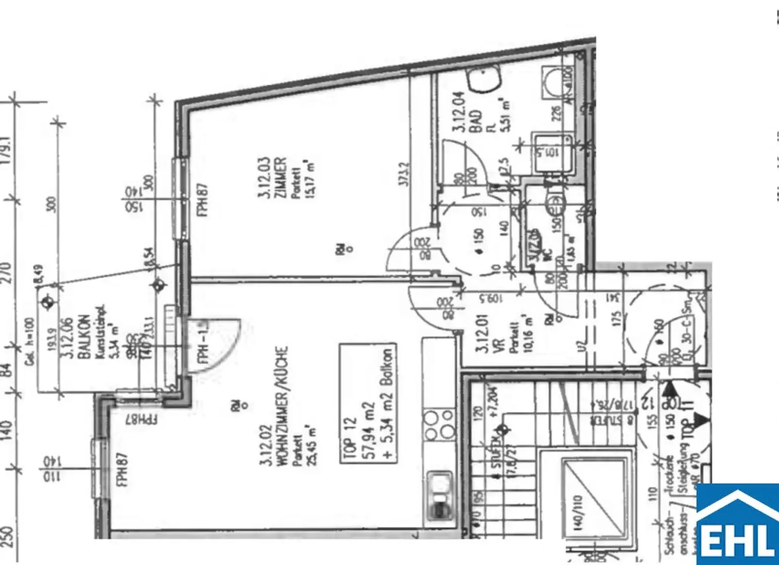
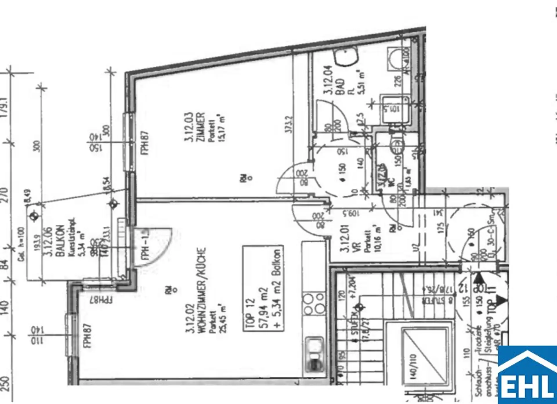
Wohnfläche:
57,94 m²
Zimmer:
2
Badezimmer:
1
Toilette:
1
Stockwerk:
3
Neubau:
Ja
Zustand:
Gepflegt
Verfügbarkeit:
Verfügbar

Beschreibung

Attraktive 2 Zimmerwohnung in Floridsdorfer Ruhelage

Im auflebenden 21. Wiener Gemeindebezirk befindet sich diese 2 Zimmerwohnung. Nicht nur die unmittelbare Nähe zur Natur im Allgemeinen, sondern insbesondere die nahegelegene Donau und sehr viele begrünte Flächen machen den Wiener Bezirk Floridsdorf zu einem Wohnerlebnis sondergleichen. Nicht umsonst wird diese Umgebung liebevoll "Trendbezirk des 21. Jahrhunderts" genannt.Trotz der schönen Grünruhelage ist die Innenstadt sehr schnell erreichbar. Diese Tatsache ergibt sich aus der optimalen Infrastruktur und der guten öffentlichen Anbindung.

Diese gut aufgeteilte 2- Zimmerwohnung gliedert sich in eine großzügige Wohnküche mit direkten Zugang auf den 5,34m² großen Balkon, ein getrennt begehbares Schlafzimmer, ein Bad mit Dusche und Waschmaschinenanschluss, sowie eine getrennte Toilette und einen kleinen Vorraum. 

Bei den Fotos handelt es sich um Musterfotos! 

Ausstattung: 

* Holzparkett in den Wohnräumen
* Fliesen in den Nassräumen 
* separates WC 
* vollausgestattete Wohnküche 
* Balkon 

das Haus bietet: 

* Lift
* Kellerabteil
* Fahrrad- und Kinderwagenabstellraum
* Gemeinschaftsgarten 

Das Objekt ist nicht barrierefrei.

Öffentliche Verkehrsmittel:

* Buslinie 28A (bringt Sie zur U6 Floridsdorf)
* Buslinie 29A (bringt Sie zur U1 Leopoldau oder Großfeldsiedlung)
* Straßenbahnlinie 25, 26

Kosten für Heizung und Warmwasser werden nach Verbrauch abgerechnet.

Befristung: 5 Jahre, 1 Jahr Kündigungsverzicht, 3 Monate Kündigungsfrist

Nebenkosten:
3 BMM Kaution,Vertragserrichtungsgebühr.

Wir weisen darauf hin, dass zwischen dem Vermittler und dem zu vermittelnden Dritten ein familiäres oder wirtschaftliches Naheverhältnis besteht.

Der Immobilienmakler erklärt, dass er – entgegen dem in der Immobilienwirtschaft üblichen Geschäftsgebrauch des Doppelmaklers – einseitig nur für den Vermieter tätig ist.

Infrastruktur / Entfernungen

Gesundheit
Arzt <500m
Apotheke <500m
Klinik <1.250m
Krankenhaus <1.250m

Kinder & Schulen
Schule <250m
Kindergarten <250m
Universität <750m
Höhere Schule <1.250m

Nahversorgung
Supermarkt <250m
Bäckerei <500m
Einkaufszentrum <750m

Sonstige
Geldautomat <500m
Bank <500m
Post <250m
Polizei <1.000m

Verkehr
Bus <250m
U-Bahn <750m
Straßenbahn <500m
Bahnhof <750m
Autobahnanschluss <1.500m

Angaben Entfernung Luftlinie / Quelle: OpenStreetMap
Beschreibung weiterlesen

Lage und Verkehrsanbindung

Bahnhof Floridsdorf

Energieeffizienz

HWB:
24,9 kWh/(m²*a)
HWB Klasse:
A
fGEE:
0,7
Energieausweisart:
Energiebedarfs-ausweis
Gültig bis:
17.05.2027

Grundriss

Lageplan

1210 Wien | Wien 21., Floridsdorf

Lade...
Egon-Adrian Toth, B.A.

Egon-Adrian Toth, B.A.
Mietwohnungen

EHL Wohnen GmbH

Lade...

Fotomix

Bild 1 Bild 2 Bild 3 Bild 4 Bild 5 Bild 6 Bild 7