NEU - Attraktive 3-Zimmer-Wohnung mit Westbalkon und Garagenplatz

Wohnung zum Kauf in 1220 Wien - Kaufpreis: 460.000 € / Objektnummer: 7597/84
Ausstattung: Barrierefrei Rollstuhlgerecht Boden Fahrstuhl Bad Tiefgarage Parkplatz Fahrradraum Abstellraum Fernwärme Balkon

Preisinformationen

Kaufpreis:
460.000 €
Kaufpreis/m²
5.693,77 €
Betriebskosten netto:
153,00 € / Monat
Vermittlungsprovision:
Ja
Provision:
3% des Kaufpreises zzgl. 20% USt.

Fakten

Objektnummer:
7597/84
Objekttyp:
Wohnung
Balkon:
1
Balkonfläche:
5,89 m²
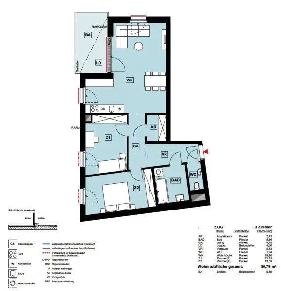
Wohnfläche:
80,79 m²
Zimmer:
3
Badezimmer:
1
Toilette:
1
Stockwerk:
2
Baujahr:
2019
Neubau:
Ja
Zustand:
Neuwertig
Verfügbarkeit:
Verfügbar

Beschreibung

Attraktive 3-Zimmer-Wohnung mit Westbalkon und Garagenplatz

 

Die gepflegte Wohnung befindet sich im 2. Liftstock eines modernen Wohnhauses und überzeugt durch eine durchdachte Raumaufteilung sowie helle, westseitig ausgerichtete Wohnräume.

 

Beim Betreten gelangt man in einen großzügigen Vorraum mit ausgezeichneten Stauraummöglichkeiten. Linker Hand befinden sich das Badezimmer mit Badewanne, Waschbecken und Waschmaschinenanschluss sowie ein separates WC.

Die beiden Schlafzimmer verfügen über große Fensterflächen mit Westausrichtung.

 

Herzstück der Wohnung ist das großzügige Wohnzimmer mit moderner, voll ausgestatteten, modernen Küche, sowie Fenster. Ebenfalls ist genügend Platz für ein großes Sofa, TV-Möbel sowie ein Esstisch Platz. Vom Wohnbereich aus gelangt man auf den westseitigen Balkon bzw. die Loggia – ideal für entspannte Abendstunden.

 

Ein praktischer Abstellraum sowie ein trockenes Kellerabteil ergänzen das Raumangebot.

Ein Garagenstellplatz im Haus ist bereits im Kaufpreis inkludiert.

 

Bei weiterem Interesse bitte um Kontaktaufnahme mit Frau Emilia Steup unter emilia@steup.at oder +43 699 11061190.

Wir freuen uns auf Ihre Anfrage.

Der Vermittler ist als Doppelmakler tätig.

Infrastruktur / Entfernungen

Gesundheit
Arzt <500m
Apotheke <500m
Klinik <1.500m
Krankenhaus <2.500m

Kinder & Schulen
Schule <500m
Kindergarten <500m
Universität <3.000m
Höhere Schule <3.000m

Nahversorgung
Supermarkt <500m
Bäckerei <500m
Einkaufszentrum <1.500m

Sonstige
Bank <500m
Geldautomat <500m
Post <1.000m
Polizei <500m

Verkehr
Bus <500m
U-Bahn <1.000m
Straßenbahn <500m
Bahnhof <1.000m
Autobahnanschluss <1.500m

Angaben Entfernung Luftlinie / Quelle: OpenStreetMap
Beschreibung weiterlesen

Lage und Verkehrsanbindung

Die Liegenschaft befindet sich in ruhiger Wohnlage im 22. Bezirk, Donaustadt, einem der grünsten Bezirke von Wien. Die Umgebung ist geprägt von moderner Wohnbebauung, viel Freiraum und ausgezeichneter Infrastruktur.
Verkehrsanbindung:
Mehrere Buslinien befinden sich in unmittelbarer Nähe. Die U2-Stationen Hausfeldstraße und Aspern sind rasch erreichbar und gewährleisten eine direkte Verbindung in die Wiener Innenstadt. Auch mit dem Auto besteht eine gute Anbindung an das übergeordnete Straßennetz.
Das Westfield Donau Zentrum, die Alte Donau sowie die Seestadt Aspern befinden sich in kurzer Distanz und bieten zahlreiche Freizeit- und Erholungsmöglichkeiten.
Eine ideale Kombination aus ruhigem Wohnen und urbaner Nähe.

Energieeffizienz

HWB:
40,74 kWh/(m²*a)
HWB Klasse:
B
fGEE:
0,74
fGEE Klasse:
B
Energieausweisart:
Energiebedarfs-ausweis
Gültig bis:
12.08.2029

Grundrisse

Lageplan

1220 Wien | Wien 22., Donaustadt

Lade...
Emilia Steup

Emilia Steup
Immobilienkauffrau

Steup Luxury - eine Marke von Steup Realitäten

Lade...

Fotomix

Bild 1 Bild 2 Bild 3 Bild 4 Bild 5 Bild 6 Bild 7 Bild 8 Bild 9 Bild 10 Bild 11 Bild 12 Bild 13 Bild 14 Bild 15 Bild 16 Bild 17 Bild 18