NEU - Attraktive Räumlichkeiten für Praxis, Ordination oder Büro

Immobilie zur Miete in 1100 Wien / Objektnummer: 6208/2912
Ausstattung: Barrierefrei Boden Fahrstuhl Bad Klimaanlage Abstellraum Etagenheizung

Preisinformationen

Gesamtmiete (exkl. USt.):
3.134,10 € / Monat
Betriebskosten netto:
256,15 € / Monat
Umsatzsteuer:
626,82 €
Kaution:
6 Bruttomonatsmieten
Vermittlungsprovision:
Ja
Provision:
3 Bruttomonatsmieten zzgl. 20% USt.

Fakten

Objektnummer:
6208/2912
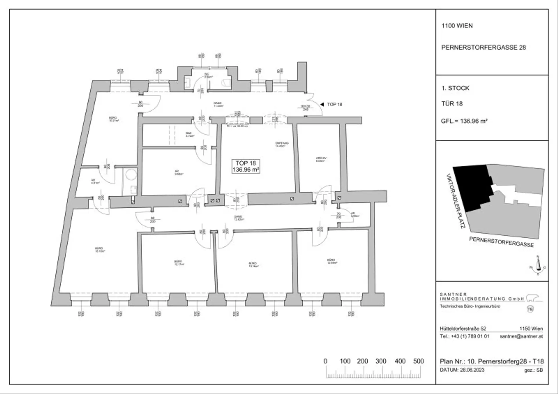
Nutzfläche:
136,98 m²
Bürofläche:
136,98 m²
Zimmer:
6
Stockwerk:
1
Baujahr:
1900
Altbau:
Ja
Letzte Sanierung:
2025
Zustand:
Gepflegt
Verfügbarkeit:
Verfügbar

Beschreibung

Top Lage!

Großzügige Praxisräume/Büro in der Fußgängerzone Favoritenstraße

Direkt beim belebten Viktor Adler Markt gelegen, nahe den Ubahnstationen Reumannplatz und Keplerplatz befindet sich in einem gepflegten Haus im 1. Liftstock ein Mietobjekt, das für diverse Funktionen genutzt werden kann.

Das Objekt verfügt über fast 137m² Fläche, zahlreiche einzelne Räume, einen Abstellraum, sowie WC und Waschraum.

Im Eingangsbereich kann eine Rezeption eingerichtet werden.

Weiters wären Kellerräumlichkeiten verfügbar, falls gewünscht.

Da die Räumlichkeiten getrennt begehbar sind, könnte auch eine Praxis für Physiotherapie, Arztpraxis und ähnliches eingerichtet werden.

Mit einer monatlichen Miete von 3.760,92 € ( das entspricht ca. € 20.-/m²) bietet Ihnen diese Immobilie ein ausgezeichnetes Preis-Leistungs-Verhältnis für die zentrale Lage und die hochwertige Ausstattung. 

Bitte lassen Sie uns wissen, für welches Geschäftsmodel Sie Räumlichkeiten suchen und fordern Sie die Unterlagen an.

Es werden nur Anfragen per Email bearbeitet !

Befristete (10 Jahre/0ption auf Verlängerung) Miete: € 3.760,92.- inkl.BK und 20% Mwst

....das entspricht ca. € 20.-/m² netto

Details und Besichtigungen: Weinblatt-Oppel-Immobilien
Für weitere Informationen und Besichtigungen stehen wir Ihnen jederzeit unter 0664/531 60 42 zur Verfügung.

BITTE BEACHTEN SIE, DASS WIR AUFGRUND DER NACHWEISPFLICHT GEGENÜBER DEM EIGENTÜMER NUR ANFRAGEN MIT VOLLSTÄNDIGER ANGABE DES NAMEN UND DER ANSCHRIFT BEARBEITEN KÖNNEN.
 

Infrastruktur / Entfernungen

Gesundheit
Arzt <500m
Apotheke <500m
Klinik <500m
Krankenhaus <2.000m

Kinder & Schulen
Schule <500m
Kindergarten <500m
Universität <1.000m
Höhere Schule <2.500m

Nahversorgung
Supermarkt <500m
Bäckerei <500m
Einkaufszentrum <1.000m

Sonstige
Geldautomat <500m
Bank <500m
Post <500m
Polizei <500m

Verkehr
Bus <500m
U-Bahn <500m
Straßenbahn <500m
Bahnhof <500m
Autobahnanschluss <1.500m

Angaben Entfernung Luftlinie / Quelle: OpenStreetMap
Beschreibung weiterlesen

Lage und Verkehrsanbindung

Favoritenstraße, Viktor Adler Platz, Reumannplatz
Die Lage dieser Immobilie ist nicht nur verkehrstechnisch ideal, sondern auch infrastrukturell hervorragend. In unmittelbarer Nähe finden Sie alles, was Sie für den täglichen Bedarf benötigen: Ärzte, Apotheken, Schulen und Kindergärten und Einkaufsmöglichkeiten wie Supermärkte, Bäckereien und ein Einkaufszentrum sind ebenfalls schnell erreichbar, was für zusätzlichen Komfort sorgt.

Viktor-Adler-Markt, Favoritenstraße

Energieeffizienz

HWB:
147 kWh/(m²*a)
HWB Klasse:
E
Energieausweisart:
Energiebedarfs-ausweis

Grundriss

Lageplan

1100 Wien | Wien 10., Favoriten

Lade...
Sonja Weinblatt-Oppel

Sonja Weinblatt-Oppel

Weinblatt-Oppel Immobilien

Lade...

Fotomix

Bild 1 Bild 2 Bild 3 Bild 4 Bild 5 Bild 6 Bild 7 Bild 8 Bild 9 Bild 10 Bild 11 Bild 12 Bild 13 Bild 14 Bild 15 Bild 16 Bild 17 Bild 18