NEU - Attraktives Baugrundstück nahe Wien – 1.191 m² in Purkersdorf

Grundstück zum Kauf in 3002 Purkersdorf - Kaufpreis: 450.000 € / Objektnummer: 8110/332
Bild

Preisinformationen

Kaufpreis:
450.000 €

Fakten

Objektnummer:
8110/332
Objekttyp:
Grundstück
Grundstücksfläche:
1.191 m²
Verfügbarkeit:
Verfügbar

Beschreibung

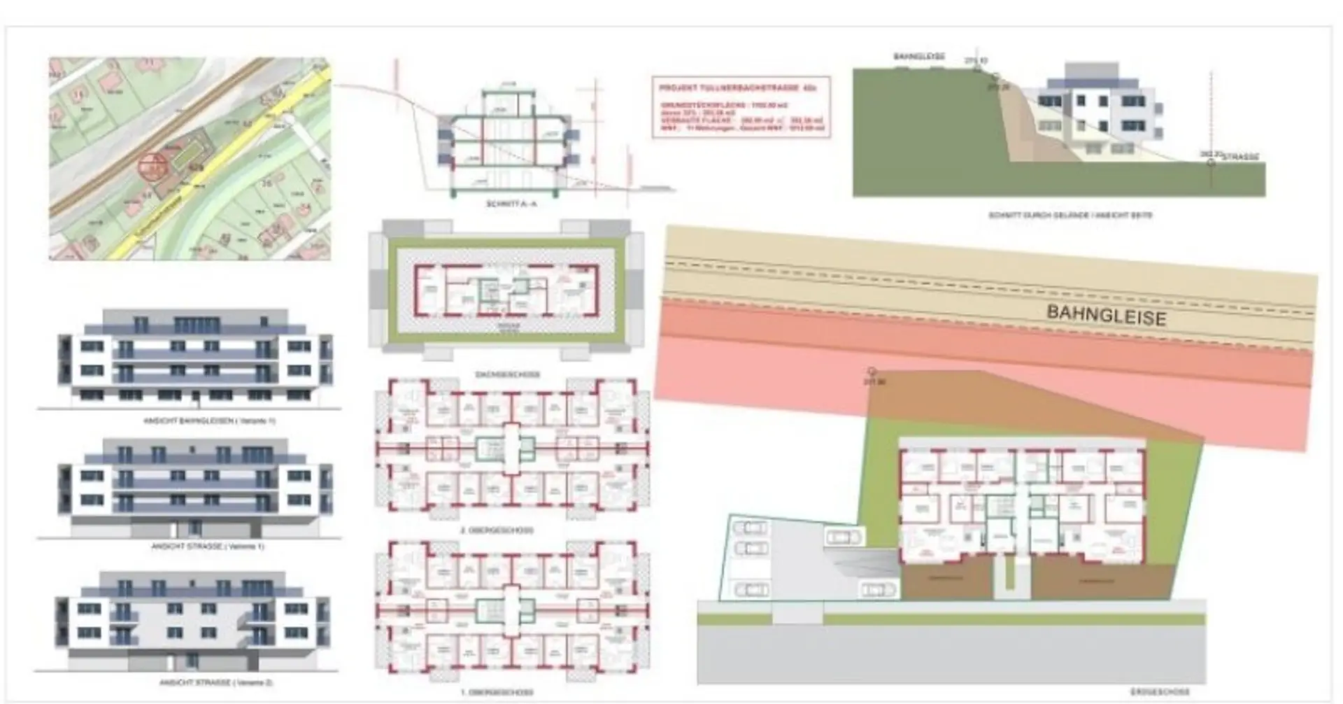
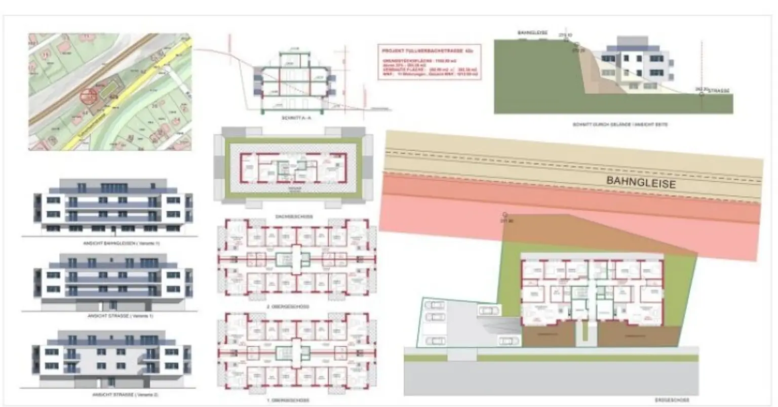
Zum Verkauf: Großzügiges Baugrundstück – 1.191 m²

Unregelmäßig, fast rechteckiges Grundstück in attraktiver Lage mit einer Fläche von 1.191 m², eingetragen im Grundbuch – ideal für Bauträger und Investoren.

 

Highlights

Bauland Kerngebiet, offene/gekuppelte Bauweise, Bauklasse I/II

33 % bebaubar, maximale Baufäche ca. 393 m²

Bebauungsstudie: rund 1.032 m² Wohnnutzfläche plus ca. 218 m² Terrasse

Strom, Ortswasser und Kanal an der Grundstücksgrenze vorhanden

Keine bestehenden Bauwerke, sofort bebaubar

 

Lage

Die Immobilie befindet sich in der charmanten Gemeinde Purkersdorf, nur wenige Minuten von Wien entfernt. Umgeben von malerischer Natur bietet das Grundstück eine ruhige und entspannte Atmosphäre – ideal für Familien und Naturliebhaber. Die gute Anbindung an den öffentlichen Verkehr, einschließlich einer nahegelegenen Busstation, ermöglicht eine schnelle Erreichbarkeit der Wiener Innenstadt und sorgt für optimale Mobilität. Erleben Sie die perfekte Balance zwischen ländlichem Flair und urbanem Leben!

Unterlagen & Besichtigungen

Bei Interesse laden wir Sie gerne zu einem unverbindlichen Gespräch in unser Büro ein und besichtigen gemeinsam die Liegenschaft.
Wir unterstützen Sie außerdem bei der Finanzierung Ihrer Immobilie und finden gemeinsam mit unseren langjährigen Partnern die besten Konditionen für Sie.

 

Hinweis

_Alle Angaben ohne Gewähr. Druckfehler, Irrtümer und Änderungen vorbehalten._

 

 

 

 

 

 

Wir weisen darauf hin, dass zwischen dem Vermittler und dem zu vermittelnden Dritten ein familiäres oder wirtschaftliches Naheverhältnis besteht.

Der Vermittler ist als Doppelmakler tätig.

Infrastruktur / Entfernungen

Gesundheit
Arzt 3.000m
Apotheke 3.000m
Klinik 5.500m
Krankenhaus 9.000m

Kinder & Schulen
Schule 2.500m
Kindergarten 3.000m
Universität 7.500m

Nahversorgung
Supermarkt 2.000m
Bäckerei 3.000m
Einkaufszentrum 6.000m

Sonstige
Bank 3.000m
Geldautomat 3.000m
Post 3.000m
Polizei 3.000m

Verkehr
Bus 500m
U-Bahn 8.500m
Straßenbahn 8.500m
Bahnhof 1.500m
Autobahnanschluss 6.000m

Angaben Entfernung Luftlinie / Quelle: OpenStreetMap
Beschreibung weiterlesen
Tamara Aleksic

Tamara Aleksic
Kundenbetreuerin e.U.

IMMOMETER Immobilieninvest GmbH

Lade...

Lageplan