NEU - Attraktives Geschäftslokal in Bestlage von Bad Vöslau – vielseitig nutzbar

Immobilie zur Miete in 2540 Bad Vöslau / Objektnummer: 2562
Ausstattung: Barrierefrei Teeküche Möbliert Abstellraum

Preisinformationen

Gesamtmiete (exkl. USt.):
2.246,39 € / Monat
Betriebskosten netto:
640,46 € / Monat
Umsatzsteuer:
449,28 €
Kaution:
3 Bruttomonatsmieten
Vermittlungsprovision:
Ja
Provision:
3 Bruttomonatsmieten zzgl. 20% USt.

Fakten

Objektnummer:
2562
Nutzfläche:
202,03 m²
Zimmer:
8,5
Toilette:
2
Altbau:
Ja
Zustand:
Gepflegt
Verfügbarkeit:
Verfügbar

Beschreibung

Lage und Umfeld

Bad Vöslau bietet eine optimale Anbindung an das öffentliche Verkehrsnetz – sowohl durch regelmäßige Zugverbindungen (Südbahn) als auch durch Buslinien. Die Nähe zur Autobahn A2 ermöglicht zudem eine rasche Erreichbarkeit von Wien (ca. 25 Minuten Fahrzeit). Nahversorger, Gastronomie, Schulen, medizinische Einrichtungen sowie diverse Dienstleistungsbetriebe sind zahlreich vorhanden und unterstreichen die Attraktivität dieses Standortes für Unternehmer wie auch Kunden.

Die charmante Kurstadt Bad Vöslau in Niederösterreich zählt aktuell rund 12.000 Einwohner und überzeugt durch ihre ausgezeichnete Lebensqualität sowie ihre strategisch günstige Lage im südlichen Wiener Umland. Die Stadt ist Teil des Bezirks Baden und verfügt über eine hervorragend ausgebaute Infrastruktur.

https://www.badvoeslau.at/

 

Objektbeschreibung

Zur Vermietung gelangt ein hervorragend ausgestattetes Geschäftslokal in frequentierter Gassenlage von Bad Vöslau. Das Objekt wird derzeit als Tierarztpraxis genutzt und steht ab Mitte des Jahres zur Neuvermietung bereit.

Dank seiner durchdachten Raumaufteilung und hochwertigen Ausstattung eignet sich dieses Objekt ideal für eine Vielzahl an Nutzungsmöglichkeiten – beispielsweise als Ordination, Büro, Kanzlei (Rechtsanwalt, Steuerberater), Versicherungsagentur oder ähnliche Dienstleistungsbetriebe.

 

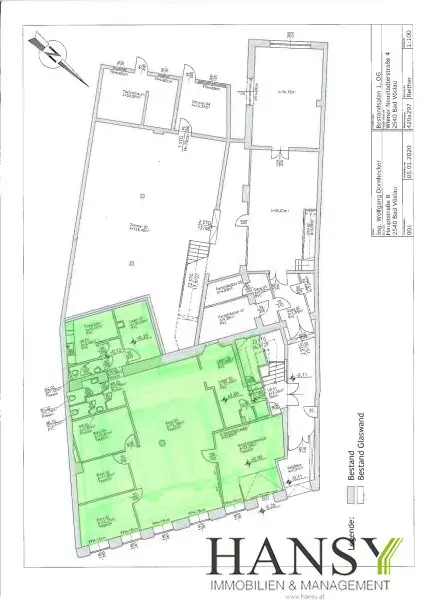
Flächenaufteilung und Ausstattung

Das Geschäftslokal verfügt über:

* Fünf großzügige Behandlungs- bzw. Büroräume
* Einen einladenden, großzügigen Eingangsbereich
* Eine voll ausgestattete Küche
* Mehrere praktische Abstellräume
* Getrennte Sanitäranlagen
* Einen komfortablen privaten Rückzugsbereich
 

Die Räumlichkeiten präsentieren sich in einem sehr gepflegten Zustand. Hochwertige Bodenbeläge sowie einwandfreie Wand- und Deckenflächen unterstreichen die sofortige Nutzbarkeit OHNE zusätzlichem Investitionsbedarf.

 

Besondere Highlights

* Unbefristetes Mietverhältnis möglich
* Hervorragende Sichtbarkeit durch große Schaufensterflächen
* Frequenzlage mit guter Passantenstruktur
* Vielfältige Nutzungsmöglichkeiten
* Sofort bezugsfertig nach Übergabe
* Ausreichende Parkmöglichkeiten im direkten Umfeld

 

Fazit

Dieses Geschäftslokal bietet eine seltene Gelegenheit, einen bestens etablierten Standort in Bad Vöslau zu übernehmen und individuell weiterzuführen. Die Kombination aus Lage, Ausstattung und Flexibilität macht dieses Objekt besonders attraktiv für Unternehmer mit Anspruch.

Die HANSY GmbH wurde exklusiv beauftragt dieses Geschäftslokal zu vermarkten und anzubieten. Es besteht kein Naheverhältnis zum Eigentümer.

BITTE BEACHTEN SIE, DASS WIR AUFGRUND DER NACHWEISPFLICHT GEGENÜBER DEM EIGENTÜMER NUR ANFRAGEN MIT VOLLSTÄNDIGER BEKANNTGABE VON NAME, ADRESSE, TELEFON UND E-MAIL BEARBEITEN KÖNNEN.

Der Vermittler ist als Doppelmakler tätig.

Infrastruktur / Entfernungen

Gesundheit
Arzt <500m
Apotheke <500m
Klinik <5.000m
Krankenhaus <5.000m

Kinder & Schulen
Kindergarten <500m
Schule <1.000m

Nahversorgung
Supermarkt <500m
Bäckerei <500m
Einkaufszentrum <4.000m

Sonstige
Bank <500m
Geldautomat <500m
Post <500m
Polizei <500m

Verkehr
Bus <500m
Bahnhof <1.000m
Straßenbahn <5.000m
Autobahnanschluss <1.500m
Flughafen <3.500m

Angaben Entfernung Luftlinie / Quelle: OpenStreetMap
Beschreibung weiterlesen

Lage und Verkehrsanbindung

Diese Büro-/Praxislage in 2540 Bad Vöslau besticht durch ihre zentrale Position nahe Rathaus und Hochstraße. In unmittelbarer Umgebung finden Sie Arzt, Apotheke, Kindergarten, Schule, Supermarkt, Bäckerei, Bank, Geldautomat, Post, Polizei sowie Bus- und Bahnhofsanbindung – perfekte Infrastruktur für Ihre Geschäftstätigkeit.

Rathaus und Hochstraße

Energieeffizienz

HWB:
158,8 kWh/(m²*a)
HWB Klasse:
E
Energieausweisart:
Energiebedarfs-ausweis

Grundriss

Lageplan

2540 Bad Vöslau | Baden

Lade...
Rene Hansy

Rene Hansy

Hansy GmbH

Lade...

Fotomix

Bild 1 Bild 2 Bild 3 Bild 4 Bild 5 Bild 6 Bild 7 Bild 8 Bild 9 Bild 10