NEU - Augarten: Sonniger 75m² Altbau mit 3 Zimmern und Einbauküche - 1200 Wien

Wohnung zur Miete in 1200 Wien - Gesamtmiete: 1.278,52 € / Objektnummer: 7742
Ausstattung: Boden Bad Kabel/Satelliten-TV Fahrradraum Etagenheizung
Zimmer 1
Zimmer 1
Zimmer 1
Zimmer 2
Zimmer 2
Zimmer 2
Zimmer 3
Zimmer 3
Einbauküche
Einbauküche
Badezimmer
Badezimmer
Vorraum
Vorraum
Vorraum
Vorraum

Preisinformationen

Gesamtmiete:
1.278,52 € / Monat
Betriebskosten netto:
173,60 € / Monat
Umsatzsteuer:
116,14 €
Kaution:
3.800,00 €
Provision:
Gemäß Erstauftraggeberprinzip bezahlt der Abgeber die Provision.

Fakten

Objektnummer:
7742
Objekttyp:
Wohnung
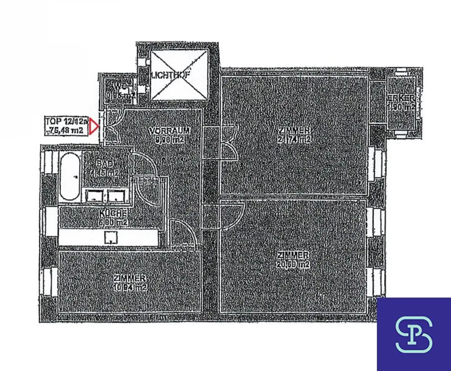
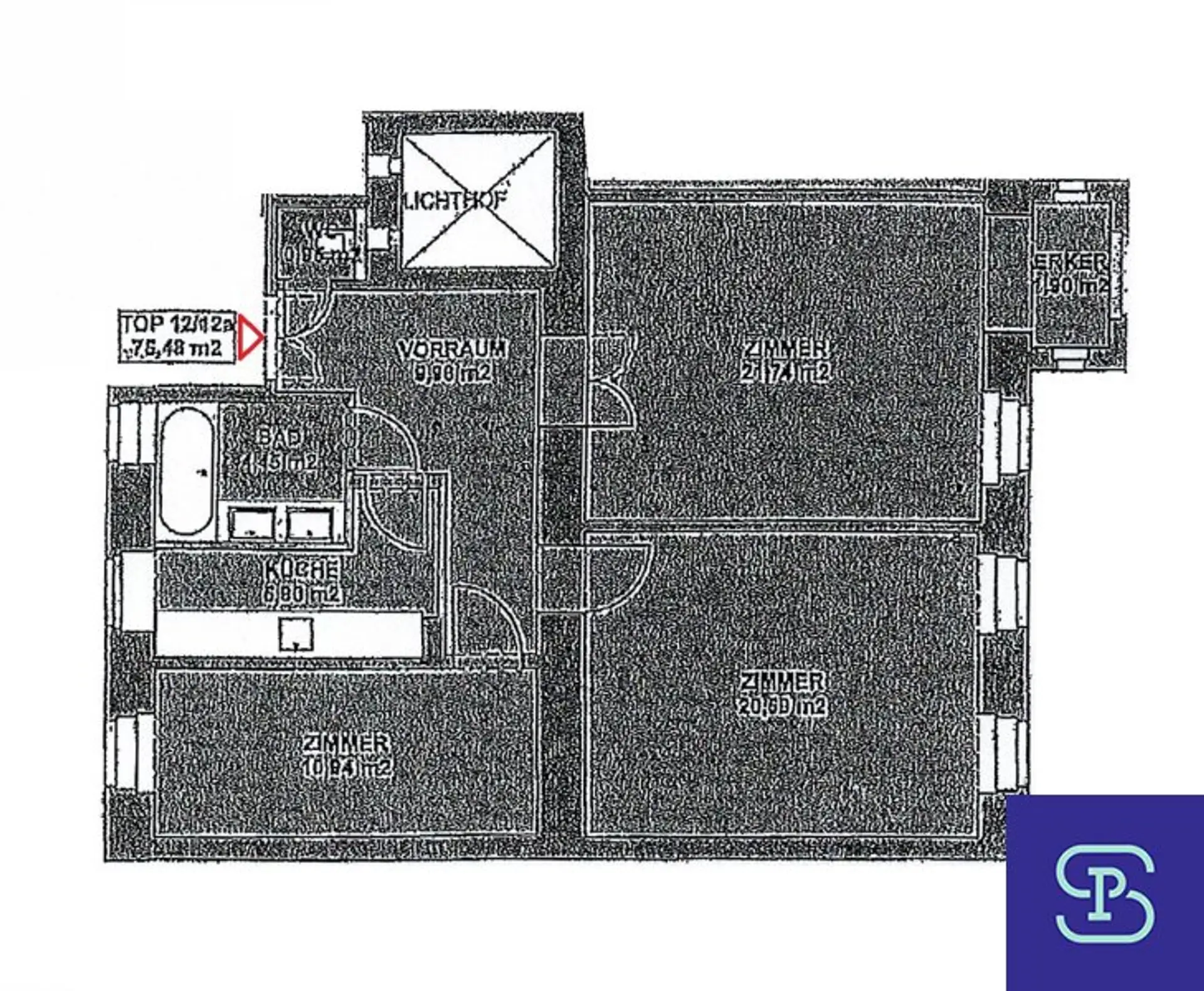
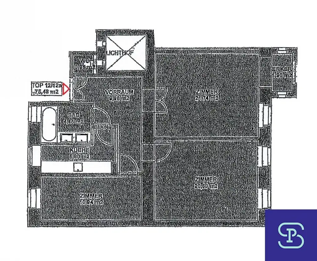
Wohnfläche:
75 m²
Zimmer:
3
Badezimmer:
1
Toilette:
1
Stockwerk:
1
Baujahr:
1910
Altbau:
Ja
Letzte Sanierung:
2018
Zustand:
Teilsaniert
Verfügbarkeit:
Verfügbar

Beschreibung

Provisionsfrei: Klassischer 75m² Stilaltbau mit Einbauküche in begehrter Wohnlage! 

Diese sonnige und vor einigen Jahren renovierte Wohnung befindet sich im 1. Stock + Hochparterre (kein Lift) eines schönen Altbaus in der Karajangasse, nur 50m vom Augarten entfernt. Die Wohnung ist überwiegend südseitig ausgerichtet, bietet teilweise einen Ausblick Richtung Augarten und besteht aus 3 Zimmern, Küche, Badezimmer, zentralem Vorraum und WC,.

Ausstattung: Gasetagenheizung, Einbauküche mit Geräten, Parkettböden, tw. Flügeltüren, geschmackvolles Fliesenbad mit Badewanne, WM-Anschluss, Kunststofffenster mit Mehrfachverglasung, Telekabel- und Internet-Vorbereitung, Sprechanlage, Fahrradraum,.

Sehr gute und gesuchte Lage in einer ruhigen Seitengasse, unmittelbar beim Augarten. Auch die Innenstadt, der Karmeliter Markt und der Prater sind mit dem Auto, Fahrrad oder den öffentlichen Verkehrsmitteln in wenigen Minuten erreichbar. Ausgezeichnete Infrastruktur durch zahlreiche Einkaufsmöglichkeiten in unmittelbarer Umgebung und öffentliche Verkehrsanbindung. In Gehdistanz erreichbar sind die Straßenbahnlinien 2, 5, 31, 33 und Autobus 5A, 5B sowie die U-Bahnlinie U4 (Friedensbrücke) und U6 (Jägerstraße),.

Die Wohnung wird ab sofort in befristeter Hauptmiete (5 Jahre+) vermietet.
Gesamtmiete inkl. Bk und 10% USt. € 1.278,52 
(HMZ € 963,88 + IM € 23,90 + Bk € 173,60 + 10% USt. € 116,14 + Manip. € 1,-)
Kaution € 3.800,-

KONTAKT: Anfragen bitte nur per Email-Anfragefunktion! Keine telefonische Terminvergabe!

 

Besuchen Sie für unsere weiteren Angebote bitte auch unsere Homepage: www.sitarz.at [http://www.sitarz.at] 

Wir weisen darauf hin, dass zwischen dem Vermittler und dem zu vermittelnden Dritten ein familiäres oder wirtschaftliches Naheverhältnis besteht.

Der Immobilienmakler erklärt, dass er – entgegen dem in der Immobilienwirtschaft üblichen Geschäftsgebrauch des Doppelmaklers – einseitig nur für den Vermieter tätig ist.

Infrastruktur / Entfernungen

Gesundheit
Arzt <500m
Apotheke <500m
Klinik <1.000m
Krankenhaus <1.000m

Kinder & Schulen
Schule <500m
Kindergarten <500m
Universität <1.500m
Höhere Schule <1.000m

Nahversorgung
Supermarkt <500m
Bäckerei <500m
Einkaufszentrum <1.000m

Sonstige
Geldautomat <500m
Bank <500m
Post <500m
Polizei <500m

Verkehr
Bus <500m
U-Bahn <1.000m
Straßenbahn <500m
Bahnhof <1.000m
Autobahnanschluss <1.500m

Angaben Entfernung Luftlinie / Quelle: OpenStreetMap
Beschreibung weiterlesen

Lage und Verkehrsanbindung

Wasnergasse

Wasnergasse, Augarten

Energieeffizienz

HWB:
176,2 kWh/(m²*a)
HWB Klasse:
E
fGEE:
2,92
fGEE Klasse:
E
Energieausweisart:
Energiebedarfs-ausweis
Gültig bis:
05.04.2033

Grundriss

Lageplan

1200 Wien | Wien 20., Brigittenau

Lade...
Sitarz & Partner Immobilien GmbH

Sitarz & Partner Immobilien GmbH
Office

Sitarz & Partner Immobilien GmbH

Lade...

Fotomix

Zimmer 1 Zimmer 1 Zimmer 1 Zimmer 2 Zimmer 2 Zimmer 2 Zimmer 3 Zimmer 3 Einbauküche Einbauküche Badezimmer Badezimmer Vorraum Vorraum Vorraum Vorraum