NEU - Ausbaufähiges Wohn-/ oder Geschäftshaus in guter zentraler Lage

Haus zum Kauf in 9702 Ferndorf - Kaufpreis: 224.000 € / Objektnummer: 4213
Ausstattung: Parkplatz Außenparkplatz Zentralheizung
Aussenansicht
Aussenansicht
Aussenansicht
Einfahrt
Eingang
EG Wohnraum
EG Bad/WC
EG WC
Stiegenhaus
Untergeschoss
Untergeschoss
Skizze Untergeschoss
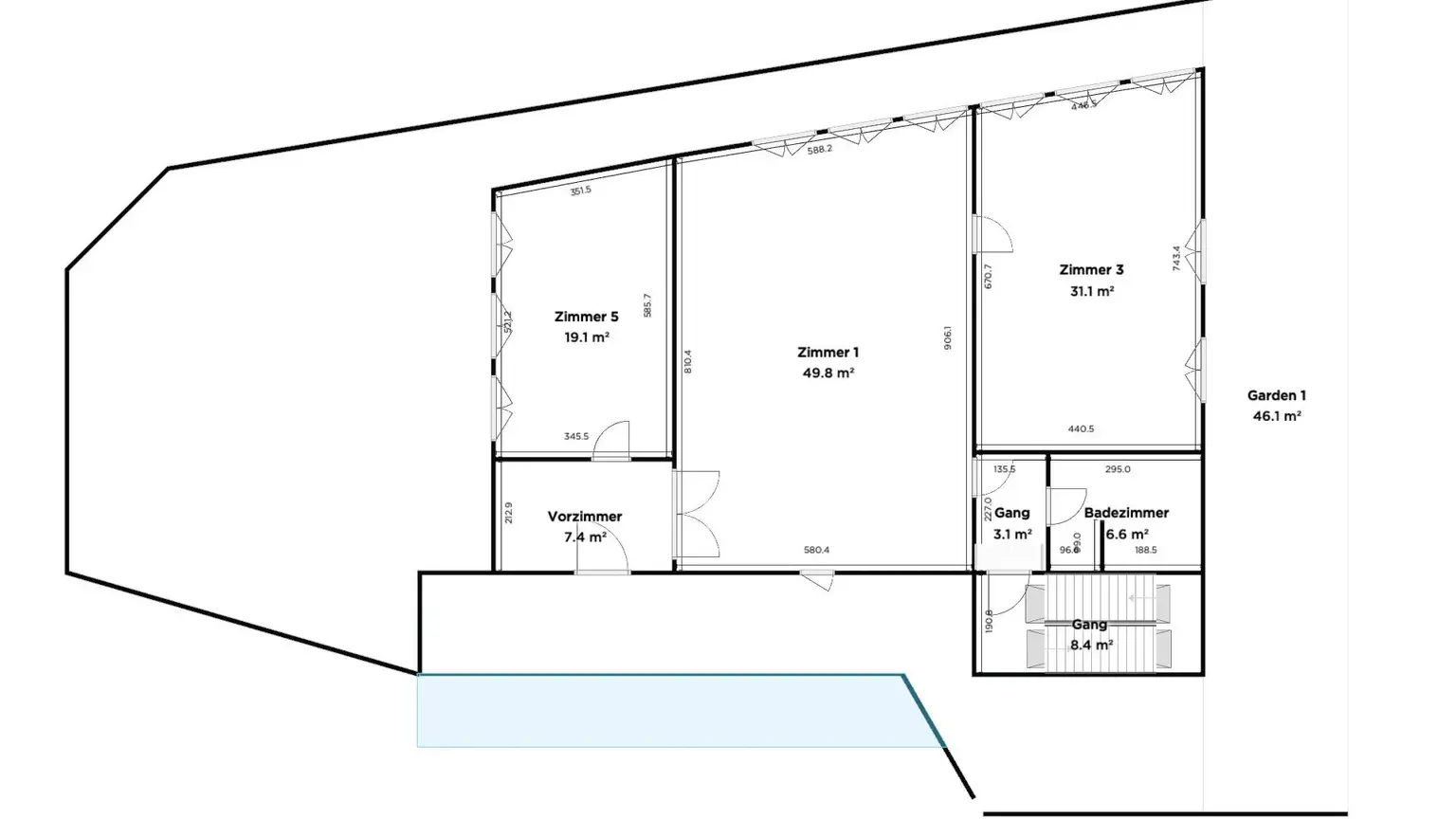
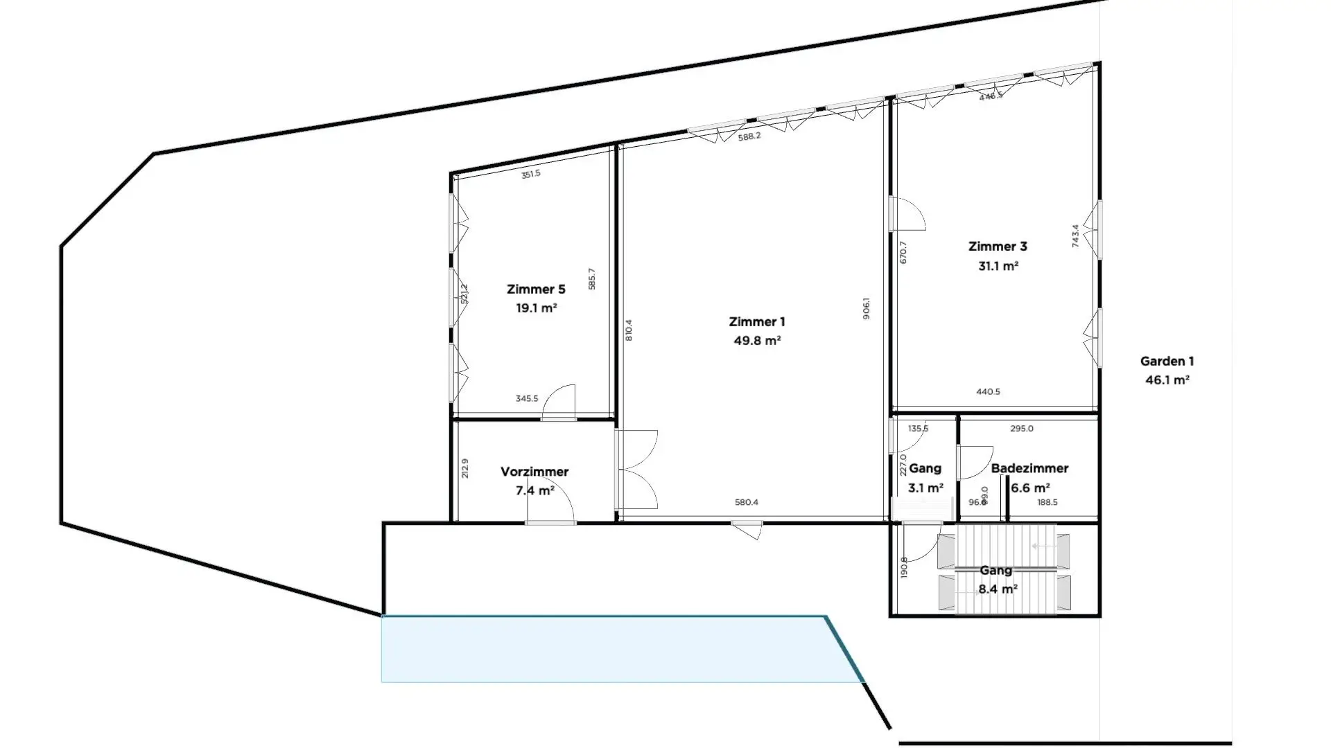
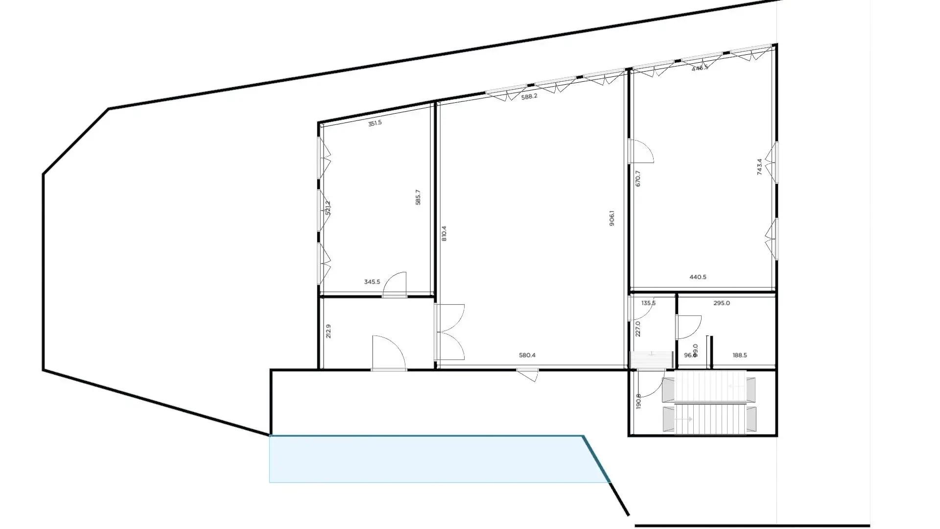
Skizze Erdgeschoss

Preisinformationen

Kaufpreis:
224.000 €
Provision:
3.00 %

Fakten

Objektnummer:
4213
Objekttyp:
Haus
Wohnfläche:
280 m²
Grundstücksfläche:
384 m²
Zimmer:
5
Badezimmer:
1
Toilette:
1
Baujahr:
ca. 1964
Verfügbarkeit:
Verfügbar

Beschreibung

Ausbaufähiges Wohn-/oder Geschäftshaus in guter zentraler Lage.

Dieses Wohnhaus in zentraler Lage in Ferndorf eignet sich hervorragend als Wohn- oder Geschäftshaus. Bestehend aus Erdgeschoss und Untergeschoss. Außerdem besteht die Möglichkeit das Gebäude um ein Stockwerk zu erweitern. Entsprechende Entwürfe liegen bereits vor. Das Erdgeschoss befindet sich noch im unsanierten Zustand und kann individuell, sowohl als Geschäfts/- wie auch als Wohnbereich, hergerichtet werden.
Direkt vor dem Haus befindet sich ein Abstellplatz für 2 PKW`s. 
Geheizt wird mit einer Gas-Zentralheizung. Ein Energieausweis liegt vor.

Viele Dinge des täglichen Bedarfs sind fußläufig erreichbar. So befindet sich ein Lebensmittelgeschäft in unmittelbarer Nachbarschaft. Auch diverse Ärzte und der Bahnhof sind gut erreichbar. Zusätzlich sind sowohl die Städte Spittal/Drau, als auch Villach in 10 bis 20 Autominuten erreichbar.

Gerne lassen wir Ihnen ein ausführliches Exposé zukommen und stehen für Fragen zur Verfügung.
Angaben gemäß gesetzlichem Erfordernis:
Heizwärmebedarf: 108.0 kWh/(m²a)
Klasse Heizwärmebedarf: D
Faktor Gesamtenergieeffizienz: 2.02
Klasse Faktor Gesamtenergieeffizienz: D
Beschreibung weiterlesen

Energieeffizienz

HWB Klasse:
D
fGEE:
2,02
fGEE Klasse:
D
Energieausweisart:
Energiebedarfs-ausweis

Lageplan

9702 Ferndorf | Villach Land

Lade...
Stephan Kirchner

Stephan Kirchner

Adunka Immobilien e.U. - Partnerbüro der PlanetHome Immobilien GmbH

Lade...

Fotomix

Aussenansicht Aussenansicht Aussenansicht Einfahrt Eingang EG Wohnraum EG Bad/WC EG WC Stiegenhaus Untergeschoss Untergeschoss Skizze Untergeschoss Skizze Erdgeschoss