NEU - Barrierefreie 3-Zimmer-Gartenwohnung am Wilhelminenberg!

Wohnung zum Kauf in 1160 Wien - Kaufpreis: 467.000 € / Objektnummer: 7191/237
Ausstattung: Barrierefrei Boden Fahrstuhl Bad Möbliert Rollladen Etagenheizung Terrasse Garten

Preisinformationen

Kaufpreis:
467.000 €
Kaufpreis/m²
5.516,83 €
Betriebskosten netto:
113,10 € / Monat
Vermittlungsprovision:
Ja
Provision:
3% des Kaufpreises zzgl. 20% USt.

Fakten

Objektnummer:
7191/237
Objekttyp:
Wohnung
Terrasse:
1
Wohnfläche:
77,84 m²
Nutzfläche:
77,84 m²
Gartenfläche:
30,56 m²
Baujahr:
2002
Neubau:
Ja
Zustand:
Gepflegt
Verfügbarkeit:
Verfügbar

Beschreibung

RUHELAGE, TERRASSE, PRIVATGARTEN & STELLPLATZOPTION

Diese gepflegte 3-Zimmer-Gartenwohnung in begehrter Grünruhelage am Wilhelminenberg vereint Wohnkomfort, Privatsphäre und Alltagstauglichkeit auf besonders attraktive Weise. In einer kleinen, modernen Wohnhausanlage gelegen, bietet dieses Zuhause genau jene Qualitäten, die in Wien selten geworden sind: Ruhe, Freifläche, Barrierefreiheit und eine durchdachte Raumaufteilung.

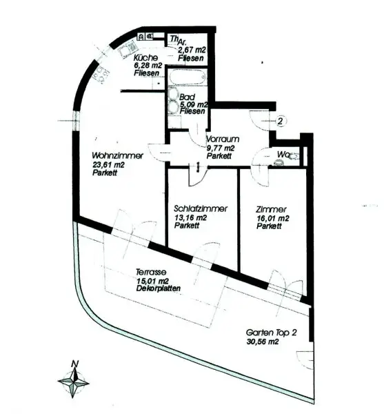
Auf rund 77,84 m² Wohnfläche erwartet Sie ein stimmiges Raumkonzept mit zentral begehbaren Räumen, zwei Schlafzimmern, einem Badezimmer sowie einem separaten WC.

Das besondere Highlight: Alle drei südseitigen Zimmer verfügen über direkten Zugang zur sonnigen Terrasse und in den privaten Garten. So entsteht ein Wohngefühl, das man sonst eher aus dem Hausbereich kennt, nur deutlich komfortabler und pflegeleichter.

Die ca. 15,01 m² große Terrasse und der rund 30,56 m² große Garten (exkl. Terrasse) schaffen einen wunderbaren privaten Rückzugsort im Grünen, ideal für entspannte Stunden im Freien, ein Frühstück in der Morgensonne oder einen ruhigen Feierabend in geschützter Atmosphäre. Gerade für Paare, Best Ager, kleine Familien oder Homeoffice-Nutzer bietet diese Wohnung ein Wohnumfeld mit echter Lebensqualität.

Auch die Ausstattung überzeugt: Hochwertige Parkettböden in den Wohnräumen, stilvolle Fliesen im Badezimmer, elektrische Außenrollos, eine Markise sowie eine Alarmanlage sorgen für Komfort und Sicherheit. Beheizt wird die Wohnung über eine moderne Gas-Etagenheizung. Thermofassade, 2-fach verglaste Fenster, ein Fahrradraum und ein ca. 4 m² großes Kellerabteil runden das Angebot ab.

Die Wohnung wird teilmöbliert übergeben. Ein Garagenplatz kann optional erworben werden.

Die Lage am Wilhelminenberg zählt zu den gefragtesten Wohngegenden im Westen Wiens. Hier wohnen Sie ruhig, naturnah und dennoch gut angebunden. Naherholungsgebiete wie der Ottakringer Wald, der Schlosspark Wilhelminenberg oder der Jubiläumswarteweg befinden sich in der Umgebung und laden zu Spaziergängen, Joggingrunden oder Ausflügen ins Grüne ein. Gleichzeitig sind Einkaufsmöglichkeiten, Schulen, Kindergärten, Apotheken sowie öffentliche Verkehrsmittel rasch erreichbar.

Diese Immobilie ist ideal für alle, die in Wien wohnen möchten, ohne auf Ruhe, Grünraum und privaten Freiraum zu verzichten.

 

HIGHLIGHTS AUF EINEN BLICK:

* 3-Zimmer-Gartenwohnung in Ruhelage
* ca. 77,84 m² Wohnfläche
* ca. 15,01 m² Terrasse
* ca. 30,56 m² privater Garten
* barrierefrei
* alle Zimmer mit Zugang zu Terrasse und Garten
* separate WC-Einheit
* Kellerabteil
* Fahrradraum
* optionaler Garagenplatz
* gepflegte kleine Wohnhausanlage am Wilhelminenberg

 

Optional steht ein Garagenstellplatz zu einem Kaufpreis von EUR 35.000 zum Erwerb zur Verfügung. Es besteht keine Kaufverpflichtung für den Garagenplatz!

 

Gerade jetzt besonders attraktiv:

Beim Kauf von selbst genutztem Wohneigentum kann noch die befristete Gebührenbefreiung nach § 25 GGG (Gerichtsgebührengesetz) genutzt werden. Da diese Regelung bald endet, lohnt sich eine rasche Entscheidung besonders. Voraussetzung ist, dass der Grundbuchsantrag noch rechtzeitig, also vor dem 1. Juli 2026, eingebracht wird. 

So sparen Sie 1,1% Eintragungsgebühren und 1,2% Hypothekeneintragungskosten im Fall einer Finanzierung.

 

Infrastruktur / Entfernungen

Gesundheit
Arzt <500m
Apotheke <1.500m
Klinik <1.000m
Krankenhaus <1.000m

Kinder & Schulen
Schule <1.500m
Kindergarten <1.000m
Universität <1.000m
Höhere Schule <2.500m

Nahversorgung
Supermarkt <1.500m
Bäckerei <1.500m
Einkaufszentrum <1.500m

Sonstige
Geldautomat <1.500m
Bank <1.500m
Post <1.500m
Polizei <1.500m

Verkehr
Bus <500m
U-Bahn <2.000m
Straßenbahn <1.500m
Bahnhof <2.000m
Autobahnanschluss <6.000m

Angaben Entfernung Luftlinie / Quelle: OpenStreetMap
Beschreibung weiterlesen

Lage und Verkehrsanbindung

Wilheminenberg

Energieeffizienz

HWB:
86 kWh/(m²*a)
HWB Klasse:
C
fGEE:
1,44
fGEE Klasse:
C
Energieausweisart:
Energiebedarfs-ausweis
Gültig bis:
01.07.2035

Grundriss

Lageplan

1160 Wien | Wien 16., Ottakring

Lade...
Robert Holzmann

Robert Holzmann
Konzess. Immobilienmakler

Hillinger Immobilien GmbH

Lade...

Fotomix

Bild 1 Bild 2 Bild 3 Bild 4 Bild 5 Bild 6 Bild 7 Bild 8 Bild 9