NEU - Barrierefreie Büro- und Geschäftsfläche im Zentrum von Steyr!

Büro zur Miete in 4400 Steyr - Gesamtmiete: 500,00 € / Objektnummer: 3202
Ausstattung: Rollstuhlgerecht Boden Teeküche Kabel/Satelliten-TV Klimaanlage
Bürofläche
Bürofläche mit Blick zum Eingang
Abstellraum
WC
Serverraum
Lift
Stiegenhaus
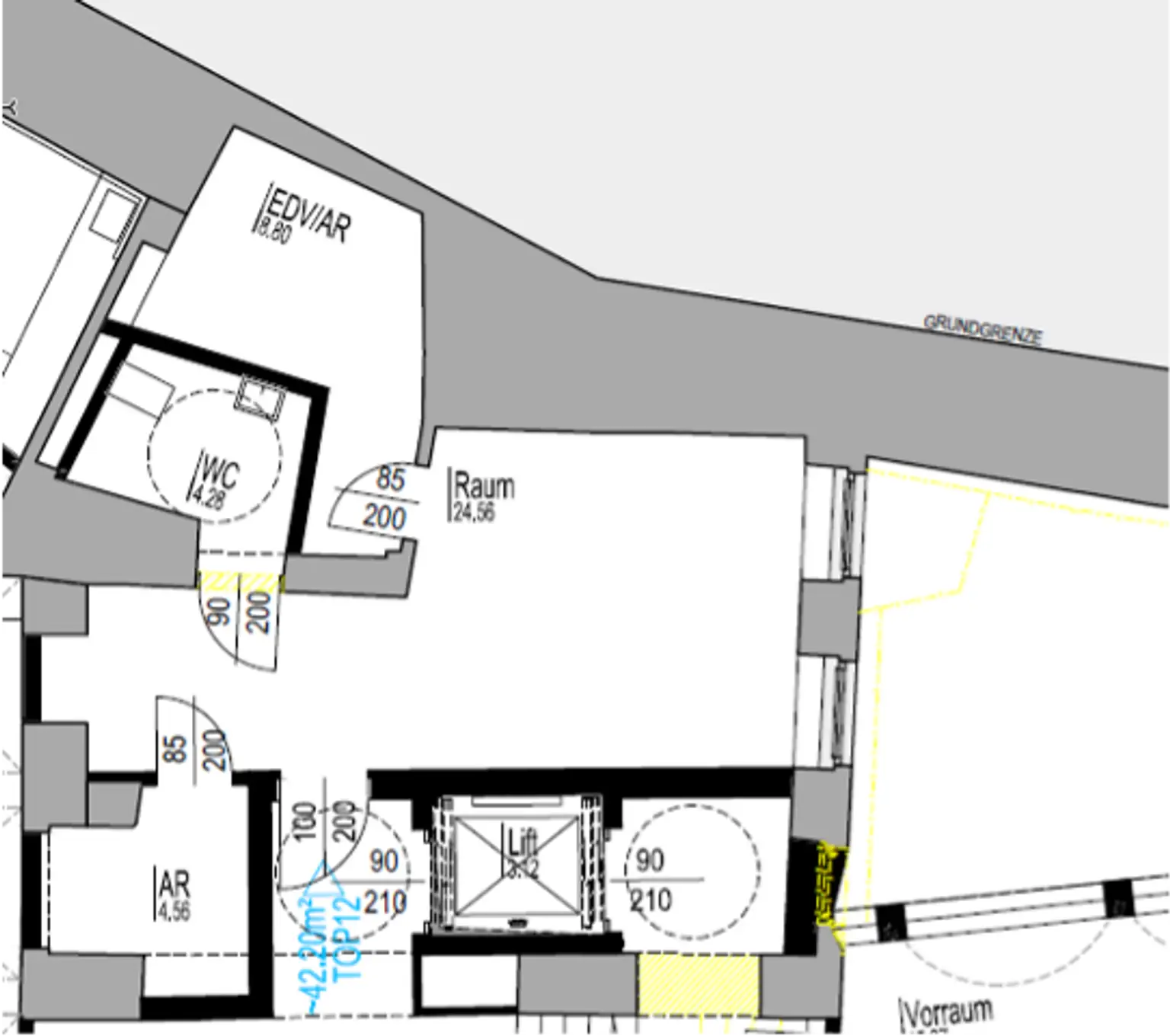
Grundriss
Außenansicht

Preisinformationen

Gesamtmiete:
500,00 € / Monat
Kaution:
1.800,00 €

Fakten

Objektnummer:
3202
Objekttyp:
Büro
Nutzfläche:
42,2 m²
Bürofläche:
42,2 m²
Zimmer:
1,5
Toilette:
1
Zustand:
Gepflegt
Verfügbarkeit:
Verfügbar

Beschreibung

Das repräsentative Büro liegt im 1. Stock und befindet sich in einem modernen Büro- und Verwaltungsgebäude. Die Erschließung erfolgt über das großzügig angelegte Treppenhaus mit behindertengerechtem Personenlift.

Das Büro punktet besonders mit einer geschickten Raumaufteilung. Neben einem Technikraum gibt es auch eine Nische mit Anschlüssen für eine Teeküche.

Ein Abstellraum direkt im Büro schafft zusätzlichen Stauraum.

Das renovierte und besonders repräsentative Stadthaus, macht es für Mitarbeiter sowie für Kunden zu einem echten Highlight.

Ein Blick auf die Infrastruktur zeigt, dass dieses Büro nicht besser liegen könnte. Am beliebten und charmanten Stadtplatz, umgeben von vielen Geschäften, Restaurants und Bars, sowie einer hervorragenden Infrastruktur – alles in unmittelbarer Umgebung.

Großzügige Parkmöglichkeiten direkt vor dem Gebäude machen das Büro zu einem guten Gewerbestandort.

Anfragen lohnt sich. Ich freue mich auf Ihre Anfrage und eine unverbindliche Besichtigung.
Angaben gemäß gesetzlichem Erfordernis:
Miete 390
Betriebskosten 110
Umsatzsteuer 0
---------------------------------
Gesamtbetrag 500
---------------------------------
Heizwärmebedarf: 136.0 kWh/(m²a)
Beschreibung weiterlesen

Energieeffizienz

Energieausweisart:
Energiebedarfs-ausweis

Dokumente

Benjamin Kozlica

Benjamin Kozlica

RE/MAX Alpha in Steyr

Lade...

Fotomix

Bürofläche Bürofläche mit Blick zum Eingang Abstellraum WC Serverraum Lift Stiegenhaus Grundriss Außenansicht