NEU - Baubeginn I direkt beim Park I wenige Minuten bis zur Donauinsel, Neuen und Alten Donau I

Wohnung zum Kauf in 1210 Wien - Kaufpreis: 540.000 € / Objektnummer: 16001
Ausstattung: Barrierefrei Boden Fahrstuhl Wohnküche / offene Küche Bad Klimaanlage Tiefgarage Parkplatz Abstellraum Fußbodenheizung Terrasse Garten

Preisinformationen

Kaufpreis:
540.000 €
Kaufpreis/m²
6.134,97 €
Vermittlungsprovision:
Ja
Provision:
3% des Kaufpreises zzgl. 20% USt.

Fakten

Objektnummer:
16001
Objekttyp:
Wohnung
Terrasse:
1
Keller Fläche:
3,37 m²
Wohnfläche:
73,64 m²
Nutzfläche:
88,02 m²
Gartenfläche:
91,36 m²
Zimmer:
3
Badezimmer:
1
Toilette:
1
Zustand:
Erstbezug
Verfügbarkeit:
Verfügbar

Beschreibung

In der Schwarzelackenau beim Marchfeldkanal , in naturnaher Umgebung des 21. Bezirks, entsteht ein Neubauprojekt mit  insgesamt 28 freifinanzierten Eigentumswohnungen. Das Projekt umfasst insgesamt zwei Stiegen, jeweils mit 2 bis 4 Zimmer Wohnungen und Wohnflächen zwischen ca. 37 m² und 105 m²  – Alle Einheiten verfügen über Freiflächen in Form von Balkon, Terrasse oder einem Eigengarten.

Baustart – das ermöglicht Ihnen als Käufer, gemeinsam mit dem Architekten individuelle Anpassungen in der Raumgestaltung vorzunehmen und Ihre persönlichen Wohnideen zu verwirklichen.

Die Architektur ist klar und zeitgemäß, das Wohnkonzept auf langfristige Qualität ausgerichtet: Alle Wohnungen sind barrierefrei zugänglich. Beheizt wird mittels Luft/Wasser-Wärmepumpe , ergänzt durch eine Photovoltaikanlage zur Unterstützung des Allgemeinstroms. Eine Tiefgarage mit gesamt 19 Stellplätzen , steht Ihnen zur Verfügung. 

Überblick:

* 28 Eigentumswohnungen, 2 bis 4 Zimmer (bereits 9 vergeben)
* Zwei Stiegen - jeweils 14 Wohnungen
* Stiege 1: 4x 2 Zi. Wohnungen, 10x 3 Zi. Wohnungen
* Stiege 2: 4x 2 Zi. Wohnungen, 1x 2,5 Zi. Wohnung, 7x 3 Zi. Wohnungen, 1x 4 Zi. Wohnung
* Außenflächen bei jeder Einheit: Balkon, Terrasse oder Eigengarten
* Barrierefreier Zugang in allen Geschoßen
* Hauseigene Tiefgarage mit 19 Stellplätzen
* Fahrradraum / Kinderwagenabstellraum / Eigenes Kellerabteil
* Voraussichtliche Fertigstellung: 12 / 2026

Technische Ausstattung & Komfort:

* Wasser-Wasser-Wärmepumpe in Splitausführung (Kühlung & Heizung)
* Photovoltaik/Solaranlage zur Reduktion von Energie- und Betriebskosten
* Fußbodenheizung mit Raumthermostaten  
* Fußbodentemperierung in sämtlichen Wohnbereichen
* Elektrische Handtuchheizkörper in den Bädern
* Unter anderem Split-Klimageräte
* Hochwertige Innenausstattung (Eichenparkett, Feinsteinfliesen u.v.m.)
* 3‑fach verglaste Holz‑Alu‑Fenster und Sonnenschutz in allen Wohnungen (Rollladen, Raffstores, Markisoletten) 
* Kleinkinderspielplatz auf Eigengrund

Baustart 01.09.2025 – und schon jetzt sind 10 von 28 Einheiten vergeben.  

Was überzeugt? Ein klar strukturiertes Konzept, intelligente Grundrisse und eine Lage mit Lebensqualität. Egal ob zur Kapitalanlage oder für den Eigenbedarf – Mit diesem Wohnbauprojekt investieren Sie in Lebensqualität und Substanz! Immobilien gelten als wertbeständige und sichere Anlageform. Alle Wohnungen und Stellplätze können auch als  Vorsorge- / Anlagewohnung   mit Umsatzsteuerausweisung (weitere Vermietung verpflichtend!) erworben werden! 

SICHERN SIE SICH IHRE NEUE VORSORGEWOHNUNG - GERNE BERATEN WIR SIE DAZU!

Gerne steht Ihnen Herr Sebastian Scheuermann für weitere Fragen bzw. flexibel gestaltbare Besichtigungstermine unter +43 676 420 78 46 zur Verfügung.  
www.ringsmuth-immobilien.at

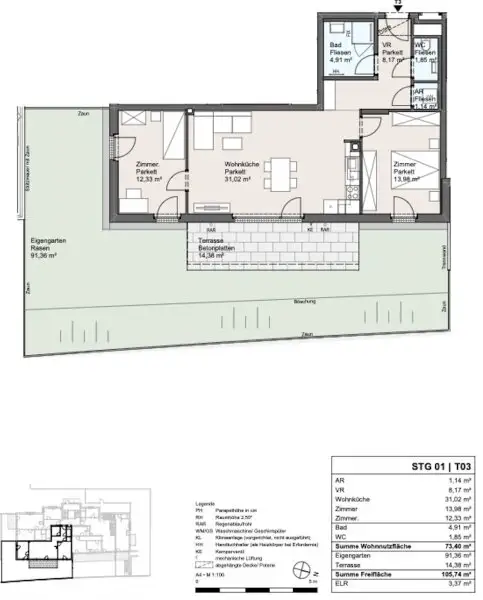
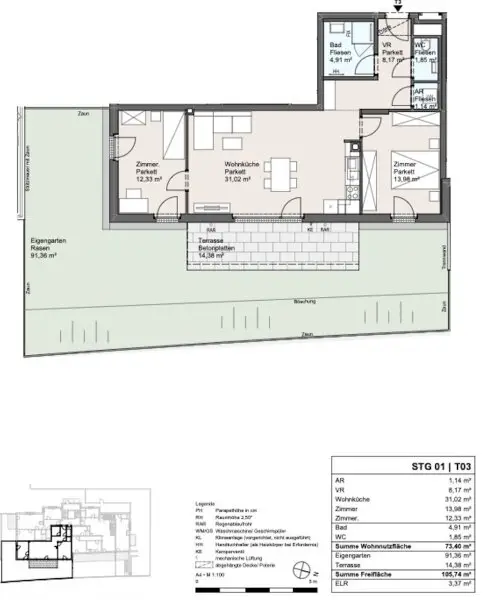
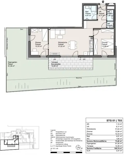
Top 03 I 3 Zimmer I ca. 74 m² + ca. 106 m² Freifläche

Die ca. 74 m² große Gartenwohnung verfügt über gesamt drei Zimmer. Die zentral gelegene Wohnküche öffnet sich direkt zur Terrasse und zum Eigengarten mit einer großzügigen Außenfläche von ca. 98 m². Die moderne Ausstattung sowie bodentiefe Fenstertüren in jedem Zimmer sorgen für ein helles, freundliches Wohngefühl.

Raumaufteilung:

* Vorraum: ca. 5,84 m²
* Wohnküche: ca. 31,10 m²
* Zimmer: ca. 13,76 m²
* Zimmer: ca. 12,33 m²
* Bad: ca.  7,50 m²
* WC: ca. 1,81 m²
* Abstellraum: ca. 1,30 m²
* Terrasse: ca. 14,38 m²
* Eigengarten: ca. 91,36 m²

Ein ca. 3,37 m² Kellerabteil ist der Wohnung zugeordnet.

Besonders hervorzuheben: Der Baustart beginnt mit 15.09. 2025 – das ermöglicht Ihnen als Käufer, gemeinsam mit dem Architekten individuelle Anpassungen in der Raumgestaltung vorzunehmen und Ihre persönlichen Wohnideen zu verwirklichen.

In der Schwarzelackenau beim Marchfeldkanal , in naturnaher Umgebung des 21. Bezirks, entsteht ein Neubauprojekt mit  insgesamt 28 freifinanzierten Eigentumswohnungen - Spatenstich 15.09.2025 . Das Projekt umfasst insgesamt zwei Stiegen, jeweils mit 2 bis 4 Zimmer Wohnungen und Wohnflächen zwischen ca. 37 m² und 105 m²  – Alle Einheiten verfügen über Freiflächen in Form von Balkon, Terrasse oder einem Eigengarten.

Die Architektur ist klar und zeitgemäß, das Wohnkonzept auf langfristige Qualität ausgerichtet: Alle Wohnungen sind  barrierefrei zugänglich. Beheizt wird mittels Luft/Wasser-Wärmepumpe , ergänzt durch eine Photovoltaikanlage zur Unterstützung des Allgemeinstroms. Eine Tiefgarage mit gesamt 19 Stellplätzen , steht Ihnen zur Verfügung. 

Technische Ausstattung & Komfort:

* Wärmepumpe 
* Photovoltaik/Solaranlage zur Reduktion von Energie- und Betriebskosten
* Fußbodenheizung mit Raumthermostaten  
* Fußbodentemperierung in sämtlichen Zimmern
* Hochwertige Innenausstattung (Eichenparkett, Feinsteinfliesen u.v.m.)
* 3‑fach verglaste Kunststoff‑Alu‑Fenster und Sonnenschutz in allen Wohnungen (Rollladen, Raffstores, Markisoletten) 
* Kleinkinderspielplatz auf Eigengrund

Kaufpreis:

Der  Verkaufspreis   beläuft sich auf  Euro 540.000-

Diese Wohnung kann auch als  Vorsorge- / Anlagewohnung   mit Umsatzsteuerausweisung (weitere Vermietung verpflichtend!) erworben werden: 

Anlegerpreis: Euro 486.486,49.-  (zzgl. 20% Ust).  

Alle Preise verstehen sich ohne Kücheneinrichtung und Tiefgaragenstellplatz ( á € 32.256.- bzw. 29.059,46.- Netto + USt) , in schlüsselfertiger Ausführung! 

Baustart 15.09.2025 – und schon jetzt sind 9 von 28 Einheiten vergeben.  

Was überzeugt? Ein klar strukturiertes Konzept, intelligente Grundrisse und eine Lage mit Lebensqualität. Egal ob zur Kapitalanlage oder für den Eigenbedarf – Mit diesem Wohnbauprojekt investieren Sie in Lebensqualität und Substanz! Immobilien gelten als wertbeständige und sichere Anlageform. Alle Wohnungen und Stellplätze können auch als  Vorsorge- / Anlagewohnung   mit Umsatzsteuerausweisung (weitere Vermietung verpflichtend!) erworben werden! 

SICHERN SIE SICH IHRE NEUE VORSORGEWOHNUNG - GERNE BERATEN WIR SIE DAZU!

Gerne steht Ihnen Herr Sebastian Scheuermann für weitere Fragen bzw. flexibel gestaltbare Besichtigungstermine unter +43 676 420 78 46 zur Verfügung.  
www.ringsmuth-immobilien.at

 

Der Vermittler ist als Doppelmakler tätig.

Infrastruktur / Entfernungen

Gesundheit
Arzt 1.000m
Apotheke 500m
Klinik 2.500m
Krankenhaus 2.500m

Kinder & Schulen
Schule 500m
Kindergarten 1.000m
Universität 2.000m
Höhere Schule 2.000m

Nahversorgung
Supermarkt 500m
Bäckerei 1.000m
Einkaufszentrum 2.000m

Sonstige
Geldautomat 1.500m
Bank 1.500m
Post 1.500m
Polizei 1.000m

Verkehr
Bus 500m
U-Bahn 3.000m
Straßenbahn 500m
Bahnhof 1.500m
Autobahnanschluss 1.500m

Angaben Entfernung Luftlinie / Quelle: OpenStreetMap
Beschreibung weiterlesen

Lage und Verkehrsanbindung

In der Schwarzelackenau entsteht ein exklusives Neubau-Wohnprojekt in ruhiger, naturnaher Umgebung. Dieses Projekt ist für alle, die Natur und Freizeit direkt vor der Haustür schätzen. Naherholung am Wasser: Nur wenige Minuten bis zur Donauinsel, Neuen und Alten Donau – perfekte Bedingungen für Sport, Entspannung und Naturgenuss
Erholung & Freizeitsport: Schwimmen, Fischen, Segeln, Radfahren und Joggen – alles schnell erreichbar.

Nahversorger:
-Eurospar: ca. 750m
-Billa: ca. 800m

Öffentliche Verkehrsmittel:
-Bahnhof Wien Floridsdorf (U6, S1, S2, S3, S4, S7, Regionalzüge):
-Ist der wichtigste Verkehrsknotenpunkt im Bezirk. Mit den Buslinien 30A oder 31A erreicht man den Bahnhof in ca. 10–15 Minuten.

S-Bahn-Station Strebersdorf (S3, S4):
-Diese Station ist mit der Buslinie 32A gut erreichbar.

Energieeffizienz

HWB:
37,3 kWh/(m²*a)
HWB Klasse:
B
fGEE:
0,67
fGEE Klasse:
A+
Energieausweisart:
Energiebedarfs-ausweis

Grundriss

Sebastian Scheuermann

Sebastian Scheuermann
Marketing & Sales Manager

Alexander Ringsmuth GmbH

Lade...

Lageplan