NEU - BAUBEWILLIGTES PROJEKT FÜR 3 HÄUSER! GRUNDSTÜCK IN U1-NÄHE. ZU ERRICHTENDE NUTZFLÄCHE 569m².

Grundstück zum Kauf in 1210 Wien - Kaufpreis: 650.000 € / Objektnummer: 16818
SYMBOLBILD
U1 Leopoldau
Ansicht
Ansicht
Ansicht
SYMBOLBILD
SYMBOLBILD
U1 Leopoldau
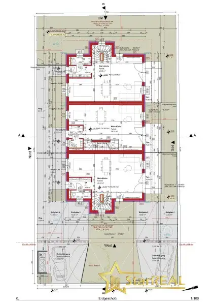
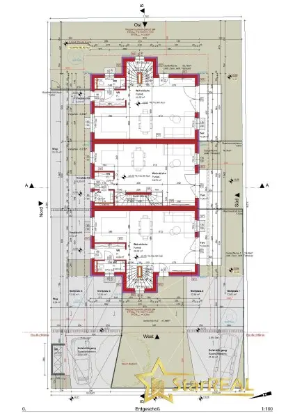
ERDGESCHOSS BEWILLIGT
OBERGESCHOSS BEWILLIGT
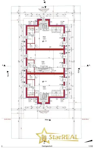
DACHGESCHOSS BEWILLIGT
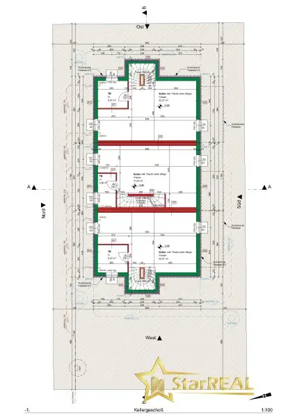
KELLER BEWILLIGT

Preisinformationen

Kaufpreis:
650.000 €
Vermittlungsprovision:
Ja
Provision:
3% des Kaufpreises zzgl. 20% USt.

Fakten

Objektnummer:
16818
Objekttyp:
Grundstück
Verfügbarkeit:
Verfügbar

Beschreibung

KURZFRISTIGER BAUBEGINN MÖGLICH.

SCHÖNE WOHNLAGE NÄHE U1!

BAUGRUND MIT RECHTSKRÄFTIG BEWILLIGTER PROJEKTPLANUNG.

BEI INTERESSE ÜBERMITTELN WIR IHNEN GERNE NÄHERE INFORMATIONEN SAMT DETAILLIERTEN PLÄNEN.

ZU ERRICHTENDE NUTZFLÄCHE LAUT EINREICHPLAN: 569 m²

BAUBEWILLIGUNG FÜR REIHENHÄUSER MIT KELLER UND 4 KFZ-ABSTELLPLÄTZE.
- 426 m² WNFL.
- 143 m² KELLER.
- 38 m² TERRASSEN.

Auf dem Grundstück befindet sich aktuell ein kleines Haus mit ca. 90 m² Nutzfläche und mit ca. 40 m² Keller.

Für die Liegenschaft gibt es eine bewilligte Projektplanung für 3 Reihenhäuser mit Kellern und Terrassen.
Die zu errichtenden Objekte bestehen aus Keller, Erd-, Ober- und Dachgeschoss.
Weiters wurden 4 KFZ-Abstellplätze genehmigt.
Die Gärten orientieren sich südlich.

Bei näherem Interesse senden Sie uns bitte Ihre Anfrage oder nehmen Sie Kontakt mit mir unter 0699/10 636 585 auf.

Wir weisen darauf hin, dass zwischen dem Vermittler und dem zu vermittelnden Dritten ein familiäres oder wirtschaftliches Naheverhältnis besteht.

Der Vermittler ist als Doppelmakler tätig.

Infrastruktur / Entfernungen

Gesundheit
Arzt 2.000m
Apotheke 500m
Klinik 4.000m
Krankenhaus 2.500m

Kinder & Schulen
Schule 500m
Kindergarten 500m
Universität 2.000m
Höhere Schule 4.000m

Nahversorgung
Supermarkt 500m
Bäckerei 1.000m
Einkaufszentrum 1.500m

Sonstige
Geldautomat 1.500m
Bank 1.500m
Post 1.500m
Polizei 1.500m

Verkehr
Bus 500m
U-Bahn 1.000m
Straßenbahn 2.500m
Bahnhof 1.000m
Autobahnanschluss 3.500m

Angaben Entfernung Luftlinie / Quelle: OpenStreetMap
Beschreibung weiterlesen

Lage und Verkehrsanbindung

U1 Leopoldau

Grundrisse

Lageplan

1210 Wien | Wien 21., Floridsdorf

Lade...
Maria Grace Deutschbauer

Maria Grace Deutschbauer
Geschäftsführerin

StarREAL OG

Anrufen
Lade...

Fotomix

SYMBOLBILD U1 Leopoldau Ansicht Ansicht Ansicht SYMBOLBILD SYMBOLBILD U1 Leopoldau