NEU - Baugrundstück mit optional angrenzenden Nutzgrund

Grundstück zum Kauf in 5133 Gilgenberg am Weilhart - Kaufpreis: 105.960 € / Objektnummer: 1651/4566
Luftansicht_01
Luftansicht_02
Luftansicht_03
Luftansicht_04
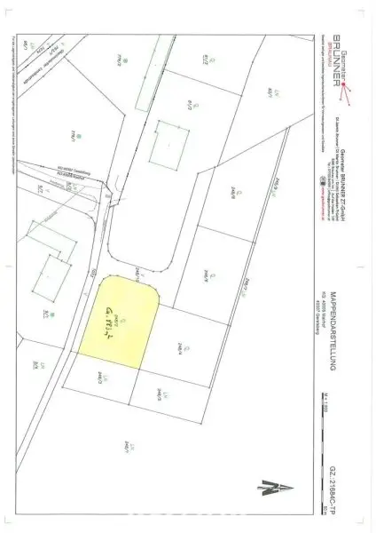
Vermessungsurkunde Brunner Einzel GstNr. 248_2

Preisinformationen

Kaufpreis:
105.960 €
Vermittlungsprovision:
Ja
Provision:
3% des Kaufpreises zzgl. 20% USt.

Fakten

Objektnummer:
1651/4566
Objekttyp:
Grundstück
Grundstücksfläche:
883 m²
Verfügbarkeit:
Verfügbar

Beschreibung

Baugrundstück in Gilgenberg am Ortsrand
Grundstücksgröße: ca. 883 m²
Bauzwang: bis 27. August 2027

Optional besteht die Möglichkeit, eine angrenzende Nutzgrundfläche im Ausmaß von 417 m² zusätzlich zum Baugrundstück zu erwerben.

Lage:
Das Grundstück liegt am ruhigen Ortsrand von 5133 Gilgenberg im schönen Innviertel, auf einer Höhe von 466 m.
Mit ca. 1.322 Einwohnern bietet Gilgenberg eine idyllische, naturnahe Umgebung und ist dennoch gut an die umliegenden Gemeinden und Städte angebunden.

Erschließung:
Das Grundstück ist bereits voll erschlossen, d.h. Kanal-, Wasser-, Strom- und Glasfaseranschlüsse sind vorhanden.
Die Kosten für die Aufschließung zum Bauobjekt trägt der Käufer.
Der Verkehrsflächenbeitrag beträgt 12 € pro m² Grundstücksfläche.
Zusätzlich wird vom Eigentümer noch ein Schutzdamm nordöstlich des Baugrundstücks errichtet, die Kosten dafür übernimmt ebenfalls der Eigentümer.

Der Vertragsersteller Dr. Priller in Eggelsberg ist vorgegeben!

Lagebeschreibung - Gilgenberg am Weilhart:
Die Gemeinde liegt eingebettet in die sanfte Hügellandschaft des Innviertels.
Dank ihrer ländlichen Struktur bietet sie ein ruhiges und familienfreundliches Umfeld.

Infrastruktur:
Einkaufsmöglichkeiten: Supermärkte, eine Metzgerei und eine Bäckerei sind in den benachbarten Gemeinden Neukirchen und Schwand leicht erreichbar.
Dienstleistungen: Eine Bank (Raiffeisenbank) und drei Gasthäuser befinden sich direkt in Gilgenberg.
Bildung: Kindergarten und Volksschule sind vor Ort.
Gesundheit: Ein Allgemeinmediziner sowie ein Tierarzt sind in der Gemeinde ansässig.
Sport und Freizeit: Für sportliche Aktivitäten stehen ein Fußballplatz, Radwege sowie eine Stockschützenhalle zur Verfügung.
Soziale Infrastruktur: Gilgenberg hat ein reges Vereinsleben mit einem Kindergarten, einem Pfarrheim und verschiedenen Vereinen, darunter Feuerwehr, Musikkapelle, und die Union Gilgenberg mit den Sektionen Fußball, Tennis, Ski und Stockschießen.
Gewerbe: In der Region gibt es verschiedene Handwerks- und Industrieunternehmen, z.B. HE-Technik Eisenführer, Möbeltischlerei Alfred Sax, Möbelhaus und Tischlerei Pemwieser, Mondial electronic und RenoVit. In unmittelbarer Nähe befinden sich außerdem die Firmen OTN und B&R.

Verkehrsanbindung:
Die Städte Braunau und Mattighofen sind in ca. 15 Minuten mit dem Auto erreichbar, Burghausen in nur 10 Minuten.
Damit liegt Gilgenberg in idealer Pendlerlage.

Dieses Baugrundstück bietet eine attraktive Möglichkeit, Ihr Eigenheim in einer ruhigen, naturnahen Umgebung mit guter Verkehrsanbindung und einer soliden Infrastruktur zu errichten.
Nutzen Sie die einmalige Gelegenheit, sich ein wunderschönes Baugrundstück in dieser ruhigen und naturnahen Lage zu sichern.
Kontaktieren Sie uns gerne für weitere Informationen oder zur Vereinbarung eines Besichtigungstermins!

Wir weisen auf Ihre 14-tägige Rücktrittsfrist (nach § 11 FAGG ) hin. Damit Ihre Rechte gewahrt werden, beantworten wir nur Anfragen mit vollständigen Kontaktdaten (Name, Adresse, Handy, E-Mail). Wir werden gerne vor Ablauf der 14-tägigen Rücktrittsfrist für Sie tätig, wenn Sie uns gesetzeskonform (FAGG) und ausdrücklich (am besten per E-Mail) auffordern. Wenn Kaufvertrag/ Mietvertrag nicht zustande kommen, ist unsere Tätigkeit für Sie völlig kostenfrei. Wir möchten an dieser Stelle auf unsere Doppelmaklertätigkeit hinweisen.

Nur auf www.remax.at finden Sie neue RE/MAX Immobilien früher und vollständig.

Neuer Job, neue Perspektiven: Jetzt als Immobilienmakler/in durchstarten!
Werden Sie Teil unseres Teams – jetzt bewerben unter karriere@remax-innova.at.

Weitere Infos in unseren News: https://www.remax.at/de/ib/remax-innova-braunau-inn/news/wir-suchen-sie-16641

Der Vermittler ist als Doppelmakler tätig.

Infrastruktur / Entfernungen

Gesundheit
Arzt <5.500m
Apotheke <7.500m
Klinik <7.000m
Krankenhaus <7.000m

Kinder & Schulen
Schule <4.000m
Kindergarten <6.500m
Höhere Schule <7.500m

Nahversorgung
Supermarkt <7.000m
Bäckerei <4.000m

Sonstige
Bank <6.000m
Geldautomat <6.000m
Polizei <7.000m
Post <9.000m

Verkehr
Bus <1.500m
Bahnhof <8.500m

Angaben Entfernung Luftlinie / Quelle: OpenStreetMap
Beschreibung weiterlesen

Lageplan

5133 Gilgenberg am Weilhart | Braunau am Inn

Lade...
Ulrich-Peter Josten

Ulrich-Peter Josten

RE/MAX Innova

Lade...

Fotomix

Luftansicht_01 Luftansicht_02 Luftansicht_03 Luftansicht_04 Vermessungsurkunde Brunner Einzel GstNr. 248_2