NEU - BAUTRÄGER-PROJEKT IN LIESING - ECKLAGE - 26 WOHNUNGEN!

Investment zum Kauf in 1230 Wien - Kaufpreis: 1.390.000 € / Objektnummer: 4832/1599
Ausstattung:

Preisinformationen

Kaufpreis:
1.390.000 €
Vermittlungsprovision:
Ja
Provision:
3% des Kaufpreises zzgl. 20% USt.

Fakten

Objektnummer:
4832/1599
Objekttyp:
Investment
Wohnfläche:
1.215 m²
Grundstücksfläche:
606 m²
Verfügbarkeit:
Verfügbar

Beschreibung

Wir präsentieren Ihnen ein interessantes Bauträger-Projekt in 1230 Wien (Liesing - Siebenhirten - Nähe Vösendorf)!

- Eckgrundstück mit 506 m² GFL

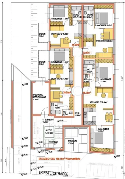
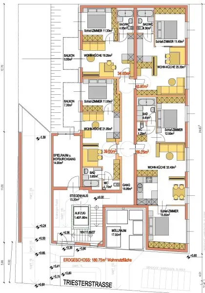
- Bebauungs-Studie vorhanden: erzielbare WFL 1.215 m²

- 26 Wohnungen (35 - 85 m²)

- 10 PKW-Stellplätze im KG

- alle Anschlüsse vorhanden

Kaufpreis: VB € 1,390.000,-

Die Bebauungs-Studie (siehe Anhang) wurde bereits mit der MA19 positiv besprochen!

Bei Interesse freuen wir uns über Ihre Kontaktaufnahme!

Der Vermittler ist als Doppelmakler tätig.
Beschreibung weiterlesen

Lage und Verkehrsanbindung

Vösendorf

Grundrisse

Lageplan

1230 Wien | Wien 23., Liesing

Lade...
Robert W. Pabisch

Robert W. Pabisch
Geschäftsführer

S+R KERN Immobilien GmbH

Lade...

Fotomix

Bild 1 Bild 2