Bauträgergrundstück mit Einreichplan (11WE) TAUSCHMODELL möglich.

Grundstück zum Kauf in 2326 Maria Lanzendorf - Kaufpreis: 1.200.000 € / Objektnummer: 2168
Ausstattung:

Preisinformationen

Kaufpreis:
1.200.000 €
Preisinfos:
Fixpreis
Provision:
3.00 %

Fakten

Objektnummer:
2168
Objekttyp:
Grundstück
Grundstücksfläche:
879 m²
Verfügbarkeit:
Verfügbar

Beschreibung

EXPOSÉ: Bauträger-Juwel vor den Toren Wiens – 11 Wohneinheiten mit aktueller Baugenehmigung

Objekthighlights

* Grundstücksfläche: ca. 880 m² in exklusiver Zentrallage.
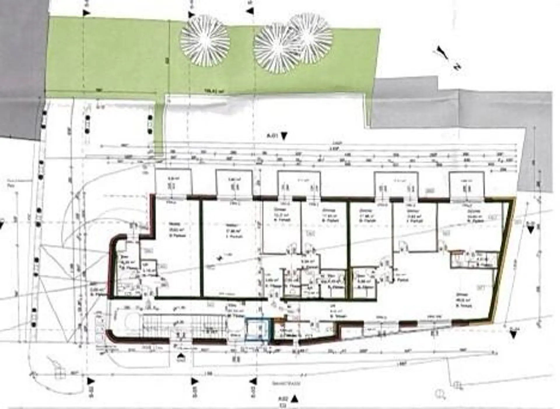
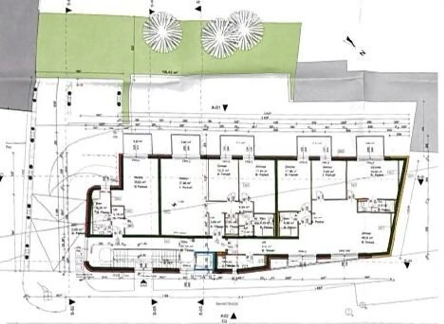
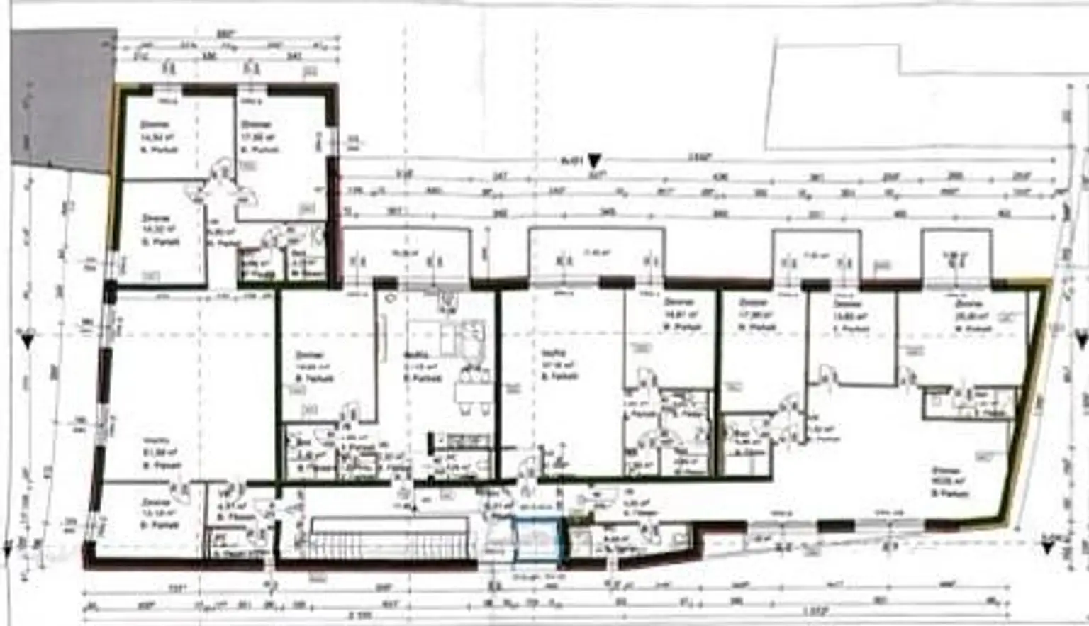
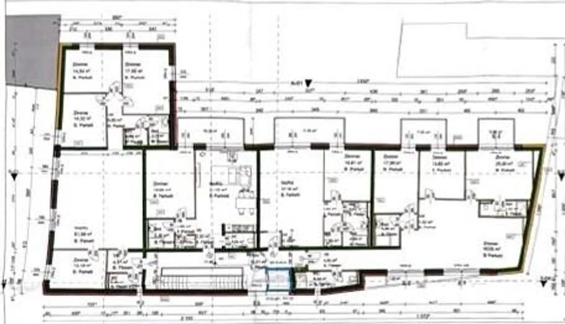
* Projektstatus: Einreichplan für 11 Wohnungen und 22 Tiefgaragenplätze bereits vorhanden.
* Lage: Top-Infrastruktur in Maria Lanzendorf (Bezirk Bruck an der Leitha), unmittelbare Nähe zu Wien.
* Mobilität: Hervorragende Anbindung durch den Bahnhof Maria Lanzendorf [https://bahnhof.oebb.at/de/niederoesterreich/maria-lanzendorf] (ÖBB) und regionale Buslinien.
* Kaufpreis: € 1.200.000,- (für Bauträger).

-------------

Objektbeschreibung

Dieses ebene, ca. 880 m² große Grundstück stellt eine seltene Gelegenheit für Bauträger dar, ein bereits weit fortgeschrittenes Wohnbauprojekt in einer der gefragtesten Zuzugsgemeinden südlich von Wien zu realisieren. Die vorliegende Planung sieht eine effiziente Ausnutzung des Geländes mit 11 modernen Wohneinheiten vor. Besonders hervorzuheben ist das großzügige Stellplatzverhältnis mit 22 Tiefgaragenplätzen, was den heutigen Komfortansprüchen im gehobenen Wohnsegment voll entspricht.

Lage & Infrastruktur

Maria Lanzendorf vereint die Vorzüge des ländlichen Grüngürtels mit der unmittelbaren Nähe zur Metropole Wien.

* Verkehrsanbindung: Der ÖBB-Bahnhof ist in wenigen Gehminuten erreichbar und bietet eine schnelle Verbindung zum Wiener Hauptbahnhof. Die Nähe zur S1/A4 ermöglicht zudem eine optimale Erreichbarkeit des Flughafens Wien-Schwechat und des Wiener Stadtgebiets mit dem PKW.
* Versorgung: In direkter Umgebung befinden sich Nahversorger, Gastronomiebetriebe sowie soziale Einrichtungen (Kindergarten, Schulen).
* Umgebung: Exklusive Wohngegend, geprägt von hochwertigen Einfamilienhäusern und kleinen Wohnhausanlagen.

Projektdaten im Überblick

* Grundstücksgröße: 880 m²
* Planung: 11 Wohnungen (optimierte Grundrisse) 
* Parken: 22 Plätze in der hauseigenen Tiefgarage
* Widmung: Bauland-Wohngebiet (BW)
* Verbaubarkeit: Gemäß geltendem Bebauungsplan (bereits im Einreichplan berücksichtigt)

Plan B: Sie renovieren das 2-Familienhaus - Stockhaus und genießen die Lage und den tollen Garten. 

-------------

Kaufpreis & Konditionen

* Kaufpreis: € 1.200.000,-  Der Kauf ist als TAUSCHMODELL möglich. zB. . Erwerb oder Teilerwerb des Grundstückes gegen Geld, der Rest wird gegen Neubau-ETWs abgewickelt. 
* Provision: 3% des Kaufpreises zzgl. 20% USt.
* Verfügbarkeit: Ab sofort

-------------

Grundstück mit Altbestand. Es ist anzunehmen, dass das Haus abgerissen wird und ein großvolumiger Wohnbau errichtet wird. Ein Energieausweis für das Neubauprojekt ist vorhanden. 

Fordern Sie ein umfassendes Exposé an. 

Eine Objektbesichtigung bzw. Grundstücksbegehung ist jederzeit für Sie möglich. 

Der Vermittler ist als Doppelmakler tätig.
Interesse am Maklerberuf?
Informationen beim MAKLERFRÜHSTÜCK
am Samstag, Termin nach Vereinbarung um 10.00 Uhr im RE/MAX Büro Schwechat.
Info: office@remax-vital.at oder 01/70 70 900.
Beschreibung weiterlesen

Dokumente

Lageplan

2326 Maria Lanzendorf | Bruck an der Leitha

Lade...
Wolfgang STERN

Wolfgang STERN

RE/MAX Vital

Lade...

Fotomix

Projekt 11 WE TAUSCHMODELL Sataufnahme Screenshot 2026-04-25 010905 Screenshot 2026-04-25 010944 Bestehendes Althaus 1 Bestehendes Althaus 2