NEU - Beeindruckend aufgeteilte 2 - Zimmer Wohnung inkl. Einbauküche im 23. Wiener Bezirk

Wohnung zur Miete in 1230 Wien - Gesamtmiete: 719,00 € / Objektnummer: 5387/7907
Ausstattung: Barrierefrei Boden Fahrstuhl Wohnküche / offene Küche Bad Kabel/Satelliten-TV Fahrradraum Abstellraum Zentralheizung

Preisinformationen

Gesamtmiete:
719,00 € / Monat
Betriebskosten netto:
140,00 € / Monat
Umsatzsteuer:
65,36 €
Kaution:
3 Bruttomonatsmieten
Provision:
Gemäß Erstauftraggeberprinzip bezahlt der Abgeber die Provision.

Fakten

Objektnummer:
5387/7907
Objekttyp:
Wohnung
Keller Fläche:
2 m²
Wohnfläche:
43,3 m²
Nutzfläche:
43,3 m²
Gesamtfläche:
43,3 m²
Zimmer:
2
Badezimmer:
1
Toilette:
1
Stockwerk:
1
Neubau:
Ja
Zustand:
Gepflegt
Verfügbarkeit:
Verfügbar

Beschreibung

Optimal aufgeteilte 2 - Zimmer Wohnung mit perfekter Infrastruktur!

Highlights der Liegenschaft:
* Personenlift
* Optimale Raumaufteilung
* Einbauküche
* Optimale Infrastruktur 
* Hochwertige Ausführung 

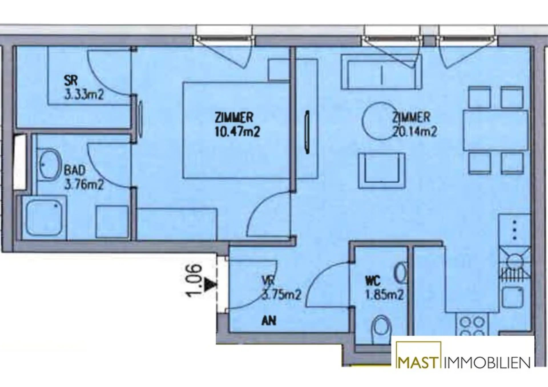
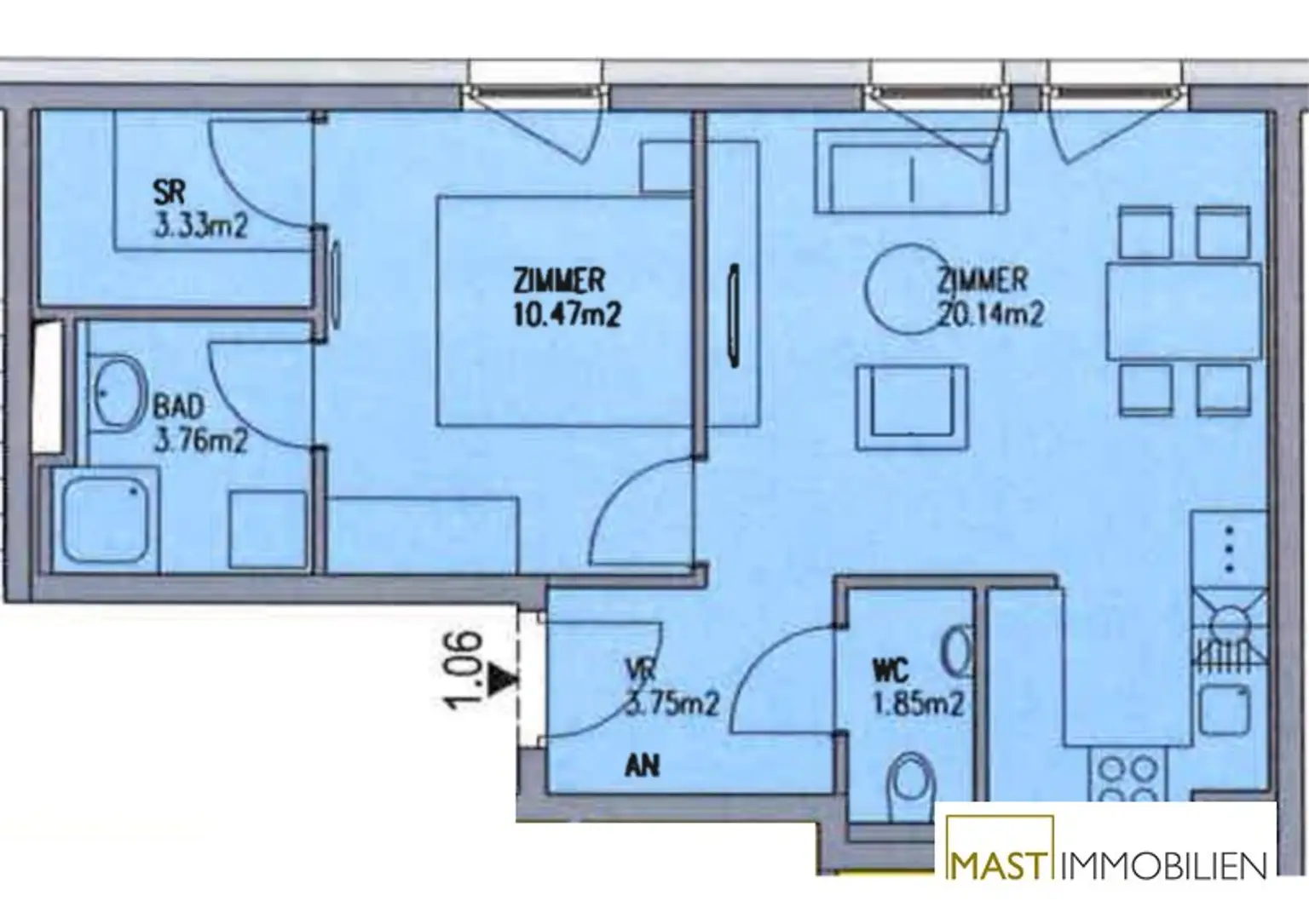
Raumaufteilung:
Nach Eintritt in die Wohnung gelangen Sie in ein Vorzimmer im Ausmaß von ca. 3,75 m² mit ausreichend Platz für Ihre Garderobe. Das modern gestaltete Badezimmer mit Dusche, Waschbecken & WM-Anschluss, ist vom Schlafzimmer aus begehbar. Ebenfalls befindet sich neben dem Schlafzimmer, ein Schrankraum mit ca. 3,33 m² und bietet ausreichend Platz für Ihre Garderobe. Das Schlafzimmer bietet eine Fläche von ca. 10,50 m². Die Wohnküche mit ca. 20,20 m² ist optimal geschnitten (auf dem Grundriss im Inserat ersichtlich) und wurde mit einer Küche inkl. Geräte ausgestattet. Das separat begehbare WC mit ca. 1,85 m² wurde mit einem Waschbecken ausgestattet. Selbstverständlich verfügt die Wohnung über ein Kellerabteil. 

- Vorzimmer
- Wohnküche
- Schlafzimmer
- Schrank-/ Abstellraum 
- sep. WC mit Waschbecken
- Bad mit Dusche 
- Kellerabteil

Infrastruktur:
Zahlreiche Nahversorger wie z.B. Billa befinden sich in fußläufiger Entfernung zur Liegenschaft. Auch Apotheken, Trafik & etc. sind ebenfalls unmittelbar entfernt. 
Die Straßenbahnlinie "60" erreichen Sie binnen von 5-10 Gehminuten.

Ansehen zahlt sich aus, Sie erreichen mich unter 0676 - 342 77 18 oder per mail unter md@mast-immo.at

Ihr Immobilienberater 
Herr Manuel Daniloglu
MAST Immo GmbH

_Kosten:
- Kaution: 3 BMM
- Maklerhonorar: KEINES.
- Befristung: 4 Jahre mit Option auf Verlängerung bei Zustimmung des Vermieters & pünktlicher Zahlung der Miete 
- Beziehbar: nach Absprache da aktuell noch bewohnt_

Es wird auf ein wirtschaftliches Nahverhältnis zwischen Abgeber & Immobilienmakler hingewiesen. 

 

 

Der Immobilienmakler erklärt, dass er – entgegen dem in der Immobilienwirtschaft üblichen Geschäftsgebrauch des Doppelmaklers – einseitig nur für den Vermieter tätig ist.

Infrastruktur / Entfernungen

Gesundheit
Arzt 500m
Apotheke 500m
Klinik 500m
Krankenhaus 1.000m

Kinder & Schulen
Schule 500m
Kindergarten 1.000m
Universität 6.000m
Höhere Schule 7.500m

Nahversorgung
Supermarkt 500m
Bäckerei 1.500m
Einkaufszentrum 2.000m

Sonstige
Geldautomat 1.000m
Bank 1.000m
Post 1.000m
Polizei 2.000m

Verkehr
Bus 500m
U-Bahn 4.000m
Straßenbahn 500m
Bahnhof 2.000m
Autobahnanschluss 3.500m

Angaben Entfernung Luftlinie / Quelle: OpenStreetMap
Beschreibung weiterlesen

Lage und Verkehrsanbindung

Liesing, Perchtoldsdorfer Heide

Perchtoldsdorf, Mödling

Energieeffizienz

HWB:
32,23 kWh/(m²*a)
HWB Klasse:
B
fGEE:
0,72
fGEE Klasse:
A
Energieausweisart:
Energiebedarfs-ausweis
Gültig bis:
19.11.2023

Grundriss

Lageplan

1230 Wien | Wien 23., Liesing

Lade...
Manuel Daniloglu

Manuel Daniloglu
Immobilienberater

MAST Immo GmbH

Anrufen
Lade...

Fotomix

Bild 1 Bild 2 Bild 3 Bild 4 Bild 5 Bild 6 Bild 7 Bild 8 Bild 9 Bild 10 Bild 11