NEU - Befristet vermietetes Geschäftslokal/Werkstatt in Toplage Nahe der Schottentor - Ideales Investment

Einzelhandel zum Kauf in 1090 Wien - Kaufpreis: 335.000 € / Objektnummer: 5735/3430
Ausstattung: Boden Abstellraum

Preisinformationen

Kaufpreis:
335.000 €
Kaufpreis/m²
4.277,32 €
Betriebskosten netto:
266,44 € / Monat
Vermittlungsprovision:
Ja
Provision:
3% des Kaufpreises zzgl. 20% USt.

Fakten

Objektnummer:
5735/3430
Objekttyp:
Einzelhandel
Nutzfläche:
78,32 m²
Toilette:
1
Altbau:
Ja
Zustand:
Gepflegt
Verfügbarkeit:
Verfügbar

Beschreibung

BEFRISTET VERMIETETE GEWERBEFLÄCHE ALS INVESTMENT IN TOPLAGE IM 9. BEZIRK!

Die Geschäftsfläche mit tollem Gewölbe liegt im Erdgeschoss in einem klassischen Wiener Zinshaus, direkt im Geschäftsviertel des begehrten 9. Bezirkes  bietet diese Immobilie die ideale Grundlage mit viel Potential für ein Verkaufslokal oder Werkstatt.

Das Erdgeschosslokal in einem gepflegten Gebäude punktet mit einer flexiblen Raumgestaltung. Weiters ist eine Toilette im rückwertigen Teiles des Lokales vorhanden, ebenso 2 Lagerräume.

Die Lage ist unschlagbar, direkt auf der Währinger Straße - Nähe Votivkireche. Umgeben von beliebten Lokalen und Geschäften zieht diese Gegend zahlreiche Besucher und Passanten an. Die Straßenbahnlinie befindet sich direkt vor der Tür. Auch die U-Bahn-Station „Schottentor“ ist in wenigen Gehminuten erreichbar.

Tolle gute Gelegenheit für langfristiges Investment, da das Lokal sehr gut vermietet ist. 

Mieteinnahmen: 1.400,22 € monatlich

Jahresmiete netto: rd. 16.803,00 €  (Rendite 5,02%)

Vermietet bis 31.07.35

 

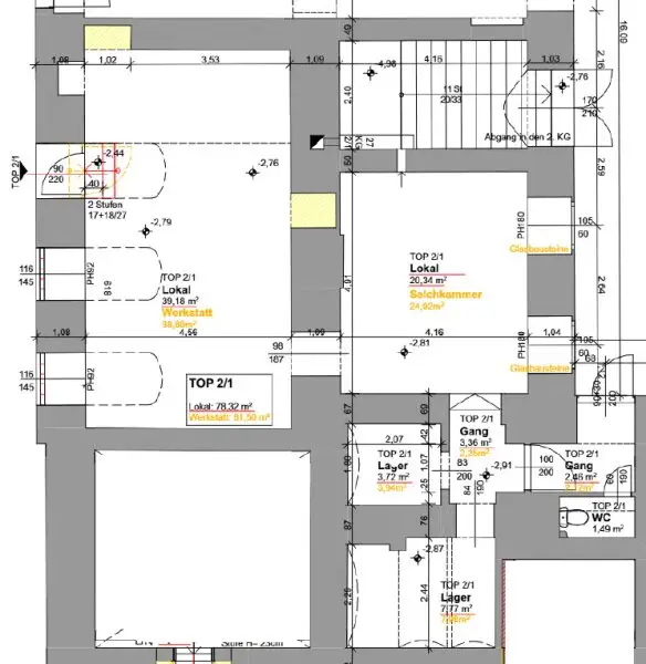
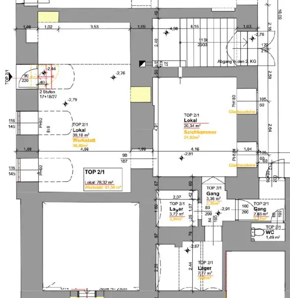
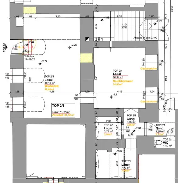
Raumaufteilung:

- 2 Räume

- WC

- Lagerräume

 

 

Öffentliche Verkehrsmittel:

- U2-Station "Schottentor"

- Straßenbahnlinien 1, 40, 41, 

 

_Für eine unverbindliche Besichtigung:_

Wir freuen uns Ihnen das Objekt jederzeit persönlich vorzustellen zu dürfen.

 

_Nebenkosten: _

* 3 Bruttomonatsmieten Kaution
* 3 Bruttomonatsmieten Provision zzgl. 20% USt. 
* Vergebührung

Auf ein wirtschaftliches Naheverhältnis mit dem Abgeber, bedingt durch regelmäßige Geschäftsbeziehungen, wird hingewiesen.
 

_Maklervereinbarung: _Wir ersuchen um Verständnis, dass wir bei Anfragen zur Objektadresse, bzw. Besichtigungstermin aufgrund neuer gesetzlicher Bestimmungen Unterlagen erst dann zusenden können, wenn Sie vorab bestätigen, dass Sie unser sofortiges Tätigwerden wünschen und über Ihre Rücktrittsrechte aufgeklärt wurden. Sie bekommen nach Ihrer schriftlichen Anfrage mit vollständiger Angabe des Namens, Anschrift und Telefonnummer ein E-Mail, in dem Sie diese Punkte bestätigen müssen.

_Haftungsausschluss:  _Wir weisen darauf hin, dass sämtliche Daten im vorliegenden Angebot sowie die von unserem Büro an Sie weitergegebenen Auskünfte, vom Eigentümer der Immobilie zur Verfügung gestellt wurden. Ebenso sind Informationen von Dritten (z.B. behördliche Informationen) eingeholt worden, auch für diese können wir unsererseits keinerlei Haftung für deren uneingeschränkte Richtigkeit übernehmen.

Wir weisen darauf hin, dass zwischen dem Vermittler und dem zu vermittelnden Dritten ein familiäres oder wirtschaftliches Naheverhältnis besteht.

Infrastruktur / Entfernungen

Gesundheit
Arzt 250m
Apotheke 250m
Klinik 500m
Krankenhaus 750m

Kinder & Schulen
Schule 500m
Kindergarten 750m
Universität 250m
Höhere Schule 750m

Nahversorgung
Supermarkt 250m
Bäckerei 250m
Einkaufszentrum 2.000m

Sonstige
Geldautomat 250m
Bank 250m
Post 500m
Polizei 500m

Verkehr
Bus 250m
U-Bahn 500m
Straßenbahn 250m
Bahnhof 500m
Autobahnanschluss 2.500m

Angaben Entfernung Luftlinie / Quelle: OpenStreetMap
Beschreibung weiterlesen

Lage und Verkehrsanbindung

Währinger Straße, Schottentor

Schottentor

Energieeffizienz

HWB:
211,9 kWh/(m²*a)
HWB Klasse:
F
fGEE:
2,91
fGEE Klasse:
E
Energieausweisart:
Energiebedarfs-ausweis
Gültig bis:
11.09.2028

Grundriss

Lageplan

1090 Wien | Wien 9., Alsergrund

Lade...
Christina Carlsen

Christina Carlsen
Immobilienberaterin

Thurner Realitäten GmbH

Anrufen
Lade...

Fotomix

Bild 1 Bild 2 Bild 3 Bild 4