NEU - Bel Etage mit Wintergarten & 2 Eingängen– nur 3 Wohnungen im Haus | Repräsentatives Wohnen auf 133 m²

Wohnung zum Kauf in 1180 Wien - Kaufpreis: 1.100.000 € / Objektnummer: 296853
Ausstattung: Boden Fahrstuhl Wohnküche / offene Küche Bad Abstellraum Etagenheizung Fußbodenheizung Terrasse

Preisinformationen

Kaufpreis:
1.100.000 €
Kaufpreis/m²
8.272,54 €
Vermittlungsprovision:
Ja
Provision:
3% des Kaufpreises zzgl. 20% USt.

Fakten

Objektnummer:
296853
Objekttyp:
Wohnung
Terrasse:
1
Wohnfläche:
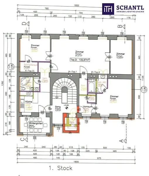
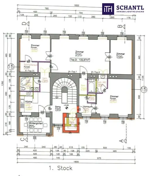
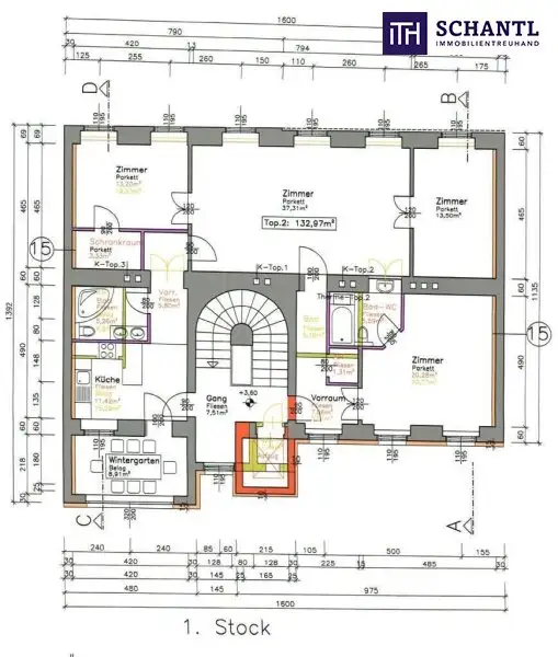
132,97 m²
Nutzfläche:
132,97 m²
Zimmer:
4,5
Badezimmer:
2
Altbau:
Ja
Verfügbarkeit:
Verfügbar

Beschreibung

Bel Etage mit Wintergarten & 2 Eingängen– nur 3 Wohnungen im Haus | Repräsentatives Wohnen auf 133 m² 

_Exklusives Wohnen auf höchstem Niveau – eine von nur drei Etagenwohnungen_

-------------

HIGHLIGHTS AUF EINEN BLICK

* Nur 3 exklusive Wohnungen im gesamten Haus – eine pro Etage
* Repräsentatives Entree, prachtvolles Stiegenhaus sowie modern verglaster Lift mit Blick ins Grüne
* Ca. 133 m² Wohnfläche in klassischer Bel Etage
* Repräsentative Altbauwohnung mit herrschaftlichem Charakter
* 4 Zimmer, 2 Bäder + Schrankraum + separate Küche + Wintergarten
* Stilvoller, verglaster Wintergarten als besonderes Highlight
* Stuckdecken, Fußbodenheizung & hochwertiges Echtholzparkett
* Großzügige Raumwirkung mit klassischer Altbau-Eleganz
* Zwei separat zugängliche Eingangsbereiche
* Ideal für Wohnen & Arbeiten oder flexible Nutzung
* Möglichkeit zur Teilung in zwei unabhängige Einheiten
* Ein Zuhause für höchste Ansprüche an Stil, Raum und Wohnqualität
* Ruhige Grünlage bei gleichzeitig ausgezeichneter Infrastruktur
* Absolute Rarität in einer stilvollen Gründerzeitvilla

In einer stilvollen Gründerzeitvilla mit nur drei exklusiven Wohneinheiten – eine pro Etage – präsentiert sich diese außergewöhnliche Wohnung im 1. Obergeschoss als klassische Bel Etage mit eindrucksvollem Altbaucharme und repräsentativer Wohnqualität.

Auf rund 133 m² entfaltet sich ein Wohnkonzept, das Großzügigkeit, Eleganz und vielseitige Nutzungsmöglichkeiten auf besondere Weise miteinander verbindet. Diese Etage verkörpert den klassischen Wiener Altbau in seiner schönsten Form – mit stilvollen Proportionen, herrschaftlicher Atmosphäre und fein ausgewählten Details.

Bereits beim Betreten der Wohnung wird der besondere Charakter spürbar: kunstvolle Stuckdecken, elegante Kristallluster und hochwertiges Echtholzparkett verleihen den Räumen eine zeitlose, repräsentative Ausstrahlung. Die Wohnung verfügt über insgesamt vier Zimmer, zwei Badezimmer, einen Schrankraum sowie eine separate Küche und bietet damit viel Platz für anspruchsvolles Wohnen auf hohem Niveau.

Ein besonderes architektonisches Highlight ist der verglaste Wintergarten, der dem Wohnkonzept eine zusätzliche Dimension verleiht und sich ideal als stilvoller Rückzugsort, Lesezimmer oder inspirierender Arbeitsbereich eignet.

Besonders hervorzuheben sind die zwei gegenüberliegenden, separat zugänglichen Eingangsbereiche, die dieser Wohnung eine außergewöhnliche Flexibilität verleihen. Dadurch eignet sich die Wohnung nicht nur als elegante Familienresidenz, sondern auch hervorragend für die Kombination aus Wohnen und Arbeiten – etwa mit repräsentativem Bürotrakt, Atelier oder separatem Gästebereich. Auch eine mögliche Teilung in zwei unabhängige Einheiten eröffnet zusätzliche Perspektiven.

Diese Wohnung ist mehr als nur ein Zuhause – sie ist ein Ort für Menschen, die Wert auf Stil, Großzügigkeit und außergewöhnliche Wohnqualität legen.

Eine seltene Gelegenheit: Nur drei Wohnungen im Haus – und eine davon kann Ihre sein. Vereinbaren Sie noch heute einen Besichtigungstermin.

 

Kaufpreis: €1.100.000

Bezug: sofort verfügbar

 

Weitere Informationen

Hat diese Immobilie Ihr Interesse geweckt? Ich freue mich auf Ihre Anfrage! Für weitere Fragen stehe ich Ihnen gerne jederzeit zur Verfügung! Lediglich Anfragen mit vollständigem Namen, einer Telefonnummer sowie einer E-Mail-Adresse können unsererseits bearbeitet werden. Die von uns bereitgestellten Informationen beruhen auf Angaben des Abgebers. Für die Richtigkeit und Vollständigkeit der Angaben kann keine Gewähr bzw. Haftung übernommen werden. Änderungen vorbehalten!

www.schantl-ith.at

 

Bei konkretem Interesse senden wir Ihnen sehr gerne weiterführende Dokumente zu.

Unser Service für Sie: Wenn Sie sich für diese Immobilie entschieden haben, begleiten wir Sie gerne vom Kaufanbot weg inkl. Klärung von Sonderwünschen und der Vertragsunterzeichnung über die Wohnungsübergabe bis hin zu diversen Ummeldungen wie Strom und Gas. Entsprechende Formulare oder auch Meldezettel stellen wir Ihnen sehr gerne zur Verfügung.

Gerne unterstützen wir Sie auch bei der Finanzierung Ihres Traumobjekts und finden mit unseren langjährigen Partnern die besten Konditionen für Sie.

Vereinbaren Sie noch heute einen Termin, wir beraten Sie gerne!

Wir weisen darauf hin, dass zwischen dem Vermittler und dem zu vermittelnden Dritten ein familiäres oder wirtschaftliches Naheverhältnis besteht.

Der Vermittler ist als Doppelmakler tätig.

Infrastruktur / Entfernungen

Gesundheit
Arzt <250m
Apotheke <500m
Klinik <750m
Krankenhaus <1.750m

Kinder & Schulen
Schule <250m
Kindergarten <500m
Universität <1.000m
Höhere Schule <500m

Nahversorgung
Supermarkt <250m
Bäckerei <500m
Einkaufszentrum <1.250m

Sonstige
Geldautomat <500m
Bank <500m
Post <750m
Polizei <750m

Verkehr
Bus <250m
U-Bahn <1.250m
Straßenbahn <250m
Bahnhof <250m
Autobahnanschluss <3.000m

Angaben Entfernung Luftlinie / Quelle: OpenStreetMap
Beschreibung weiterlesen

Lage und Verkehrsanbindung

Die Umgebung besticht durch viel Grün und eine hohe Lebensqualität.
Nur 15 Gehminuten entfernt befindet sich die Amadeus International School Vienna.
Die Anbindung an den öffentlichen Verkehr ist ausgezeichnet: Straßenbahnlinie 40, 41 Bus 10A und die S-Bahn-Station Gersthof sind zu Fuß schnell erreichbar.
Einkaufsmöglichkeiten, Restaurants und Parks befinden sich in unmittelbarer Nähe.
Die ruhige und sichere Wohngegend bietet ideale Voraussetzungen für gehobenes Wohnen.
Diese Immobilie verbindet urbanes Wohnen mit hohem Freizeitwert. Vereinbaren Sie noch heute einen Besichtigungstermin und überzeugen Sie sich selbst von dieser außergewöhnlichen Wohnung in einer der besten Lagen Wiens!

Gersthof

Energieeffizienz

HWB:
78,37 kWh/(m²*a)
HWB Klasse:
C
Energieausweisart:
Energiebedarfs-ausweis

Grundrisse

Lageplan

1180 Wien | Wien 18., Währing

Lade...
Hanna Herzenstein

Hanna Herzenstein
Immobilienvermittlung

Schantl ITH Immobilientreuhand GmbH

Lade...

Fotomix

Bild 1 Bild 2 Bild 3 Bild 4 Bild 5 Bild 6 Bild 7 Bild 8 Bild 9 Bild 10 Bild 11 Bild 12 Bild 13 Bild 14 Bild 15 Bild 16 Bild 17 Bild 18 Bild 19 Bild 20 Bild 21 Bild 22 Bild 23