NEU - Bereit für das nächste Kapitel: Solides Einfamilienhaus mit Perspektive

Haus zum Kauf in 3003 Gablitz - Kaufpreis: 550.000 € / Objektnummer: 7271
Ausstattung: Boden Bad Gäste-WC Garage Parkplatz Abstellraum Zentralheizung Balkon Garten

Preisinformationen

Kaufpreis:
550.000 €
Vermittlungsprovision:
Ja
Provision:
3% des Kaufpreises zzgl. 20% USt.

Fakten

Objektnummer:
7271
Objekttyp:
Haus
Balkon:
3
Wohnfläche:
197 m²
Nutzfläche:
216 m²
Grundstücksfläche:
655 m²
Gartenfläche:
517 m²
Zimmer:
7
Badezimmer:
2
Toilette:
2
Baujahr:
1965
Neubau:
Ja
Verfügbarkeit:
Verfügbar
Verfügbar ab:
ab sofort

Beschreibung

Dieses voll unterkellerte Einfamilienhaus wurde seinerzeit mit Bedacht und Dauerhaftigkeit errichtet. Die Zonen sind großzügig angelegt, der Grundriss erlaubt sowohl eine klassische Familiennutzung als auch die behutsame Modernisierung in ein elegantes Wohnhaus mit modernem Komfort.

 

/ Raumabfolge

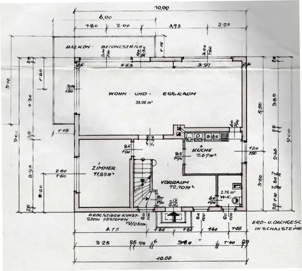
EG ( ca. 73,44 m²)

* Vorzimmer ( 12,10 m²)
* WC ( 2,76 m²)
* Küche ( 7,67 m²)
* Wohnzimmer mit Balkon ( 39,06 m²)
* Office / Gästezimmer ( 11,85 m²)

OG ( ca. 73,05 m²)

* Vorzimmer ( 13,7 m²) mit Balkon
* Bad mit WC ( 6,96 m²)
* ein Schlafzimmer mit begehbarer Garderobe ( 12,32 + 4,77 m²)
* zwei weitere Schlafzimmer mit Zugang zum Balkon ( 17,2 + 16,56 m²)
* Abstellraum ( 1,54 m²)

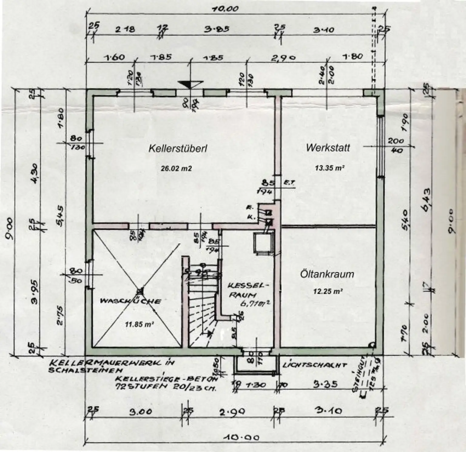
UG ( 70,17 m²)

* Kellerstüberl / 2. Wohnzimmer ( 26,02 m²)
* Werkstatt / Zimmer / Hobby-Raum ( 13,35 m²)
* Wirtschaftsraum / 2. Bad mit Dusche ( 11,85 m²)
* Öltankraum ( 12,25 m²)
* Kesselraum ( 6,7m²)

Das helle Wohnzimmer (Südwestorientierung) bietet einen Zugang zum Balkon und somit einen schönen Gartenblick. Je nach Adaptierung, stehen 4-5 Schlafzimmer zur Verfügung, drei davon mit Zugang zu Balkon bzw. Terrasse. Sämtliche Räumlichkeiten sind durch die Ost-/Süd/-Westorientierung sehr gut belichtet und hell. Durch den zweiten Eingang im Untergeschoß besteht die Möglichkeit das Haus in zwei Wohneinheiten zu teilen.

Eine Garage ist direkt an das Haus angebunden und bietet nicht nur Platz für ein Fahrzeug, sondern auch Stauraum für Garten- oder Handwerksgeräte.

Ein weiterer Lagerkeller ist vom Garten aus begehbar.

/ Zustand und Potential

In den Wohn- und Schlafräumlichkeiten befindet sich ein Parkettboden auf Estrich mit Trittschalldämmung, der Boden in den Nassräumen, sowie im Kellerstüberl ist verfliest. Auf den Balkonen befindet sich ein bemalter Estrich, die Terrassen sind mit Steinplatten belegt. Dächer, tragende Wände und Grundstruktur präsentieren sich mit soliden Merkmalen.

Haustechnik und Oberflächen sind modernisierungsbedürftig. Für Käufer mit Sinn für nachhaltige Sanierung eröffnet sich die Chance, historische Proportionen mit zeitgemäßer Technik zu verbinden. Möglich sind u. a. die Öffnung einzelner Raumachsen für ein großzügigeres Wohngefühl, hochwertige Nassraumsanierungen, sowie die Integration effizienter Energietechnik. 

/ Monatliche Kosten

Die Gemeindeabgaben betragen quartalsweise EUR 355,59,-.

/ Lage

Das Haus liegt in einer angesehenen, ruhigen Wohnlage in der Wienerwald-Region Gablitz. Die Nachbarschaft ist geprägt von Einfamilienhäusern und vereinzelten Villen, umgeben von altem Baumbestand, Feldern und kleineren Waldparzellen — kurze Spazierwege führen in naturnahe Rückzugsorte. Die Lage bietet eine behagliche Balance zwischen ländlicher Stille und der unmittelbaren Nähe zur Grundversorgung, sowie Fachmarktzentren und ein Shopping Center in 5-10 Autominuten Entfernung. Zwei Volksschulen sind fünf Autominuten entfernt, zwei Kindergärten, sowie diverse Vereine befinden sich ebenso in der Ortschaft. 

/ Besonderheiten

* Regionale Freizeitanbindung: Spazier- und Wanderwege, Reit- und Radwege in der näheren Umgebung; kleinere Naherholungsgebiete erreichen Sie ohne innerstädtische Verkehrsbelastung.
* Lokales Gemeindeleben: traditionelle Veranstaltungen, Markttage und kulturbetonte Initiativen prägen die Nachbarschaft
* Mit relativ überschaubarem Eingriff lassen sich moderne Standards (Energie, Bad, Küche) einbinden
* Gute Belichtung aus allen Himmelsrichtungen, besonders nachmittags sehr stimmungsvoller Garten

 

/ Kompakt

* Baujahr: 1965
* Nutzfläche: ca. 216 m²
* Grundstück: privater Garten (pflegeleicht bis naturnah zu gestalten)
* Nutzung: Einfamilienhaus
* Warmwasserversorgung und Heizung: zentral mittels Gasbrennwertkessel (BJ 2020)

Hinweis/ Disclaimer: Die Möbel sind digital und mit KI erstellt worden.

 

Wir weisen darauf hin, dass zwischen dem Vermittler und dem zu vermittelnden Dritten ein familiäres oder wirtschaftliches Naheverhältnis besteht.

Der Vermittler ist als Doppelmakler tätig.

Infrastruktur / Entfernungen

Gesundheit
Arzt <2.000m
Apotheke <2.000m
Klinik <9.500m

Kinder & Schulen
Schule <2.000m
Kindergarten <500m
Universität <8.000m

Nahversorgung
Supermarkt <1.000m
Bäckerei <2.500m
Einkaufszentrum <7.000m

Sonstige
Bank <2.500m
Geldautomat <2.500m
Post <2.000m
Polizei <2.000m

Verkehr
Bus <500m
Bahnhof <5.000m
Straßenbahn <10.000m
Autobahnanschluss <7.500m
Flughafen <10.000m

Angaben Entfernung Luftlinie / Quelle: OpenStreetMap
Beschreibung weiterlesen

Energieeffizienz

HWB:
237 kWh/(m²*a)
HWB Klasse:
F
fGEE:
3,56
fGEE Klasse:
F
Energieausweisart:
Energiebedarfs-ausweis
Gültig bis:
12.02.2030

Grundrisse

Lageplan

3003 Gablitz | Sankt Pölten (Land)

Lade...
Sabrina Ritter

Sabrina Ritter
Wohnimmobilien Miete

Spiegelfeld Immobilien GmbH

Lade...

Fotomix

Bild 1 Bild 2 Bild 3 Bild 4 Bild 5 Bild 6 Bild 7 Bild 8 Bild 9 Bild 10 Bild 11 Bild 12 Bild 13 Bild 14 Bild 15 Bild 16 Bild 17 Bild 18 Bild 19 Bild 20 Bild 21 Bild 22 Bild 23 Bild 24 Bild 25 Bild 26 Bild 27 Bild 28 Bild 29 Bild 30