NEU - BESTLAGE in INNSBRUCK: Wunderschönes ALTBAU-Büro mitten in der Innenstadt ab April 2026 zu mieten!

Büro zur Miete in 6020 Innsbruck / Objektnummer: 4218
DESIGNERMÖBEL
DESIGNERMÖBEL

Preisinformationen

Gesamtmiete (exkl. USt.):
1.464,00 € / Monat
Kaution:
3 Bruttomonatsmieten
Vermittlungsprovision:
Ja
Provision:
1 Bruttomonatsmiete zzgl. 20% USt.

Fakten

Objektnummer:
4218
Objekttyp:
Büro
Nutzfläche:
66 m²
Badezimmer:
1
Toilette:
1
Stockwerk:
3
Verfügbarkeit:
Verfügbar

Beschreibung

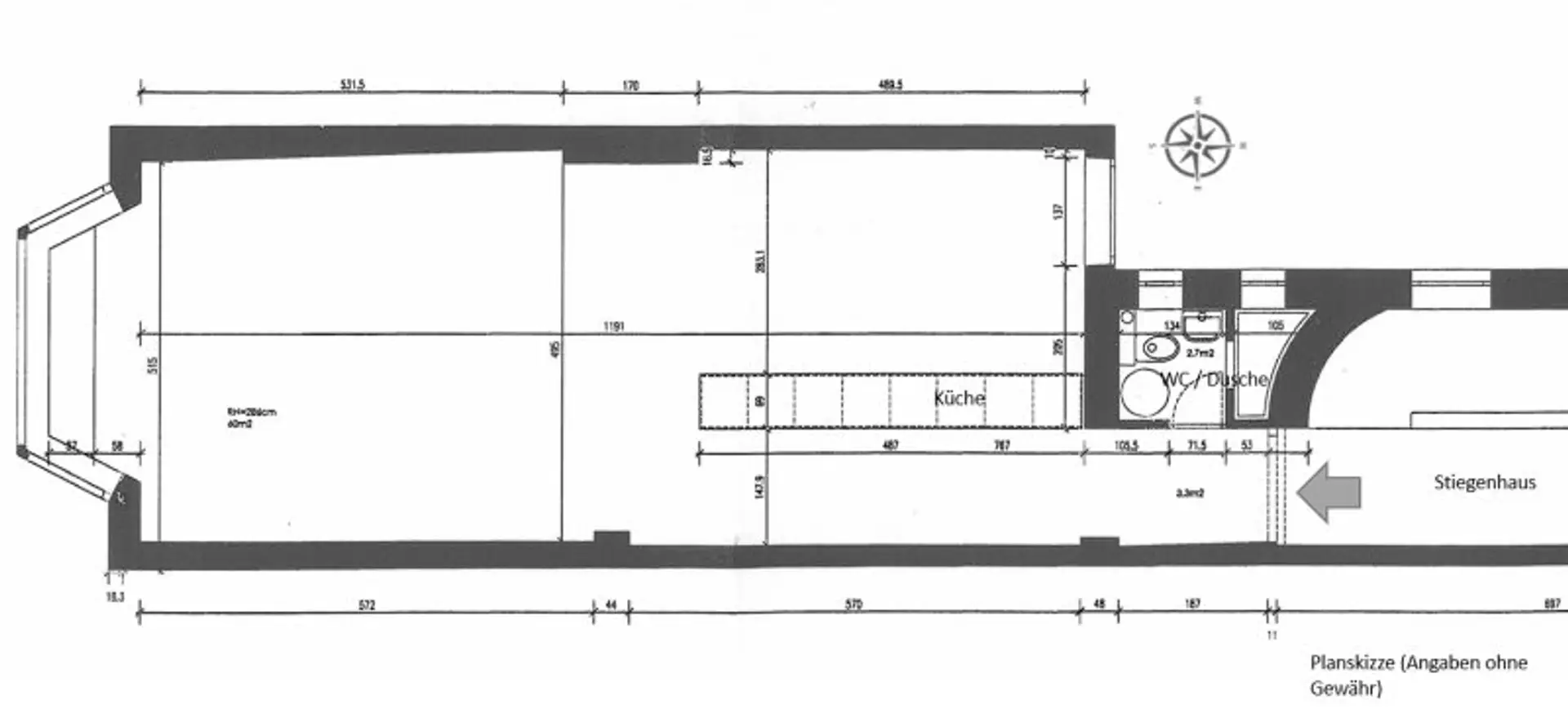
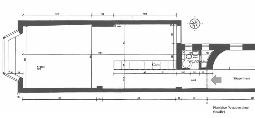
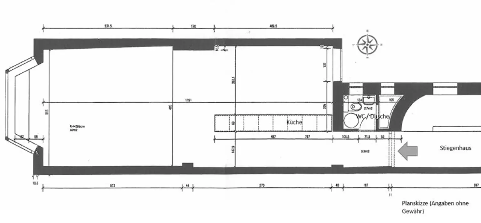
Mitten in der INNENSTADT: ATTRAKTIVES, helles ca. 66m² großes Büro in repräsentativer Lage von Innsbruck ab April zu mieten! 

_Die hier ab April 2026 zur Vermietung stehende hochwertige Bürofläche mit LOFT-CHARAKTER befindet sich im 3.Stock eines eleganten Jahrhundertwendehauses zentral gelegen in der Innenstadt von Innsbruck! _

Die ca. 66m² große, West-/Ost ausgerichtete Gewerbefläche besticht durch große Fensterfronten und viel Tageslicht. Die zeitlos schöne Küche* inkl. neuwertiger Markengeräte (_Kühlschrank, Backrohr, Ceran-Kochfeld, Geschirrspüler_) ist _elegant verbaut_ in den schwarzen DESIGNERMÖBELN aus MDF-Platten, welche im Preis inkludiert sind. Des Weiteren überzeugt das schöne Büro im LOFT-STIL mit einem robusten VOLLHOLZ-Industrieboden und bündig eingefrästen Aluminium-Kabelkanälen mit Steckdosen und LAN-Dosen. Zudem gibt es auch noch ein gepflegtes Badezimmer mit Dusche, WC und Waschbecken. 

Lagebeschreibung: _Das Büro befindet sich sehr gut erreichbar in der Maria-Theresien-Straße 10 inmitten der Innenstadt von Innsbruck!_ _-> Die Alpenhauptstadt Innsbruck steht für Vielfalt und Abwechslung: Tradition und Moderne, Kultur und Sport, imposante Bergwelt und pulsierendes Stadtleben, dies alles bietet Ihnen die Stadt direkt am Inn. In unmittelbarer Umgebung des zur Miete stehenden Büros befinden sich öffentliche Verkehrsmittel, Restaurants, Garagen, Einkaufsmöglichkeiten, etc..  _

 

Wichtigste Informationen im Überblick:

- Repräsentatives Jahrhundertwendehaus (Bj. 1908)

- Helle Bürofläche mit ca. 66 m² 

- 3.Stock (OHNE LIFT)

- moderne Küche* mit neuwertigen Geräten: Kühlschrank, Backrohr, Ceran-Kochfeld, Geschirrspüler

- im Mietpreis inkludiert: Designermöbel aus komplett schwarzen MDF-Platten

- Bodenoberfläche: robuster VOLLHOLZ-Industrieboden

- Bad mit DUSCHE

- Gas-Zentralheizung (Techem-Ablesung)

- bündig eingefräste Aluminium-Kabelkanäle mit Steckdosen und LAN-Dosen, Telekom-Anschluss

- Warmwasserbereitung mit Elektroboiler

- perfekte Infrastruktur (Bus, Autobahnanschluss, Fahrradweg etc.)

- _Akontozahlung für Betriebskosten und Heizkosten (Netto): EUR 180,-_

_- MIETBEGINN: 01.04.2026_

GESAMTMIETE INKL. BETRIEBSKOSTEN: EUR 1.464,- BRUTTO 

_monatlich EUR 1.040,- netto_

_zuzüglich EUR 180,- netto Akontozahlung für Betriebskosten und Heizkosten_

_zuzüglich 20% Umsatzsteuer,_

_insgesamt sohin derzeit monatlich EUR 1.464,- brutto._

 

NEBENKOSTEN/Konditionen:

Kaution: 3 BMM (nicht vinkuliertes Sparbuch oder unbefristete Bankgarantie)
Befristung: 5 Jahre mit der OPTION zur Verlängerung
Provision: 1 BMM zzgl. 20 % USt 

Vertragserrichtungskosten: 1 BMM zzgl. 20 % USt 

 

 

*wird prekaristisch überlassen und ist mieterseitig instand zuhalten

 

Wir bitten Sie um Verständnis, dass wir unserer Nachweispflicht nachkommen müssen und wir Anfragen nur unter Angabe der vollständigen Kontaktdaten (Name, Adresse, Telefonnummer, Email) beantworten können.

 

 

Ihre Ansprechperson:

Stephanie Eisenkölbl, MSc.

SAGENTUS Immobilien

Tel: +43(0)678-1254029

eisenkoelbl@sagentus.at

www.sagentus.at [http://www.sagentus.at/]

 

Dieses Angebot bieten wir Ihnen im Auftrag der Eigentümerseite unverbindlich und freibleibend an. Allfällige Änderungen, Irrtümer, Satz- und Druckfehler vorbehalten. Alle Angaben sind sorgfältig recherchiert und beruhen auf Angaben und Informationen Dritter. Hierfür wird keine Haftung übernommen. Wir weisen im Zusammenhang mit dem gegenständlichen Angebot auf ein bestehendes wirtschaftliches Naheverhältnis zwischen Abgeber und Vermittlungsunternehmen hin. Der Verstoß gegen § 3 Energieausweis-Vorlage-Gesetz 2012 ist entschuldigt, da wir unseren Auftraggeber über die Informationspflicht nach dieser Bestimmung aufgeklärt haben und ihn zur Bekanntgabe der beiden Werte bzw. zur Einholung eines Energieausweises aufgefordert haben, dieser wird noch vor Stellung eines Angebotes ausgearbeitet und vorgelegt.

 

+++ ICH VERKAUFE ODER VERMIETE AUCH GERNE IHRE WOHNUNG, IHR HAUS ODER IHR GRUNDSTÜCK IN INNSBRUCK UND GANZ TIROL +++

 

Falls Sie eine Wohnung, ein Haus oder ein Grundstück zu verkaufen oder zu vermieten haben, so würde ich Sie sehr gerne dabei unterstützen Ihre Immobilie optimal zu vermarkten.

Wir greifen bei unserer Immobilienvermarktung auf eine Datenbank mit hunderten vorgemerkten Kunden zurück und inserieren Ihr Objekt zudem in den wichtigsten einschlägigen Medien im Internet und in Printformat.

Unsere gut ausgebildeten Mitarbeiter garantieren dafür, dass Ihre Immobilie in kürzester Zeit und zum best möglichen Preis verkauft oder vermietet wird.

Sollten Sie eine Immobilie verkaufen oder vermieten möchten oder einfach nur eine unverbindliche Wertanalyse Ihres Objekts wünschen, so lade ich Sie herzlich dazu ein mit uns in Kontakt zu treten.

SAGENTUS Immobilien ist als staatlich konzessionierter Immobilienmakler Ihr zuverlässiger Partner im Bereich Immobilien im Raum Innsbruck, Tirol und Rest-Österreich. Als Full-Service-Agentur nehmen wir Ihnen wenn gewünscht sämtlichen Aufwand ab - von der Wohnungsaufnahme bis zur finalen Schlüsselübergabe an den neuen Wohnungseigentümer oder Mieter.

 

 

Wir weisen darauf hin, dass zwischen dem Vermittler und dem zu vermittelnden Dritten ein familiäres oder wirtschaftliches Naheverhältnis besteht.

Der Vermittler ist als Doppelmakler tätig.

Infrastruktur / Entfernungen

Gesundheit
Arzt 500m
Apotheke 500m
Klinik 1.000m
Krankenhaus 1.000m

Kinder & Schulen
Schule 500m
Kindergarten 500m
Universität 500m
Höhere Schule 500m

Nahversorgung
Supermarkt 500m
Bäckerei 500m
Einkaufszentrum 500m

Sonstige
Bank 500m
Geldautomat 500m
Polizei 500m
Post 500m

Verkehr
Bus 500m
Straßenbahn 500m
Autobahnanschluss 2.000m
Bahnhof 1.000m
Flughafen 4.000m

Angaben Entfernung Luftlinie / Quelle: OpenStreetMap
Beschreibung weiterlesen

Lage und Verkehrsanbindung

Maria-Theresien-Straße 10

Grundrisse

Lageplan

6020 Innsbruck | Innsbruck-Stadt

Lade...
Stephanie Eisenkölbl

Stephanie Eisenkölbl
Geschäftsführung

SAGENTUS Immobilien GmbH

Anrufen
Lade...

Fotomix

Bild 1 Bild 2 DESIGNERMÖBEL Bild 4 Bild 5 DESIGNERMÖBEL Bild 7 Bild 8