NEU - BESTLAGE | Schöne 4-Zimmer-Wohnung in Jahrhundertwendehaus | Perfekt für 3er WGs

Wohnung zur Miete in 1030 Wien - Gesamtmiete: 2.435,85 € / Objektnummer: 503
Ausstattung: Boden Fahrstuhl Wohnküche / offene Küche Bad Gäste-WC Etagenheizung

Preisinformationen

Gesamtmiete:
2.435,85 € / Monat
Betriebskosten netto:
282,41 € / Monat
Umsatzsteuer:
221,44 €
Kaution:
3 Bruttomonatsmieten
Provision:
Gemäß Erstauftraggeberprinzip bezahlt der Abgeber die Provision.

Fakten

Objektnummer:
503
Objekttyp:
Wohnung
Wohnfläche:
138 m²
Zimmer:
4
Badezimmer:
1
Toilette:
1
Stockwerk:
1
Baujahr:
1900
Altbau:
Ja
Zustand:
Gepflegt
Verfügbarkeit:
Verfügbar

Beschreibung

IMPULS IMMOBILIEN BIETET NACHFOLGENDE WOHNUNG AB SOFORT ZUR ANMIETUNG AN:

Schöne 4-Zimmer-Wohnung in Jahrhundertwendehaus mit TOP Grundriss, schönen Holzkastenfenstern und Vertäfelungen in absoluter BESTLAGE

 

ÜBER DIE WOHNUNG

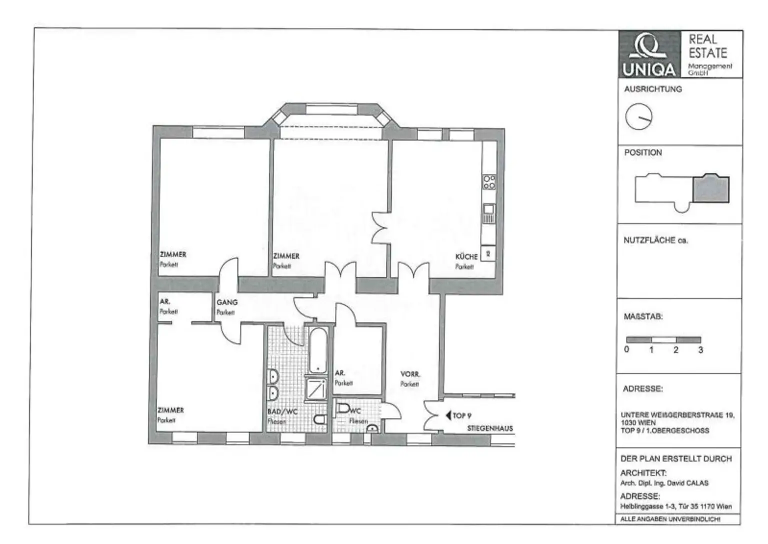
FACTBOX & RAUMAUFTEILUNG

* alle Räume zentral begehbar
* großes, sehr schönes Vorzimmer
* separates WC mit Handwaschbecken & Fenster
* Bad mit Badewanne, Dusche, 2 Waschtischen, WC & Fenster
* Voll ausgestatteter Küche
* großes Wohnzimmer oder Schlafzimmer
* 2 weitere Zimmer
* großzügiger Abstellraum mit Waschmaschinenanschluss

Die 4-Zimmer-Wohnung befindet sich im 3. Wiener Gemeindebezirk im 1. Stock mit Lift.

Das geräumige Vorzimmer bietet viel Platz zum Ankommen und erschließt sämtliche Räume der Wohnung:

- ein Wohnzimmer mit einer offenen, komplett ausgestatteten Küche

- sollte dies zu klein sein, kann das benachbarte Zimmer als Wohnzimmer genutzt werden

- ein separates WC mit Handwaschbecken und Fenster

- ein schönes Badezimmer mit Badewanne, Dusche, 2 Waschtischen & einem Fenster

- 2 oder 3 gut geschnittene Schlafzimmer

- großzügiger Abstellraum mit Waschmaschinenanschluss

Ein besonderes Highlight sind sicher die schönen Holzkastenfenster und die Vertäfelungen sowie Flügeltüren. Beheizt wird das Objekt mittels klassischer Gasetagenheizung.

-------------

Die Wohnung wird unbefristet vermeitet und der monatliche Bruttomietzins beläuft sich auf € 2.435,86 und inkludiert den Hauptmietzins, die Betriebskosten und die Umsatzsteuer.

Heizkosten, Warmwasser, Strom, Internet, etc. sind nicht Bestandteil der Miete & müssen extra entrichtet werden.

-------------

 

ÜBER DAS HAUS & DIE INFRASTRUKTUR

Die fünfstöckige, schöne Jahrhundertwendeliegenschaft befindet sich nur wenige Gehminuten vom schönen Wiener Donaukanal entfernt. Wenn Sie den Donaukanal überqueren sind Sie in wenigen Minuten in der weitläufigen Prater-Parklandschaft und genießen Erholung im Grünen, direkt in der City. Auch der 1. Bezirk liegt nur wenige Gehminuten entfernt.

Öffentlich sind Sie hier bestens angebunden: Die Straßenbahnlinie 1 hält unweit der Wohnung, Wien Landstraße mit U3 und U4-Anschluss erreichen Sie in ca. 10 Gehminuten.

Sowohl der schöne 3, als auch der naheliegende 1. Bezirk bieten unzählige Freizeitmöglichkeiten, vielfältige Lokale, Restaurants und Cafés in der unmittelbaren Umgebung. Beispielsweise spazieren sie nur 1,5 Kilometern gemütlich zum Motto am Fluß und genießen hier ein Glas Wein oder eine herrliche Basilikum-Limettenlimonade :)

Auch alle weiteren Einrichtungen des täglichen Bedarfs (Spar, Interspar, Hofer, Trafik, Ärzte...) finden sich in unmittelbarer Umgebung!

 

INTERESSIERT?

GERNE STEHEN WIR JEDERZEIT FÜR EINEN PERSÖNLICHEN TERMIN ODER RÜCKFRAGEN ALLER ART
UNTER OFFICE@IMPULS-IMMOBILIEN.AT BZW. TELEFONISCH UNTER 0650/8566764 [tel:06508566764] ZUR VERFÜGUNG!

Wir weisen darauf hin, dass zwischen dem Vermittler und dem zu vermittelnden Dritten ein familiäres oder wirtschaftliches Naheverhältnis besteht.

Der Immobilienmakler erklärt, dass er – entgegen dem in der Immobilienwirtschaft üblichen Geschäftsgebrauch des Doppelmaklers – einseitig nur für den Vermieter tätig ist.

Infrastruktur / Entfernungen

Gesundheit
Arzt <225m
Apotheke <200m
Klinik <950m
Krankenhaus <825m

Kinder & Schulen
Schule <275m
Kindergarten <175m
Universität <350m
Höhere Schule <1.125m

Nahversorgung
Supermarkt <175m
Bäckerei <225m
Einkaufszentrum <750m

Sonstige
Geldautomat <225m
Bank <225m
Post <225m
Polizei <675m

Verkehr
Bus <200m
U-Bahn <700m
Straßenbahn <200m
Bahnhof <625m
Autobahnanschluss <2.125m

Angaben Entfernung Luftlinie / Quelle: OpenStreetMap
Beschreibung weiterlesen

Lage und Verkehrsanbindung

Untere Weißgerberstraße | 1030 Wien | Nähe Radetzkyplatz | Nähe 1. Bezirk | Donaukanal

Hundertwasserhaus, Radetzkyplatz

Energieeffizienz

HWB:
132,6 kWh/(m²*a)
HWB Klasse:
D
fGEE:
2,2
fGEE Klasse:
D
Energieausweisart:
Energiebedarfs-ausweis
Gültig bis:
28.09.2033

Grundriss

Lageplan

1030 Wien | Wien 3., Landstraße

Lade...
Markus Verner

Markus Verner
Geschäftsführung

IMPULS Immobilien

Lade...

Fotomix

Bild 1 Bild 2 Bild 3 Bild 4 Bild 5 Bild 6 Bild 7 Bild 8 Bild 9 Bild 10 Bild 11 Bild 12 Bild 13 Bild 14