NEU - Betriebsobjekt 210m² + 120m² Hoffläche mit Einfahrt Nähe U4 - 1130 Wien

Lager zur Miete in 1130 Wien / Objektnummer: 7773
Ausstattung: Barrierefrei Boden Teeküche Kabel/Satelliten-TV Etagenheizung
Büro 1
Büro 1
Büro 1
Büro 2
Büro 2
Besprechung
Besprechung
Büro 3
Büro 4
Flur
WC
Sanitärbereich
Teeküche
Teeküche
Werkstatt - Lager
Werkstatt - Lager
Werkstatt - Lager
Werkstatt - Lager
Lager
Lager
Lager
Hoffläche
Hoffläche
Hofansicht

Preisinformationen

Gesamtmiete (exkl. USt.):
2.500,00 € / Monat
Betriebskosten netto:
100,00 € / Monat
Umsatzsteuer:
500,00 €
Miete/m² netto:
11,43 €
Kaution:
9.000,00 €
Vermittlungsprovision:
Ja
Provision:
9.000,00 € inkl. 20% USt.

Fakten

Objektnummer:
7773
Objekttyp:
Lager
Nutzfläche:
210 m²
Toilette:
1
Baujahr:
1915
Altbau:
Ja
Verfügbarkeit:
Verfügbar

Beschreibung

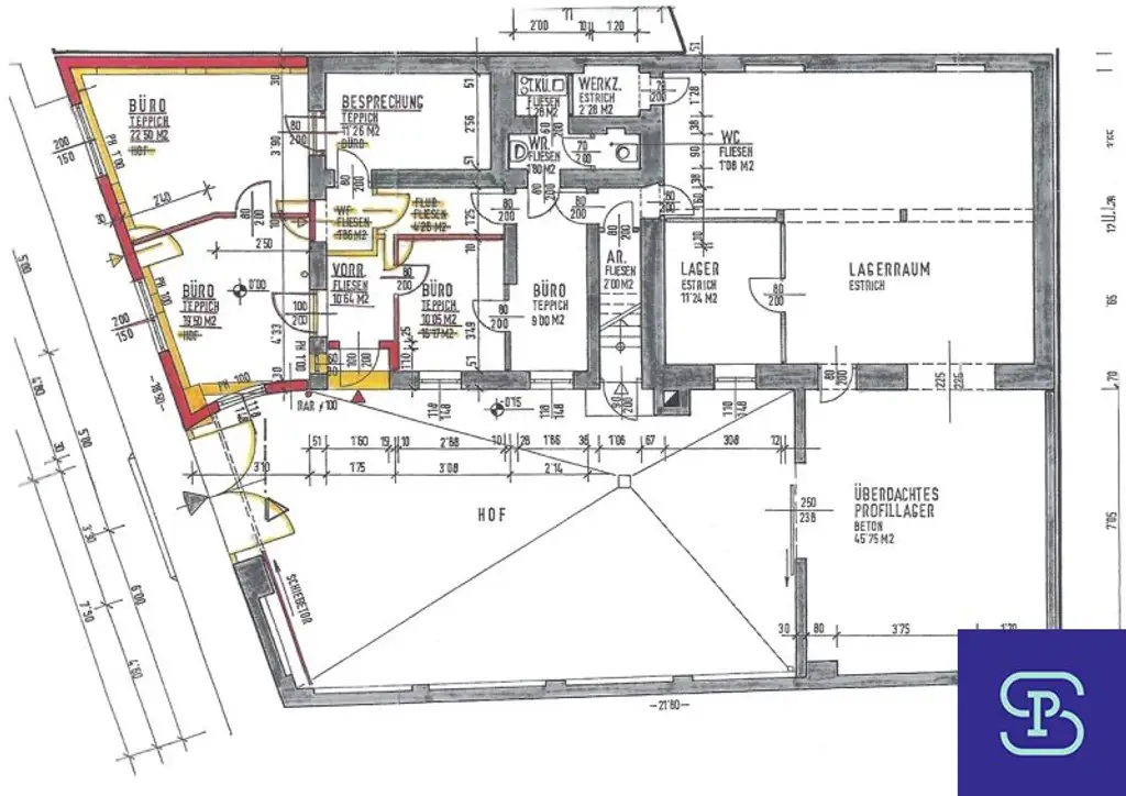
Betriebsobjekt 210m² mit Büro- und Werkstatt-/Lagerfläche + 120m² Hoffläche!

Zur Vermietung gelangt ein ebenerdiges Betriebsobjekt (vormals Baufirma) in zentraler Lage unweit der U4 Station Braunschweiggasse mit ca. 210m² Nutzfläche, bestehend aus ca. 90m² Büroräumlichkeiten sowie ca. 120m² Werkstatt- oder Lagerfläche mit Einfahrt und eigener Hoffläche mit ca. 120m².  

Ausstattung: Gasetagenheizung, kleine Teeküche, Sanitärbereich mit 1 WC, teilmöblierte Büroräume wie abgebildet, div. Beleuchtung, Fenster mit Mehrfachverglasung und Sonnenschutz.  

Sehr zentrale und gut erreichbare Lage in unmittelbarer Nähe der U4 Braunschweiggasse. Gute Infrastruktur und öffentlicher Verkehrsanbindung durch die Straßenbahnlinie 10, Autobus 51A sowie U4 in Gehdistanz. Nach Ablauf der Befristung wäre der Kauf der Liegenschaft evtl. möglich.

Bitte geben Sie bei Ihrer Anfrage unbedingt die geplante Nutzung/Branche an!

Das Mietobjekt wird ab sofort in befristeter Hauptmiete (3 Jahre) vermietet!
Gesamtmiete inkl. 20% USt. € 2.880,-
(HMZ netto € 2.400,- + 20% USt. € 480,-)
Bk werden gesondert verrechnet! (dzt. monatl. netto ca. € 100,-) 
Kaution € 9.000,-
Vermittlungshonorar 3MM (€ 7.500,- + 20% USt.)

KONTAKT: Anfragen bitte nur per Email-Anfragefunktion! Keine telefonische Terminvergabe!

Besuchen Sie für unsere weiteren Angebote bitte auch unsere Homepage: www.sitarz.at [http://www.sitarz.at] _ _

Der Mieter zahlt im Erfolgsfall an die Firma Sitarz & Partner Immobilien GmbH eine Maklerprovision in Höhe von 1 Nettomonatsmiete zzgl. 20% USt. bei einer Befristung von weniger als 2 Jahren, bzw. 2 Nettomonatsmieten zzgl. 20% USt. bei einer Befristung von mehr als 2 Jahren, jedoch nicht mehr als 3 Jahren. Bei einer Befristung über 3 Jahren sowie bei unbefristeten Verträgen sind 3 Nettomonatsmieten zzgl. 20% USt. fällig. Die Provision errechnet sich aus der im Mietvertrag vereinbarten Nettomiete inkl. Betriebskosten. Ausdrücklich vereinbart wird dieser Provisionsanspruch in gleicher Höhe auch für die in § 15 MaklerG vorgesehenen Fälle (Unterlassung eines notwendigen Rechtsaktes wider Treu und Glauben, Abschluss eines zweckgleichen Geschäftes, Abschluss mit einem Dritten aufgrund der Weitergabe der Abschlussmöglichkeit, Ausübung eines Vorkaufs-, Wiederkaufs- oder Eintrittsrechtes). Falls Ihnen dieses Objekt bereits als verkauf- oder vermietbar bekannt ist, ersuchen wir innerhalb von 3 Werktagen um Ihre schriftliche Nachricht, ansonsten gilt die Provisionsregelung als vereinbart. Bei den Größen und Ertragsangaben handelt es sich um die von Abgeber/in (Eigentümer/in bzw. Hausverwaltung) zur Verfügung gestellten Informationen. Die Angaben wurden von uns kontrolliert, eine Gewähr für die Richtigkeit, Vollständigkeit und Letztstand müssen wir allerdings ausschließen. Es wird darauf hingewiesen, dass zwischen dem Abgeber und dem Immobilienmakler ein wirtschaftliches bzw. familiäres Nahverhältnis besteht und der Immobilienmakler auch für diesen tätig ist (Doppelmakler).

Hinweis gemäß Energieausweisvorlagegesetz: Ein Energieausweis wurde vom Eigentümer bzw. Verkäufer, nach unserer Aufklärung über die generell geltende Vorlagepflicht, sowie Aufforderung zu seiner Erstellung noch nicht vorgelegt. Daher gilt zumindest eine dem Alter und der Art des Gebäudes entsprechende Gesamtenergieeffizienz als vereinbart. Wir übernehmen keinerlei Gewähr oder Haftung für die tatsächliche Energieeffizienz der angebotenen Immobilie.

Wir weisen darauf hin, dass zwischen dem Vermittler und dem zu vermittelnden Dritten ein familiäres oder wirtschaftliches Naheverhältnis besteht.

Der Vermittler ist als Doppelmakler tätig.

Infrastruktur / Entfernungen

Gesundheit
Arzt <500m
Apotheke <500m
Klinik <500m
Krankenhaus <1.500m

Kinder & Schulen
Schule <500m
Kindergarten <500m
Universität <1.500m
Höhere Schule <3.000m

Nahversorgung
Supermarkt <500m
Bäckerei <500m
Einkaufszentrum <2.500m

Sonstige
Geldautomat <500m
Bank <500m
Post <1.000m
Polizei <1.000m

Verkehr
Bus <500m
U-Bahn <500m
Straßenbahn <500m
Bahnhof <500m
Autobahnanschluss <4.000m

Angaben Entfernung Luftlinie / Quelle: OpenStreetMap
Beschreibung weiterlesen

Lage und Verkehrsanbindung

Hietzinger Kai

Grundriss

Lageplan

1130 Wien | Wien 13., Hietzing

Lade...
Sitarz & Partner Immobilien GmbH

Sitarz & Partner Immobilien GmbH
Office

Sitarz & Partner Immobilien GmbH

Lade...

Fotomix

Büro 1 Büro 1 Büro 1 Büro 2 Büro 2 Besprechung Besprechung Büro 3 Büro 4 Flur WC Sanitärbereich Teeküche Teeküche Werkstatt - Lager Werkstatt - Lager Werkstatt - Lager Werkstatt - Lager Lager Lager Lager Hoffläche Hoffläche Hofansicht