NEU - Bezugsfertige Eigentumswohnung auf Eigengrund – Wohnen vor den Toren Wiens

Wohnung zum Kauf in 2103 Langenzersdorf - Kaufpreis: 269.000 € / Objektnummer: 92807
Ausstattung: Boden Bad Kabel/Satelliten-TV Abstellraum Fußbodenheizung Terrasse Garten
Aussenansicht
Aussenansicht
Garten
Aussenansicht
Aussenansicht
Aussenansicht
Innenhof
Garage
Badezimmer
Wohnzimmer
Wohnzimmer
Badezimmer

Preisinformationen

Kaufpreis:
269.000 €
Provision:
Provision bezahlt der Abgeber.

Fakten

Objektnummer:
92807
Objekttyp:
Wohnung
Terrasse:
1
Keller Fläche:
4,16 m²
Wohnfläche:
54,73 m²
Gartenfläche:
47,77 m²
Zimmer:
2
Badezimmer:
1
Toilette:
1
Neubau:
Ja
Zustand:
Erstbezug
Verfügbarkeit:
Verfügbar

Beschreibung

ANKOMMEN. DURCHATMEN. ZUHAUSE SEIN.

Manchmal fühlt sich Wohnen an wie Abheben. In der Wiener Straße 73–77 in Langenzersdorf ist genau das gelungen: Rund 55 hochwertige Eigentumswohnungen wurden hier in attraktiver Lage errichtet – bereit, Ihren Wohnträumen Flügel zu verleihen.

Fünf moderne Häuser mit poetischen Namen – Himmel, Luft, Mond, Sonne und Sterne – bilden ein harmonisches Wohnensemble. Sie beherbergen lichtdurchflutete 2-, 3- und 4-Zimmer-Wohnungen mit Wohnflächen von ca. 51 m² bis 100 m². Durchdachte Grundrisse, großzügige Fensterflächen sowie Terrassen, Balkone oder Eigengärten im Erdgeschoss schaffen Räume, in denen man sich sofort zuhause fühlt.

Ruhig gelegen und dennoch bestens angebunden – hier verbindet sich Lebensqualität mit urbaner Nähe.

 

DAS PROJEKT / DIE AUSSTATTUNG

* Klare, zeitlose Architektur
* Intelligente, funktionale Grundrisse
* Hochwertige Ausstattung für langfristigen Wohnkomfort
* Großzügige Fensterfronten für helle Wohnräume
* Terrassen und Balkone als erweiterter Wohnraum im Freien
* Effiziente Luft-Wasser-Wärmepumpe
* Ergänzende Gasheizung für zuverlässige Wärmeversorgung
* Ökologisch und zukunftsorientiertes Energiekonzept
* Zwei versperrbare Fahrradabstellräume im Untergeschoss
* Tiefgaragenplätze mit Vorbereitung für E-Ladestationen
* Paketbox für sichere und flexible Zustellung
* Kabel- / Sat-TV vorhanden

 

DIE LAGE

Langenzersdorf – Landleben mit urbaner Anbindung

Die Wohnadresse Wiener Straße 73–77 in 2103 Langenzersdorf verbindet ruhiges, dörfliches Wohnen mit einer ausgezeichneten Infrastruktur und schneller Erreichbarkeit der Bundeshauptstadt. Langenzersdorf zählt zu den begehrtesten Wohnlagen im Wiener Umland und überzeugt durch seine unmittelbare Nähe zur Stadtgrenze Wiens.

Öffentliche Verkehrsanbindung:
Der Bahnhof Langenzersdorf ist rasch erreichbar und bietet mit der S-Bahn (S3, S4) eine direkte Verbindung ins Wiener Stadtzentrum. Der Wiener Praterstern sowie weitere zentrale Knotenpunkte sind in rund 20 Minuten bequem erreichbar. Ergänzend sorgen regionale Buslinien entlang der Wiener Straße für eine gute innerörtliche Anbindung.

Individualverkehr:
Mit dem Auto gelangen Sie in wenigen Minuten zur Donauufer Autobahn (A22) sowie zur B14, wodurch sowohl das Wiener Stadtgebiet als auch das Weinviertel optimal angebunden sind. Die Nähe zur Stadt macht den Standort besonders attraktiv für Pendler.

Nahversorgung & Alltag:
Supermärkte, Bäckereien, Apotheken sowie weitere Geschäfte des täglichen Bedarfs befinden sich in fußläufiger Distanz. Ebenso sind Kindergarten, Volksschule und weitere Bildungseinrichtungen schnell erreichbar – ein klarer Vorteil für Familien.

Freizeit & Erholung:
Der nahegelegene Bisamberg, Badeteiche und weitläufige Grünflächen bieten vielfältige Möglichkeiten für Sport, Spaziergänge und Erholung in der Natur. Gleichzeitig profitieren Sie von der Nähe zu Wien mit seinem umfassenden Kultur-, Gastronomie- und Freizeitangebot.

Langenzersdorf bietet damit eine ausgewogene Kombination aus Lebensqualität, Mobilität und Infrastruktur – ideal für alle, die naturnah wohnen und dennoch urban angebunden sein möchten.

Bereits fertiggestellt.

Provisionsfrei für den Käufer!

 

 

 

 

Wir weisen darauf hin, dass zwischen dem Vermittler und dem zu vermittelnden Dritten ein familiäres oder wirtschaftliches Naheverhältnis besteht.

Der Vermittler ist als Doppelmakler tätig.

Infrastruktur / Entfernungen

Gesundheit
Arzt <500m
Apotheke <750m
Klinik <5.500m
Krankenhaus <3.000m

Kinder & Schulen
Schule <500m
Kindergarten <500m
Universität <2.000m
Höhere Schule <5.500m

Nahversorgung
Supermarkt <500m
Bäckerei <750m
Einkaufszentrum <1.750m

Sonstige
Geldautomat <750m
Bank <750m
Post <750m
Polizei <500m

Verkehr
Bus <250m
Straßenbahn <2.500m
U-Bahn <6.250m
Bahnhof <750m
Autobahnanschluss <2.750m

Angaben Entfernung Luftlinie / Quelle: OpenStreetMap
Beschreibung weiterlesen

Energieeffizienz

HWB:
31,01 kWh/(m²*a)
HWB Klasse:
B
fGEE:
0,82
fGEE Klasse:
A
Energieausweisart:
Energiebedarfs-ausweis

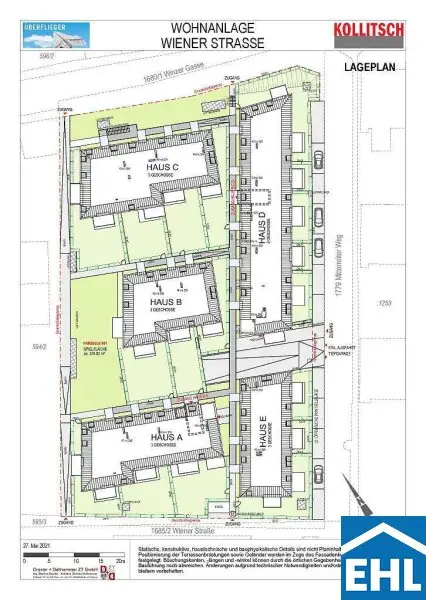
Grundrisse

Lageplan

2103 Langenzersdorf | Korneuburg

Lade...
Ilse Reindl

Ilse Reindl

EHL Wohnen GmbH

Lade...

Fotomix

Aussenansicht Aussenansicht Garten Aussenansicht Aussenansicht Aussenansicht Innenhof Garage Badezimmer Wohnzimmer Wohnzimmer Badezimmer