NEU - Bezugsfertige Vorsorgewohnung auf Eigengrund – Investieren vor den Toren Wiens

Wohnung zum Kauf in 2103 Langenzersdorf - Kaufpreis: 250.200 € / Objektnummer: 92808
Ausstattung: Boden Bad Abstellraum Etagenheizung Terrasse Garten
Aussenansicht
Aussenansicht
Aussenansicht
Aussenansicht
Badezimmer
Wohnzimmer
Wohnzimmer
Badezimmer
Garten
Innenhof
Aussenansicht
Garage

Preisinformationen

Kaufpreis:
250.200 €
Provision:
Provision bezahlt der Abgeber.

Fakten

Objektnummer:
92808
Objekttyp:
Wohnung
Terrasse:
1
Keller Fläche:
4,16 m²
Wohnfläche:
54,73 m²
Gartenfläche:
47,77 m²
Zimmer:
2
Badezimmer:
1
Toilette:
1
Neubau:
Ja
Zustand:
Erstbezug
Verfügbarkeit:
Verfügbar

Beschreibung

Investieren. Absichern. Werte schaffen.
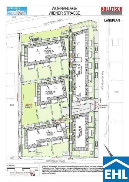
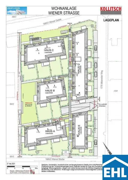
Manchmal fühlt sich eine Vorsorgeinvestition an wie ein sicherer Schritt in die Zukunft. In der Wiener Straße 73–77 in Langenzersdorf ist genau das gelungen: Rund 55 hochwertige Eigentumswohnungen wurden hier in attraktiver Lage errichtet – ideal als langfristige Wertanlage mit stabiler Nachfrage.

Fünf moderne Häuser mit poetischen Namen – Himmel, Luft, Mond, Sonne und Sterne – bilden ein harmonisches Wohnensemble. Sie beherbergen funktionale 2-, 3- und 4-Zimmer-Wohnungen mit Wohnflächen von ca. 51 m² bis 100 m². Durchdachte Grundrisse, großzügige Fensterflächen sowie Terrassen, Balkone oder Eigengärten im Erdgeschoss schaffen zeitgemäßen Wohnraum mit sehr guten Voraussetzungen für nachhaltige Vermietbarkeit.

Ruhig gelegen und dennoch bestens angebunden – ein Standort, der langfristige Sicherheit mit urbaner Nähe verbindet.

DAS PROJEKT / DIE AUSSTATTUNG

* Klare, zeitlose Architektur
* Intelligente, funktionale Grundrisse
* Hochwertige Ausstattung für langfristigen Werterhalt
* Großzügige Fensterfronten für helle Wohnräume
* Terrassen und Balkone als erweiterter Wohnraum im Freien
* Effiziente Luft-Wasser-Wärmepumpe
* Ergänzende Gasheizung für zuverlässige Wärmeversorgung
* Ökologisch und zukunftsorientiertes Energiekonzept
* Zwei versperrbare Fahrradabstellräume im Untergeschoss
* Tiefgaragenplätze mit Vorbereitung für E-Ladestationen
* Paketbox für sichere und flexible Zustellung
* Kabel- / Sat-TV vorhanden

DIE LAGE

Langenzersdorf – nachhaltiger Wohnstandort mit urbaner Anbindung

Die Wohnadresse Wiener Straße 73–77 in 2103 Langenzersdorf verbindet ruhiges Wohnen im Grünen mit einer ausgezeichneten Infrastruktur und schneller Erreichbarkeit der Bundeshauptstadt. Langenzersdorf zählt zu den gefragten Wohnlagen im Wiener Umland und überzeugt durch seine unmittelbare Nähe zur Stadtgrenze Wiens.

Öffentliche Verkehrsanbindung:
Der Bahnhof Langenzersdorf ist rasch erreichbar und bietet mit den S-Bahn-Linien S3 und S4 eine direkte Verbindung ins Wiener Stadtzentrum. Zentrale Knotenpunkte wie der Wiener Praterstern sind in rund 20 Minuten erreichbar. Ergänzend sorgen regionale Buslinien entlang der Wiener Straße für eine gute innerörtliche Anbindung.

Individualverkehr:
Die Nähe zur Donauufer Autobahn (A22) sowie zur B14 gewährleistet eine optimale Erreichbarkeit sowohl des Wiener Stadtgebiets als auch des Weinviertels – ein klarer Standortvorteil für Berufspendler.

Nahversorgung & Alltag:
Supermärkte, Bäckereien, Apotheken sowie weitere Einrichtungen des täglichen Bedarfs befinden sich in fußläufiger Distanz. Kindergärten und Schulen sind ebenfalls schnell erreichbar, was die Vermietbarkeit zusätzlich stärkt.

Freizeit & Erholung:
Der Bisamberg, Badeteiche und weitläufige Grünflächen bieten vielfältige Freizeit- und Erholungsmöglichkeiten und erhöhen die Attraktivität des Standorts für Mieter.

Langenzersdorf bietet damit eine ausgewogene Kombination aus Standortqualität, Infrastruktur und nachhaltiger Nachfrage – ideale Voraussetzungen für eine langfristige Vorsorgeinvestition.

Zu erwartender Mietertrag von ca. EUR 13,00-13,50 netto/m²

Bereits fertiggestellt.

Provisionsfrei für den Käufer!

Wir weisen darauf hin, dass zwischen dem Vermittler und dem zu vermittelnden Dritten ein familiäres oder wirtschaftliches Naheverhältnis besteht.

Der Vermittler ist als Doppelmakler tätig.

Infrastruktur / Entfernungen

Gesundheit
Arzt <500m
Apotheke <750m
Klinik <5.500m
Krankenhaus <3.000m

Kinder & Schulen
Schule <500m
Kindergarten <500m
Universität <2.000m
Höhere Schule <5.500m

Nahversorgung
Supermarkt <500m
Bäckerei <750m
Einkaufszentrum <1.750m

Sonstige
Geldautomat <750m
Bank <750m
Post <750m
Polizei <500m

Verkehr
Bus <250m
Straßenbahn <2.500m
U-Bahn <6.250m
Bahnhof <750m
Autobahnanschluss <2.750m

Angaben Entfernung Luftlinie / Quelle: OpenStreetMap
Beschreibung weiterlesen

Energieeffizienz

HWB:
31,01 kWh/(m²*a)
HWB Klasse:
B
fGEE:
0,82
fGEE Klasse:
A
Energieausweisart:
Energiebedarfs-ausweis

Grundriss

Lageplan

2103 Langenzersdorf | Korneuburg

Lade...
Andrea PÖCHHACKER; MSc

Andrea PÖCHHACKER; MSc
Leitung Wohninvestment

EHL Wohnen GmbH

Lade...

Fotomix

Aussenansicht Aussenansicht Aussenansicht Aussenansicht Badezimmer Wohnzimmer Wohnzimmer Badezimmer Garten Innenhof Aussenansicht Garage