NEU - BLOOM- EIN NEUES PROJEKT IN STAMMERSDORF- JETZT DIE BESTE WOHNUNG SICHERN!

Wohnung zum Kauf in 1210 Wien - Kaufpreis: 499.000 € / Objektnummer: 19222
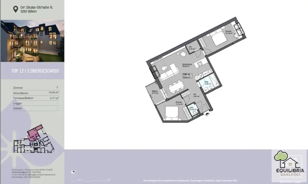
Ausstattung: Balkon

Preisinformationen

Kaufpreis:
499.000 €
Vermittlungsprovision:
Ja
Provision:
3% des Kaufpreises zzgl. 20% USt.

Fakten

Objektnummer:
19222
Objekttyp:
Wohnung
Balkon:
1
Balkonfläche:
4,77 m²
Wohnfläche:
76,84 m²
Zimmer:
3
Badezimmer:
1
Toilette:
1
Stockwerk:
2
Baujahr:
2027
Neubau:
Ja
Zustand:
Erstbezug
Verfügbarkeit:
Verfügbar
Verfügbar ab:
Ende 2027

Beschreibung

Im Herzen von Stammersdorf entsteht mit bloom ein kompaktes, hochwertiges Neubauprojekt, das modernes Wohnen in idyllischer Umgebung neu definiert. Nur wenige Schritte von Weinbergen, Kellergassen und Heurigen entfernt, vereint das Projekt die Ruhe des Wiener Weinviertels mit der Nähe zur Stadt.

Die 17 familiengerechten Eigentumswohnungen überzeugen durch funktionale Grundrisse, 2–4 Zimmer-Typen (sowie einige kompakte Einheiten für Singles und Paare), großzügige Freiflächen wie Balkone, Terrassen oder Eigengärten und eine durchdachte Architektur, die Freiraum und Wohnqualität in Einklang bringt. Ergänzt wird das Angebot durch 12 PKW-Stellplätze für komfortables Ankommen.

bloom richtet sich besonders an Familien, die Wert auf ein ruhiges, naturnahes Zuhause legen – ohne auf eine gute Anbindung, moderne Ausstattung und städtischen Komfort zu verzichten. Hier verbinden sich Erschwinglichkeit und Qualität zu einem Wohnkonzept, das Raum für Gegenwart und Zukunft schafft.

Für weitere Details bezüglich Ausstattung und nähere Beschreibung des Projektes, besuchen Sie bitte die Homepage unter dem folgenden Link:

 

https://www.bloom.wien

Für eine persönliche Beratung , steht Ihnen Hr. Wolfgang Konsel ,unter der Tel.Nr- 0676/3505425 ,oder  Email: wolfgang.konsel@equilibria zur Verfügung.

Hinweis gemäß Energieausweisvorlagegesetz: Ein Energieausweis wurde vom Eigentümer bzw. Verkäufer, nach unserer Aufklärung über die generell geltende Vorlagepflicht, sowie Aufforderung zu seiner Erstellung noch nicht vorgelegt. Daher gilt zumindest eine dem Alter und der Art des Gebäudes entsprechende Gesamtenergieeffizienz als vereinbart. Wir übernehmen keinerlei Gewähr oder Haftung für die tatsächliche Energieeffizienz der angebotenen Immobilie.

Infrastruktur / Entfernungen

Gesundheit
Arzt <500m
Apotheke <500m
Klinik <4.000m
Krankenhaus <1.000m

Kinder & Schulen
Schule <500m
Kindergarten <500m
Universität <1.500m
Höhere Schule <5.000m

Nahversorgung
Supermarkt <500m
Bäckerei <500m
Einkaufszentrum <3.000m

Sonstige
Geldautomat <500m
Bank <500m
Post <3.000m
Polizei <1.000m

Verkehr
Bus <500m
U-Bahn <3.500m
Straßenbahn <500m
Bahnhof <3.500m
Autobahnanschluss <4.000m

Angaben Entfernung Luftlinie / Quelle: OpenStreetMap
Beschreibung weiterlesen

Grundriss

Lageplan

1210 Wien | Wien 21., Floridsdorf

Lade...
Wolfgang Konsel

Wolfgang Konsel
Miteigentümer & Immobilienberater

equilibria Immobilienmanagement GmbH & Co KG

Lade...

Fotomix

Bild 1 Bild 2 Bild 3