NEU - Büro mit Altbau-Flair, Nähe Belvedere zu mieten!

Immobilie zur Miete in 1040 Wien / Objektnummer: 5735/3920
Ausstattung: Boden Bad Klimaanlage Etagenheizung

Preisinformationen

Gesamtmiete (exkl. USt.):
5.332,52 € / Monat
Betriebskosten netto:
1.104,04 € / Monat
Umsatzsteuer:
1.066,50 €
Kaution:
3 Bruttomonatsmieten

Fakten

Objektnummer:
5735/3920
Nutzfläche:
231,41 m²
Zimmer:
6
Badezimmer:
2
Toilette:
2
Stockwerk:
1
Altbau:
Ja
Zustand:
Gepflegt
Verfügbarkeit:
Verfügbar
Verfügbar ab:
01.07.2026

Beschreibung

BÜRO MIT ALTBAU-FLAIR  IN BESTLAGE: KARLSPLATZ & BELVEDERE ​​​​​​

 

Erleben Sie Charme, Stil und Prestige in einer der besten Lagen Wiens! Diese elegante Büro  im Hochparterre  (mit Lift) eines repräsentativen Altbauhauses in 1040 Wien kombiniert zeitlose Architektur mit modernem Komfort.  

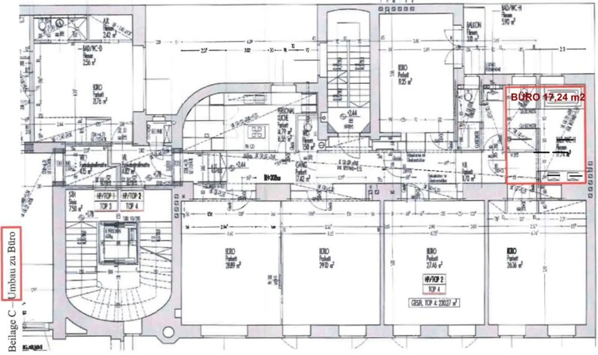
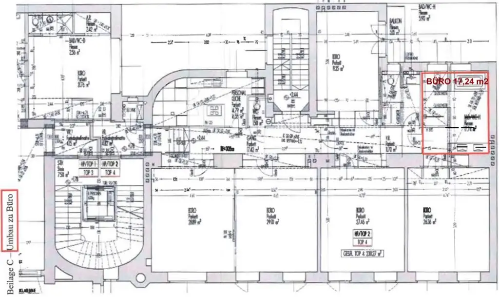
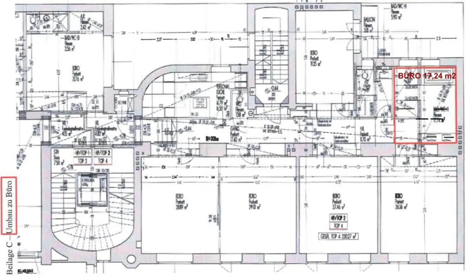
Mit einer Nutzfläche von 231,41 m² bietet diese großzügigen Bürofläche viele Arbeitsfläche oder eignet sich auch gut als Gemeinschaftsbüro. Das Objekt verfügt über 7 grössere Räumlichkeiten, die Platz für ca. 20-24 Arbeitsplätze bietet. Der prachtvolle Parkettboden verleiht den Räumen eine edle Atmosphäre, während hohe Decken den Altbaucharakter unterstreichen. 

Die moderne Einbauküche überzeugt durch hochwertige Ausstattung und bietet ausreichend Stauraum und Platz für gemeinsame Koch-Aktivitäten.

In den Betriebskosten sind bereits folgende Kosten inkludiert: Heizkosten (480,90 €) und Kosten für die Klimaanlage (194,39 €)

 

Hervorragende  Lage: 
Nur wenige Schritte vom Karlsplatz und dem historischen Belvedere entfernt, genießen Sie eine Top-Infrastruktur mit exzellenter Anbindung. U-Bahn, Straßenbahn und Bus sind in unmittelbarer Nähe. Geschäfte des täglichen Bedarfs sowie Lokale und Restaurants liegen praktisch vor der Tür.  Der Belvedere Garten lädt zu einem Spaziergang in der Mittagspause für Erholung ein.

Die Immobilie ist derzeit noch vermietet und steht ab 1.7.2026 zur Verfügung.

Wir freuen uns darauf, Ihnen dieses stilvolle Zuhause zu präsentieren!

 

Raumaufteilung:

- Entree/Vorzimmer

- 7 große Büroräumlichkeiten

- Küche 

- 2 Badezimmer mit Dusche

- 3 Toiletten

 

 

Lage:

Diese Liegenschaft  befindet sich in der Wohllebengasse im 4. Wiener Gemeindebezirk, nahe der Karlskirche und dem Schloss Belvedere. Das Schloss Belvedere mit seinem Belvederegarten ist nur 3 Gehminuten erreichbar. Der Stadtpark, sowie Volksgarten welche zu schönen Spaziergängen und diversen Freizeitaktivitäten im Grünen einladen. Die Geschäfte des täglichen Bedarfs sowie Ärzte, Schulen usw. befinden sich in direkter Umgebung.

 

Öffentliche Verkehrsmittel:

- Straßenbahnlinie: D, 71, 1, 62 sowie Badner Bahn

- Autobuslinie: 4A

- U-Bahn: U1, U4 Karlsplatz

 

_Nebenkosten: _

* 3 Bruttomonatsmieten Kaution
* 3 Bruttomonatsmieten Provision zzgl. 20% USt.

Wir freuen uns Ihnen die Liegenschaft jederzeit persönlich vorzustellen zu dürfen.

_Für eine unverbindliche Besichtigung:_

Kontaktieren Sie gerne Frau Petra Gepp persönlich unter +43 660 201 89 47 [tel:+436602229825] sowie auch unter gepp@thurner-realitaeten.at. Unser Büro erreichen Sie unter office@thurner-realitaeten.at.

———————————————

Auf ein wirtschaftliches Naheverhältnis mit dem Abgeber, bedingt durch regelmäßige Geschäftsbeziehungen, wird hingewiesen.

_Maklervereinbarung: _Wir ersuchen um Verständnis, dass wir bei Anfragen zur Objektadresse, bzw. Besichtigungstermin aufgrund neuer gesetzlicher Bestimmungen Unterlagen erst dann zusenden können, wenn Sie vorab bestätigen, dass Sie unser sofortiges Tätigwerden wünschen und über Ihre Rücktrittsrechte aufgeklärt wurden. Sie bekommen nach Ihrer schriftlichen Anfrage mit vollständiger Angabe des Namens, Anschrift und Telefonnummer ein E-Mail, in dem Sie diese Punkte bestätigen müssen.

_Haftungsausschluss:  _Wir weisen darauf hin, dass sämtliche Daten im vorliegenden Angebot sowie die von unserem Büro an Sie weitergegebenen Auskünfte, vom Eigentümer der Immobilie zur Verfügung gestellt wurden. Ebenso sind Informationen von Dritten (z.B. behördliche Informationen) eingeholt worden, auch für diese können wir unsererseits keinerlei Haftung für deren uneingeschränkte Richtigkeit übernehmen.

Wir weisen darauf hin, dass zwischen dem Vermittler und dem zu vermittelnden Dritten ein familiäres oder wirtschaftliches Naheverhältnis besteht.

Infrastruktur / Entfernungen

Gesundheit
Arzt <500m
Apotheke <500m
Klinik <500m
Krankenhaus <1.500m

Kinder & Schulen
Schule <500m
Kindergarten <500m
Universität <500m
Höhere Schule <500m

Nahversorgung
Supermarkt <500m
Bäckerei <500m
Einkaufszentrum <1.000m

Sonstige
Geldautomat <500m
Bank <500m
Post <500m
Polizei <500m

Verkehr
Bus <500m
U-Bahn <500m
Straßenbahn <500m
Bahnhof <500m
Autobahnanschluss <3.000m

Angaben Entfernung Luftlinie / Quelle: OpenStreetMap
Beschreibung weiterlesen

Lage und Verkehrsanbindung

Die Wohnung befindet sich im Hochparterre (mit Lift) eines stillvolles Altbau im 4. Bezirk nahe der berühmten Karlskirche und dem Schloss Belvedere.

Karlskirche, Schloss Belvedere

Energieeffizienz

HWB:
98,2 kWh/(m²*a)
HWB Klasse:
D
fGEE:
3,47
fGEE Klasse:
F
Energieausweisart:
Energiebedarfs-ausweis
Gültig bis:
10.09.2029

Grundriss

Lageplan

1040 Wien | Wien 4., Wieden

Lade...
Petra Gepp

Petra Gepp
Maklerin

Thurner Realitäten GmbH

Lade...

Fotomix

Bild 1 Bild 2 Bild 3 Bild 4 Bild 5 Bild 6 Bild 7 Bild 8 Bild 9 Bild 10 Bild 11 Bild 12 Bild 13 Bild 14 Bild 15 Bild 16 Bild 17 Bild 18 Bild 19