NEU - Büro / Praxis beim Karmelitermarkt mit großer Terrasse!!!

Immobilie zur Miete in 1020 Wien - Gesamtmiete: 1.795,00 € / Objektnummer: 7336
Ausstattung: Fahrstuhl Zentralheizung Terrasse
Zimmer 1
Küche
Zimmer 2
Zimmer 3
Terrasse
Badezimmer mit WC
WC
Vorraum
Zugang zum Objekt
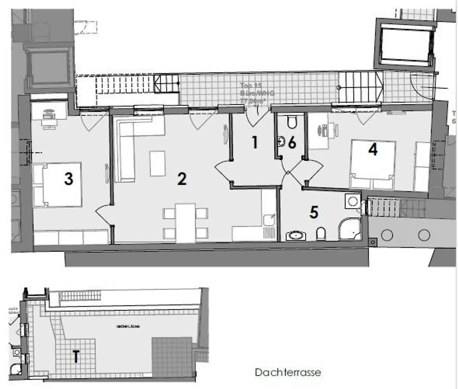
Grundriss Top 15
Außenansicht
Außenansicht
Fahrradraum
Lageplan mit Öffis
IMMY Preisträger

Preisinformationen

Gesamtmiete:
1.795,00 € / Monat
Gesamtmiete (exkl. USt.):
1.495,83 € / Monat
Betriebskosten netto:
192,65 € / Monat
Umsatzsteuer:
299,17 €
Kaution:
6.000,00 €

Fakten

Objektnummer:
7336
Terrasse:
1
Nutzfläche:
80 m²
Bürofläche:
80 m²
Zimmer:
3
Toilette:
2
Zustand:
Gepflegt
Verfügbarkeit:
Verfügbar

Beschreibung

Zur Vermietung gelangt diese schöne Büro-/Praxis-/Ordinationsfläche (77m²) in der Großen Schiffgasse.Der Zugang erfolgt über wenige Stufen.

Über eine außen liegende Treppe ist eine 10,51m² große Terrasse erreichbar.

Mit Fußbodenheizung (via Erdwärme / Tiefenbohrung) und Fußbodenkühlung erfüllt die Fläche alle Anforderungen eines zeitgemäßen, energieeffizienten Objekts.

Die Infrastruktur kann als optimal beschrieben werden. U-Bahn und Geschäfte für den täglichen Bedarf sind nur wenige Gehminuten entfernt.

Raumaufteilung:
• Vorraum
• 3 Zimmer - (1 Durchgangszimmer)
• offene Küche mit Elektrogeräten
• Abstellraum
• WC mit Waschbecken
• Badezimmer mit Dusche und WC
• Terrasse

BESONDERHEITEN / HIGHLIGHTS
• sehr gute Raumaufteilung
• Fußbodenheizung / Fußbodenkühlung
• vollausgestattete Küche
• 2 WCs
• Boden nach Absprache
• Top-Erreichbarkeit

SEHR GUTE ÖFFENTLICHE VERKEHRSANBINDUNG
• U4, U2 Taborstraße, Schottenring
• Straßenbahnlinien: 1, 31
• Autobuslinien; 5A, 5B, 2A, 3A

WEITERE MONATLICHE KOSTEN
• Akonto für Heizung/Kühlung EUR 100,95 nto
• Akonto für Warmwasser EUR 53,17 nto
• anteilige Umsatzsteuer EUR 30,82

GESAMTMIETE "warm" EUR 1795 + EUR 184,94 = EUR 1979,94

• Strom wird je nach Verbrauch direkt vom Energiedienstleister abgerechnet
• ggf. TV/Internet, Versicherung, o.Ä.

ERSTZAHLUNG
• Kaution: 3 Monatsmieten "warm" gerundet
• Provision: 3 Monatsmieten
• Erste Monatsmiete
• Vertragserrichtung und Übergabe pauschal EUR 240 bto
• Vergebührung Finanzamt

Falls Sie Fragen haben oder einen Besichtigungstermin vereinbaren möchten, stehe ich Ihnen selbstverständlich gerne zur Verfügung. Ich freue mich auf Ihre Kontaktaufnahme!

KONTAKT:
Frau Kerstin Fried
Tel: +43 664 88 730 881
Email: kerstin.fried@hubner-immobilien.com
Angaben gemäß gesetzlichem Erfordernis:
Miete 1303,18 zzgl 20% USt.
Betriebskosten 192,65 zzgl 20% USt.
Umsatzsteuer 299,17
---------------------------------
Gesamtbetrag 1795
---------------------------------
Heizwärmebedarf: 34.0 kWh/(m²a)
Klasse Heizwärmebedarf: B
Beschreibung weiterlesen

Energieeffizienz

HWB:
34 kWh/(m²*a)
HWB Klasse:
B
Energieausweisart:
Energiebedarfs-ausweis
Kerstin Fried

Kerstin Fried

Hubner Immobilien GmbH

Lade...

Fotomix

Zimmer 1 Küche Zimmer 2 Zimmer 3 Terrasse Badezimmer mit WC WC Vorraum Zugang zum Objekt Grundriss Top 15 Außenansicht Außenansicht Fahrradraum Lageplan mit Öffis IMMY Preisträger