Büro/Praxis - Räume in Tulln, frisch renoviert!

Büro zur Miete in 3430 Tulln an der Donau / Objektnummer: 4615
Ausstattung: Barrierefrei Boden Teeküche Parkplatz Außenparkplatz Zentralheizung
Außenansicht
Außenansicht
Eingangsbereich
Eingangsbereich
Vorderes Büro
Mittleres Büro
Hinteres Büro
Windfang möglicher 2. Eingang
Teeküche
Toilette

Preisinformationen

Gesamtmiete (exkl. USt.):
1.960,00 € / Monat
Betriebskosten netto:
160,00 € / Monat
Umsatzsteuer:
392,00 €
Kaution:
7.056,00 €
Vermittlungsprovision:
Ja
Provision:
4.704,00 € inkl. 20% USt.

Fakten

Objektnummer:
4615
Objekttyp:
Büro
Nutzfläche:
130 m²
Zimmer:
6
Toilette:
1
Zustand:
Gepflegt
Verfügbarkeit:
Verfügbar

Beschreibung

Zur Vermietung stehen Büro/Praxis Räume in Tulln, unweit von Hauptplatz und Rosenarcade entfernt.

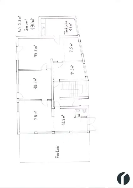
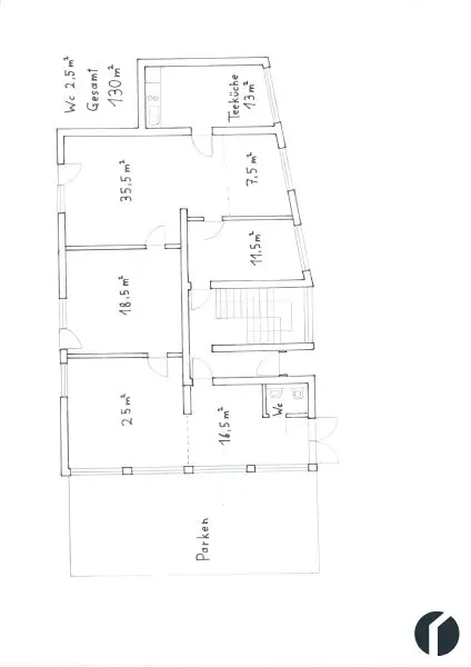
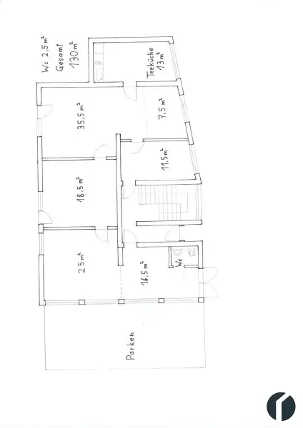
Die insgesamt ca. 130m² große Bürofläche wurde soeben frisch renoviert und befindet sich im Erdgeschoß mit barrierefreiem Zugang. Von den Vormietern zurückgeblieben sind EDV und Lan-Steckplätze in fast jedem Raum, gebündelt für die Installation eines Serverschrankes.
Die Räumlichkeiten setzen sich wie folgt zusammen:

* Eingangsbereich mit separater Toilette
* 4 Räume
* 1 Teeküche bzw. Aufenthaltsraum
* 1 Windfang als möglicher 2. Eingangsbereich

Im Mietpreis inbegriffen ist außerdem die alleinige Benutzung von 3 Parkplätzen vor dem Geschäft.
Weitere Parkmöglichkeiten gibt es nur ca. 100 Meter entfernt in der Kurzparkzone vor der Egon Schiele Volksschule.

Tiefgaragenstellplätze zu mieten finden Sie eine Querstraße weiter, hier der Link dazu https://www.immobilien86.at/objektdetail/10191467

Die Räume sind alle mit Fliesenboden ausgestattet, in der Teeküche wurde ein Linoleum verlegt. Geheizt wird mit einer Gasetagenheizung und Radiatoren. Den Vertrag mit Strom und Gasanbieter schließen Sie selbst ab.

Hinweis: Die Angaben zu dieser Immobilie sind ohne Gewähr. Auf Grund der Nachweispflicht gegenüber dem Eigentümer ersuchen wir Sie um Verständnis, dass wir nur Anfragen mit vollständiger Anschrift und Telefonnummer bearbeiten können, sowie keine Auskünfte betreffend Objektunterlagen und der genauen Liegenschaftsadresse erteilen können. Wir weisen darauf hin, daß aufgrund wiederholter Beauftragung zur Vermieterseite ein wirtschaftliches Naheverhältnis besteht.

Der Vermittler ist als Doppelmakler tätig.

Infrastruktur / Entfernungen

Gesundheit
Arzt <500m
Apotheke <500m
Klinik <6.500m
Krankenhaus <1.500m

Kinder & Schulen
Schule <500m
Kindergarten <500m
Universität <1.500m
Höhere Schule <1.500m

Nahversorgung
Supermarkt <500m
Bäckerei <500m
Einkaufszentrum <500m

Sonstige
Bank <500m
Geldautomat <500m
Post <500m
Polizei <1.000m

Verkehr
Bus <500m
Bahnhof <500m
Autobahnanschluss <4.000m
Flughafen <5.000m

Angaben Entfernung Luftlinie / Quelle: OpenStreetMap
Beschreibung weiterlesen

Lage und Verkehrsanbindung

Nähe Rosenarcade
Nähe Hauptplatz
zentral gelegen, unweit vom Bahnhof Tulln/Stadt

Energieeffizienz

HWB:
119 kWh/(m²*a)
HWB Klasse:
C
Energieausweisart:
Energiebedarfs-ausweis
Gültig bis:
14.01.2029

Grundriss

Lageplan

3430 Tulln an der Donau | Tulln

Lade...
Martin Schildberger

Martin Schildberger
Immobilienberater

Immobilien86 KG

Lade...

Fotomix

Außenansicht Außenansicht Eingangsbereich Eingangsbereich Vorderes Büro Mittleres Büro Hinteres Büro Windfang möglicher 2. Eingang Teeküche Toilette