NEU - Büro- und Dienstleistungsfläche in Hard zu mieten

Büro zur Miete in 6971 Hard - Gesamtmiete: 960,00 € / Objektnummer: 6782
Ausstattung: Parkplatz Außenparkplatz
Büro
Flur
Küche
WC
Flur
Büro
Büro
Büro
Büro
Büro
Büro
Büro
Büro
Außenansicht
Adressplan
Lageplan
Flächenwidmung
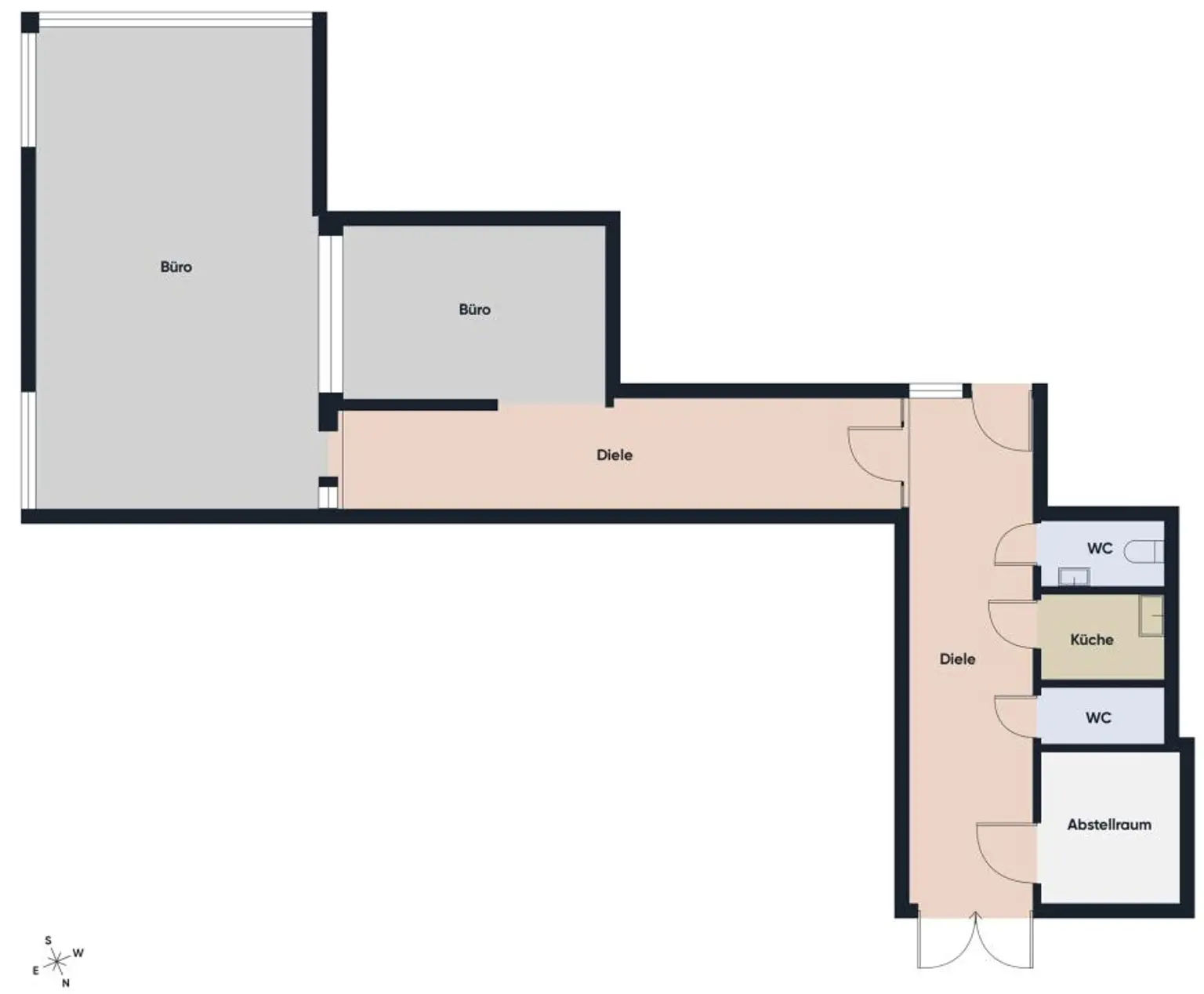
Grundriss ohne Maßstab

Preisinformationen

Gesamtmiete:
960,00 € / Monat
Gesamtmiete (exkl. USt.):
800,00 € / Monat
Betriebskosten netto:
100,00 € / Monat
Umsatzsteuer:
160,00 €

Fakten

Objektnummer:
6782
Objekttyp:
Büro
Nutzfläche:
71 m²
Bürofläche:
71 m²
Toilette:
2
Baujahr:
1997
Verfügbarkeit:
Verfügbar

Beschreibung

+ Helle und lichtdurchflutete Räume
+ Hochfrequenzlage an der Rheinstraße
+ Zentrale Lage
+ Gut erreichbar für Kunden
+ Nahversorger und Dienstleister in der Umgebung
+ Öffentliche Verkehrsmittel in der Nähe
+ Mitbenutzung: 2 Parkplätze / WC / Küche / 1 Lagerraum (in Flächenberechnung berücksichtigt)

Entdecken Sie die ideale Büro- und Lagerfläche zur Miete in Hard. Dieses vielseitige Gebäude aus dem Jahr 1997 bietet eine großzügige Nutzfläche von 82 m² und eignet sich perfekt für Unternehmen, die eine flexible Arbeitsumgebung suchen.

Die Immobilie besticht durch ihre hervorragende Lage und ist nach Vereinbarung beziehbar. Hier haben Sie die Möglichkeit, Ihre geschäftlichen Visionen in einem modernen und funktionalen Umfeld zu verwirklichen.

Zögern Sie nicht, uns zu kontaktieren, um weitere Informationen zu erhalten oder einen persönlichen Besichtigungstermin zu vereinbaren. Nutzen Sie diese Chance, Ihre Geschäftsräume an einem attraktiven Standort zu erweitern!
Provision 3 Bruttomonatsmieten zzgl. 20% MwSt.
Kaution: 3 BMM Bankgarantie oder Bar
Vertragserrichtungskosten
Rechtsgeschäftsgebühren
Angaben gemäß gesetzlichem Erfordernis:
Miete 700 zzgl 20% USt.
Betriebskosten 100 zzgl 20% USt.
Umsatzsteuer 160
---------------------------------
Gesamtbetrag 960
---------------------------------
Heizwärmebedarf: 62.0 kWh/(m²a)
Klasse Heizwärmebedarf: C
Faktor Gesamtenergieeffizienz: 0.98
Klasse Faktor Gesamtenergieeffizienz: B
Beschreibung weiterlesen

Energieeffizienz

HWB:
62 kWh/(m²*a)
HWB Klasse:
C
fGEE:
0,98
fGEE Klasse:
B
Energieausweisart:
Energiebedarfs-ausweis

Lageplan

6971 Hard | Bregenz

Lade...
Philipp Feurstein

Philipp Feurstein

RE/MAX Immowest GmbH

Lade...

Fotomix

Büro Flur Küche WC Flur Büro Büro Büro Büro Büro Büro Büro Büro Außenansicht Adressplan Lageplan Flächenwidmung Grundriss ohne Maßstab